map icon

Građevinsko zemljište za Prodaja

Sveti Filip i Jakov
€ 400.000
1.241 m²

Bilješka

Oglas ažuriran 04. 02. 2026.
Opis

referenca: 2004-1

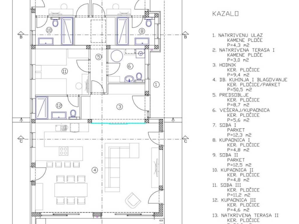
Prodajemo zemljište od 1241 m2 u prekrasnom Turnju, smještenom nedaleko Biograda na Moru.Zemljište se nalazi na kosom terenu, te pruža pogled na okolni krajolik. Smješteno je na mirnoj lokaciji, dok ste istovremeno udaljeni svega 550 metara od obale, omogućujući vam brz i lagan pristup plažama i kristalno čistom moru.Svoj san o idealnom domu možete ostvariti upravo ovdje. S projektom već predanim u ured za izdavanje građevinskih dozvola, ovaj komad zemlje nudi vam savršenu osnovu za izgradnju vaše obiteljske oaze ili ljetne vikendice.
Ako želite znati više, možete razgovarati s Linda Jokić.
Značajke
Ugovor
Prodaja
Vrsta
Građevinsko zemljište
Površina
1.241 m²
Informacije o cijeni
Cijena
€ 400.000
Cijena po m²
322 €/m²
Otkrijte svaki kutak nekretnine
+7
Dodatne mogućnosti

Obratite se oglašivaču

Ili