Građevinsko zemljište za Prodaja

€ 165.000
1.342 m²

Bilješka

Oglas ažuriran 04. 02. 2026.
Opis

referenca: 39221

ISTRA, SVETVINČENAT - Zemljište s građevinskom dozvolom

ISTRA, SVETVINČENAT - Zemljište s građevinskom dozvolom

Kao iz bajke, na krševitoj visoravni okružen šumama, pašnjacima i vinogradima smjestio se ljupki renesansni gradić Svetvinčenat. Svetvinčenat se nalazi na 310 metara nadmorske visina na jugu središnje Istre i njime dominira jedan od najljepših renesansnih trgova u državi i najstariji i najočuvaniji srednjovjekovni kaštel u Istri. U sastavu općine Svetvinčenat koju krase prirodne ljepote, bogata povijesno-kulturna baština, umjetničke manifestacije i eno i gastro turizam nalaze se 22 naselja.

Zemljište broji 1342m2.
U ponudi atraktivno građevinsko zemljište s ishodovanom građevinskom dozvolom i kompletnom pratećom dokumentacijom.
Smješteno u srcu Istre u mirnom i šarmantnom selu.
Zemljište je idealno pozicionirano, udaljeno svega 10-ak minuta vožnje od Vodnjana i pruža savršenu kombinaciju mira, prirode i blizine urbanih sadržaja.
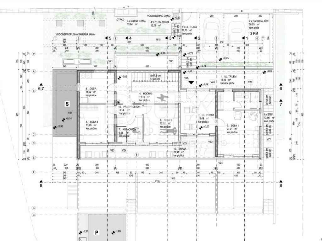
Projektom je predviđena izgradnja moderne vile površine 300 m s privatnim bazenom savršen spoj luksuza i udobnosti u autentičnom istarskom ambijentu.

Vlasništvo 1/1.

Poštovani klijenti, agencijska provizija naplaćuje se u skladu s Općim uvjetima poslovanja:
www.dux-nekretnine.hr/opci-uvjeti-poslovanja

ID KOD AGENCIJE: 39221

Ivan Duić
Agent pripravnik
Mob: +385 95 820 3223
Tel: +385 91 480 8808
E-mail: ivan@dux-istra.com
www.dux-istra.com
Ako želite znati više, možete razgovarati s Ivan Duić.
Značajke
Ugovor
Prodaja
Vrsta
Građevinsko zemljište
Površina
1.342 m²
Informacije o cijeni
Cijena
€ 165.000
Cijena po m²
123 €/m²
Otkrijte svaki kutak nekretnine
+3
Dodatne mogućnosti

Obratite se oglašivaču

Ili