Građevinsko zemljište za Prodaja

€ 325.000
970 m²

Bilješka

Oglas ažuriran 04. 05. 2026.
Opis

referenca: 36916

OPATIJA RIVIERA - zemljište s postojećom građevinskom dozvolom za izgradnju luksuzne vile s bazenom i pogledom na more

OPATIJA RIVIERA - zemljište s postojećom građevinskom dozvolom za izgradnju luksuzne vile s bazenom i pogledom na more

Na prodaju je atraktivno građevinsko zemljište površine 970 m u Mošćeničkoj Dragi, idealno za izgradnju luksuzne vile s bazenom. Teren se prodaje s kompletnom projektnom dokumentacijom i pravomoćnom građevinskom dozvolom, a komunalni i vodni doprinosi su već plaćeni, što omogućuje trenutni početak gradnje.

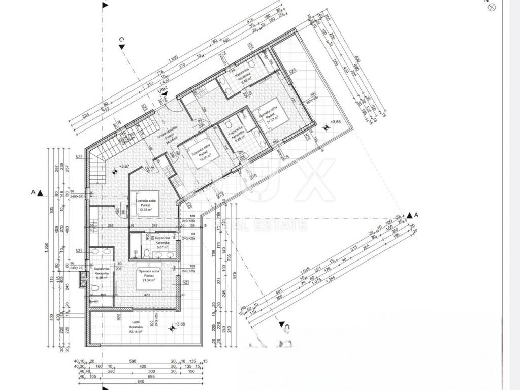
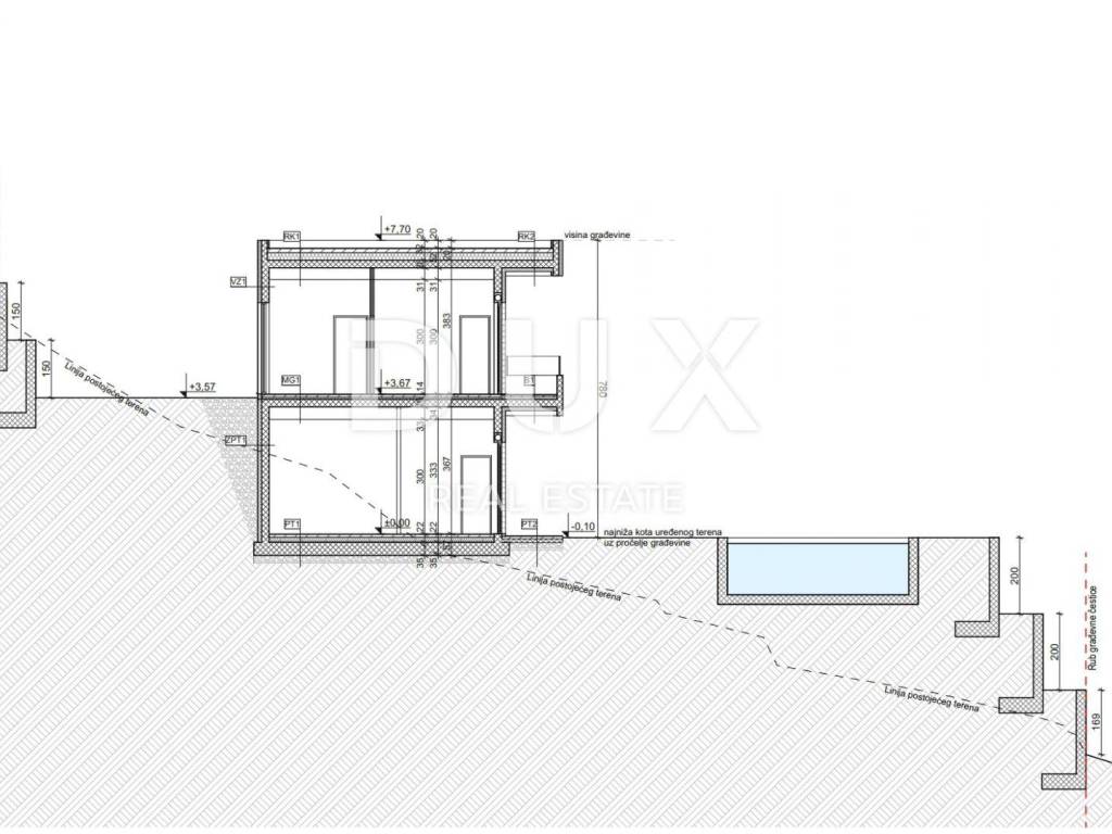
Zemljište se nalazi na mirnoj lokaciji, okruženo zelenilom, te je udaljeno svega 1 km od centra Mošćeničke Drage i najljepših plaža Opatijske rivijere. Vila će se prostirati na dvije etaže, ukupne površine 250 m, uz lođu od 53 m i natkrivenu terasu od 71 m. U prizemlju vile predviđeni su dnevni boravak, kuhinja s blagovaonicom, sauna, kupaonica, vešeraj, strojarnica i natkrivena terasa, dok su na katu četiri spavaće sobe, svaka s vlastitom kupaonicom. Ispred kuće bit će smješten bazen površine 50 m.

Vila je projektirana tako da zadovoljava sve kriterije za kategorizaciju na 5 zvjezdica. Za grijanje je predviđeno podno grijanje putem dizalice topline na struju, dok će hlađenje biti osigurano putem autonomnog multi-split klima sustava.

Teren je u potpunosti očišćen i spreman za gradnju, a vlasništvo je čisto i uredno. Svi komunalni priključci su dovedeni do terena, a pristup zemljištu osigurava asfaltirani put. Teren nudi predivan pogled na more i otok Cres, te je smješten u tihoj i mirnoj poziciji, što ga čini idealnim za izgradnju luksuzne kuće za odmor ili obiteljske vile.

Postoji mogućnost kupnje susjedne parcele na kojoj je također ishođena građevinska dozvola za identičan objekt, što predstavlja izvrsnu priliku za investitore koji se bave izgradnjom luksuznih vila za najam.

Nekretnina je udaljena 1,2 km zračne linije od mora, a 1,4 km automobilom (otprilike 4 minute vožnje), čineći ovu lokaciju vrlo atraktivnom za ulaganje.

Za dogovaranje posjete nekretnine nazovite agenta s povjerenjem - konzultacija na njemačkom jeziku moguća.

Poštovani klijenti, agencijska provizija naplaćuje se u skladu s Općim uvjetima poslovanja: www.dux-nekretnine.hr/opci-uvjeti-poslovanja

ID KOD AGENCIJE: 36916

Patrik Hrštić
Agent s licencom
Mob: +385 91 270 3979
Tel: +385 91 480 8808
E-mail: patrik@dux-nekretnine.hr
www.dux-opatija.com

Marko Šutanovac
Agent s licencom
Mob: +385 91 189 8332
Tel: +385 91 480 8808
E-mail: marko@dux-nekretnine.hr
www.dux-opatija.com
Ako želite znati više, možete razgovarati s Patrik Hrštić.
Značajke
Ugovor
Prodaja
Vrsta
Građevinsko zemljište
Površina
970 m²
Informacije o cijeni
Cijena
€ 325.000
Cijena po m²
335 €/m²
Otkrijte svaki kutak nekretnine
+23
Dodatne mogućnosti

Obratite se oglašivaču

Ili