Građevinsko zemljište za Prodaja

€ 215.000
4.500 m²

Bilješka

Oglas ažuriran 23. 01. 2026.
Opis

referenca: 33896

RIJEKA, DRENOVA - građevinsko zemljište 4500m2 za gradnju stambenih zgrada - stanova/ obiteljske kuće

RIJEKA, DRENOVA - građevinsko zemljište 4500m2 za gradnju stambenih zgrada - stanova / obiteljsku kuću

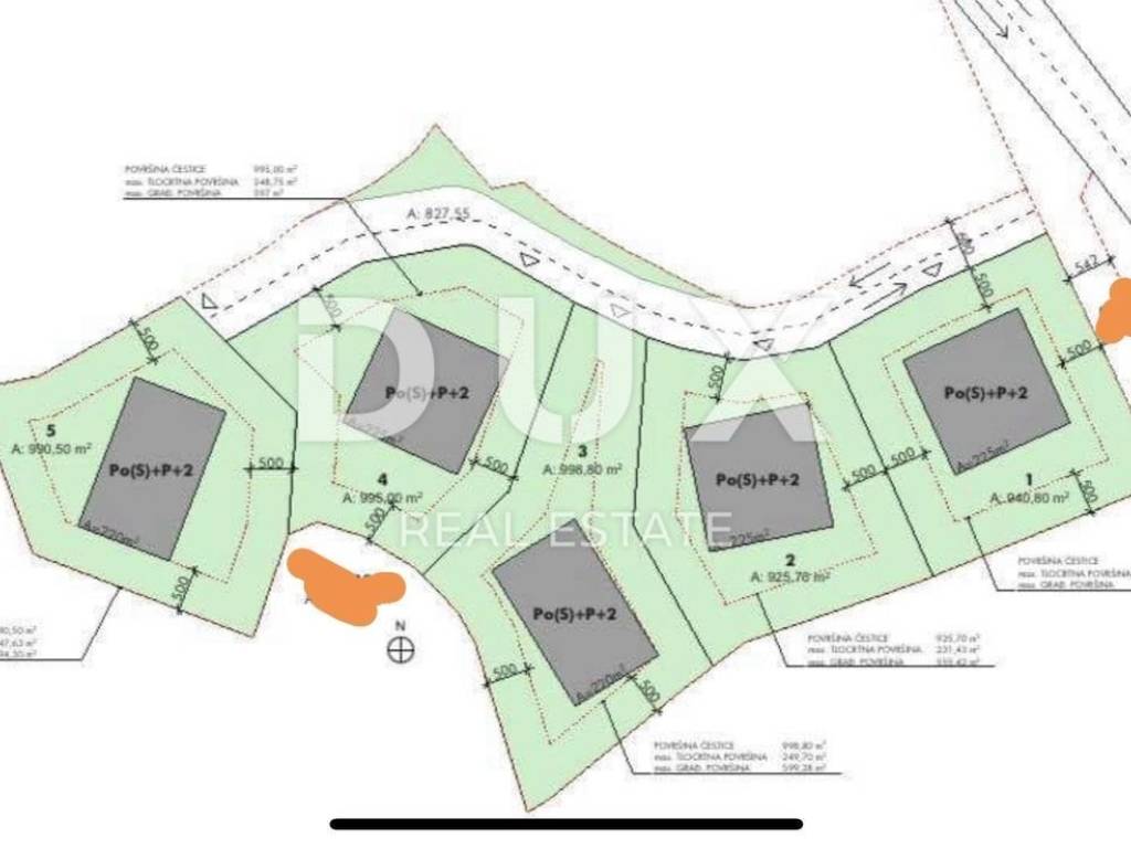
Građevinsko zemljište od 6500 m2 podijeljeno je u 5 parcela, tako da potencijalni trenutno može birati parcelu koju želi.
Na zemljištu se može graditi stambena zgrada ili obiteljska kuća.
Stambena zgrada može imati max 8 stanova, P(0) + S +2.
Bruto razvijena površina po objektu je cca 600m2.

Teren je konfiguracijski u padu/ima nekoliko padajućih kaskada/ potpuno ravan.
Teren se nalazi na tihoj i mirnoj poziciji i odmah do asfaltiranog puta.
Sve komunalije do terena.
Čisto i uredno vlasništvo.

Dobra prilika za investitore koji se bave izgradnjom stambenih zgrada stanova, ali i za one koji žele izgraditi kuću u lijepom i mirnom okruženju.

DRENOVA:
Ukoliko želite život punim plućima Drenova je riječki kvart o kojem biste trebali razmisliti pri odabiru nekretnine. Ime je dobila po drenu, šumskoj voćki koja raste u drenovskim šumama. Smještena na rubnom području grada predstavlja idealan spoj urbanog i ruralnog.
Povijesno se sstoji od dvije cjeline (Gornje Drenove i Donje Drenove), danas sjedinjene u jednu gradsku četvrt.
Priroda je nešto što većini kvartova nedostaje, a ovaj dio grada odlikuje napretek stoga se već na par koraka od svoje nekretnine možete upustiti u planinarenje, trail trčanje, sportsko penjanje ili jednostavnu opuštajuću šetnju. Upravo navedeno zelenilo osigurava Drenovi epitet najmirnijeg naselja i moto mjesnog odbora - 'Drenova - zelena pluća grada'.
Na području Drenove nalazi se Osnovna škola 'Fran Franković' koja nosi ime prema jednom od najznačajnijih Drenovčana. Uspješno djeluje i ogranak Gradske knjižnice Rijeka.
Važna prednost koju Drenova posjeduje je činjenica da obiluje svim potrebnim sadržajima za život - odgojno-obrazovne institucije, dom zdravlja, gradsku knjižnicu te niz sportskih, rekreacijskih i zabavnih sadržaja uz dobru prometnu povezanost s gradom i prigradskim područjima.
U ovom dijelu grada odvija se društvena, poticana stanogradnja stambenih objekata dok se istovremeno u ponudi mogu naći obiteljske kuće s okućnicama i ograđenim vrtovima.

Poštovani klijenti, agencijska provizija se naplaćuje u skladu s Općim uvjetima poslovanja.
https://www.dux-nekretnine.hr/opci-uvjeti-poslovanja

ID KOD AGENCIJE: 33896

Patrik Hrštić
Agent s licencom
Mob: +385 91 270 3979
Tel: +385 91 480 8808
E-mail: patrik@dux-nekretnine.hr
www.dux-opatija.com
Ako želite znati više, možete razgovarati s Patrik Hrštić.
Značajke
Ugovor
Prodaja
Vrsta
Građevinsko zemljište
Površina
4.500 m²
Informacije o cijeni
Cijena
€ 215.000
Cijena po m²
48 €/m²
Otkrijte svaki kutak nekretnine
+13
Dodatne mogućnosti

Obratite se oglašivaču

Ili