map icon

Obiteljska kuća 460 m², novo, Dobrinj

Dobrinj
€ 1
5+
460 m²
3+
Terasa

Bilješka

Oglas ažuriran 17. 11. 2025.
Opis

referenca: 26492

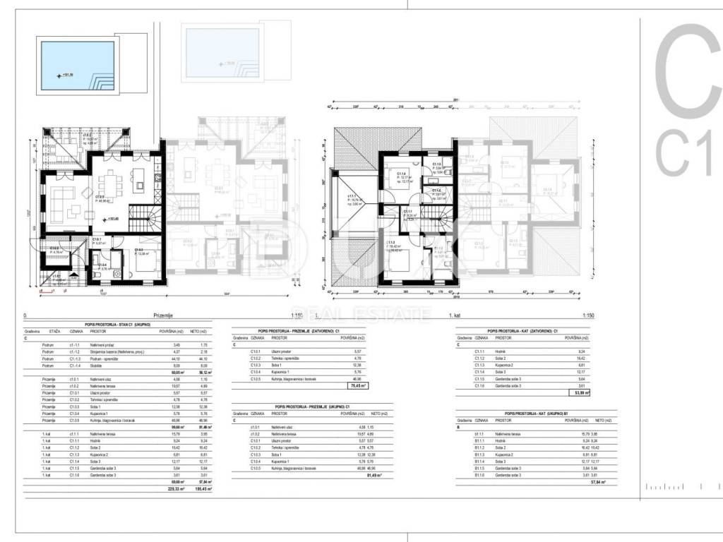
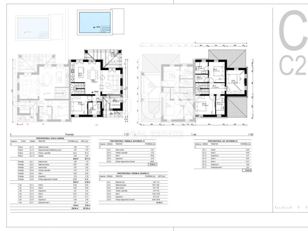
OTOK KRK, TRIBULJE - projekt dvojna kuća svaka sa svojim bazenom

OTOK KRK, TRIBULJE - projekt dvojna kuća C1 i C2 svaka sa svojim bazenom.

Prodaje se projekt dvojne kuće C svaka sa svojim vlastitim bazenom, okućnicom i parkiralištem za dva automobila po svakoj, koja je razvedena na prizemlje i kat.

U prizemlju kuće C1 nalazimo open space dnevni dio s kuhinjom i blagovaonicom s izlazom na natkrivenu terasu, okućnicu i bazen te jednu spavaću sobu i kupatilo.
Na katu kuće imamo još dvijei spavaće sobe svaka sa svojim vlastitim kupatilom i garderobom gdje obje sobe imaju izlaz na natkrivenu terasu.. Sveukupna stambena kvadratura svake kuće iznosi 230m2.
Svakoj kući pripadaju dva parkirna mjesta u dvorištu.

Projekt se prodaje s građevinskom dozvolom, cijena na upit, mogućnost dogovora s prodavateljem o izgradnji i prodaji u fazi ključ u ruke.

Poštovani klijenti, agencijska provizija naplaćuje se u skladu s Općim uvjetima poslovanja.
www.dux-nekretnine.hr/opci-uvjeti-poslovanja

ID KOD AGENCIJE: 26492

Darko Miculinić
Vanjski suradnik
Mob: +385 91 899 5705
Tel: +385 91 480 8808
E-mail: darko@dux-nekretnine.hr
www.dux-nekretnine.hr
Ako želite znati više, možete razgovarati s Darko Miculinić.
Značajke
Vrsta
Obiteljska kuća
Ugovor
Prodaja
Površina
460 m²
Prostorije
5+
Spavaće sobe
7
Kupaonice
3+
Balkon
Ne
Terasa
Da
Ostale karakteristike
  • Bazen
Informacije o cijeni
Cijena
€ 1
Cijena po m²
0 €/m²
Energetska učinkovitost

Potrošnja energije

A+

Otkrijte svaki kutak nekretnine
+14
Dodatne mogućnosti

Obratite se oglašivaču

Ili