Stan novo, drugi kat, Centar, Opatija

€ 1
5
289 m²
3+
2
Da
Balkon
Terasa

Bilješka

Oglas ažuriran 24. 01. 2026.
Opis

referenca: ID14189

Opatija_Centar, Penthouse 289m2

Opatija - Penthouse 289m2
s privatnim bazenom, panoramskim pogledom na more i garažom za pravi hedonistički način života

Opis
U ponudi imamo stan, koji se prostire kroz drugi kat, potkrovlje, krovnu terasu, ukupne bruto površine od 423m2 u modernoj zgradi vrhunske arhitekture.
Zgrada se nalazi svega koju minutu šetnje od plaža, šetnjica, restorana, barova, dućana, samog centra Opatije na lokaciji koja je izolirana od ljetnih gužva, a opet daje svu blizinu sadržaja.

Dizajn zgrade je nadahnut jedinstvenim rješenjem koje se savršeno uklapa u ambijent, s naglaskom na kvalitetu gradnje i udobnost stanovanja. Projekt obuhvaća devet stambenih jedinica, podijeljenih na podrum - garaža, suteren, prizemlje, prvi kat, drugi kat, potkrovlje i prohodan ravan krov s otvorenim pogledom na more.

Od ostalih stanova u ponudi imamo:
Penthouse S3 4S+DB _ 293m2(neto) 424m2(bruto)
Stan A1 3S+DB _ 161m2(neto) 168m2(bruto)
Stan A2 1S+DB _ 60m2(neto) 71m2(bruto)
Stan A3 3S+DB _ 181m2(neto) 220m2(bruto)
Stan A5 3S+DB _ 141m2(neto) 158m2(bruto)

U podrumu je smještena garaža visokog stropa s liftom koji povezuje novogradnju.

Cijela zgrada izolirana je kamenom vuna od 15 cm, ima aluminijska ulazna vrata s električnom bravom i pametnim WiFi sustavom upravljanja, dok su hodnici i stubišta popločeni vrhunskom keramikom. Siguran design lift, te video nadzor zgrade. Pročelje ima široke klizne staklene stijene i prostrane terase. U svim prostorijama postavljena je LED rasvjeta. Objekt nosi A+ energetski certifikat.

Sustavno je primijenjena najmodernija oprema:
DAIKIN podno grijanje - ITPS sustav s centralnom pripremom tople vode
Ugrađeni klima uređaji
Dizalica topline
Aluminijska stolarija Schüco - troslojno IZO zatamnjeno staklo, električni podizači roleta
Visokokvalitetni parketi i keramika 1. klase renomiranih proizvođača
Premium sanitarije i armature
Video portafon
Sigurnosna protuprovalna vrata
LED rasvjeta
Balkonske staklene ograde modernog dizajna

Svi balkoni odišu luksuzom, uz obilje prirodnog svjetla te pružaju prekrasan pogled na more, otoke i Opatiju

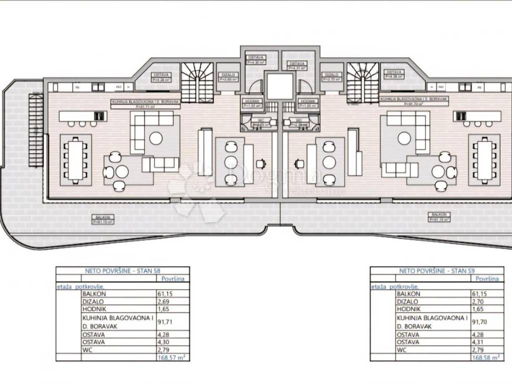
Stan oznake S2 ima neto površinu od 289m2(neto), 423m2(bruto)

Stan S2 Penthouse se nalazi na dvije etaže s velikim balkonima na svakom katu, na koje se izlazi iz svih soba, te privatnu krovnu terasu s vlastitim bazenom.

Stan na raspolaganju ima sljedeće prostorije:

DRUGI KAT: Lift, stepenice ulaz u hodnik drugog kata gdje se nalaze:
-master soba s garderobom, veliko kupatilo i sauna.
-spavaća soba
-spavaća soba
-spavaća soba
-kupatilo
-kupatilo
-garderoba
-garderoba
-ostava
POTKROVLJE: Kružne stepenicama, lift ulaz u potkrovlje gdje se nalazi:
-kuhinja, dnevni boravak i blagovaonica s predviđenim visokim stolom i barskim stolicama s famoznim pogledom na cijeli Kvarner i privatnom vinotekom s direktnim izlazom na terasu i spremnim priključcima za ljetnu kuhinju
- toalet
- ostava
KROVNA TERASA: izlaz s balkona potkrovlja na prostranu krovnu terasu gdje se nalazi 36 m bazen s protustrujnim mlaznicama

Velike otvorene površine pružaju spektakularan pogled na more što ih čini idealnim mjestom za opuštanje i druženja.

Stanu još pripada:

Tri parkirna mjesta u garaži,
punjač za EV vozila i hibride te vlastita konoba.

Stan se prodaje nenamješten, osim potpuno opremljene kupaonice.
Useljenje: Proljeće 2026

Za sve ostale informacije obratite nam se u povjerenju.

ID KOD AGENCIJE: ID14189

Ana Peruničić
Asistent u posredovanju
Mob: 095/215-9895
Tel: 051/271-365
E-mail: ana.perunicic@dogma-nekretnine.com
www.dogma-opatija.com
Ako želite znati više, možete razgovarati s Ana Peruničić.
Značajke
Vrsta
Stan
Ugovor
Prodaja
Kat
2 kat
Dizalo
Da
Površina
289 m²
Prostorije
5
Spavaće sobe
4
Kupaonice
3+
Balkon
Da
Terasa
Da
Garažno mjesto, parkirna mjesta
1 u garaži
Klimatizacija
Samostalno, hlađenje/grijanje
Informacije o cijeni
Cijena
€ 1
Cijena po m²
0 €/m²
Energetska učinkovitost

Potrošnja energije

A+

Otkrijte svaki kutak nekretnine
+12
Dodatne mogućnosti

Obratite se oglašivaču

Ili