map icon

Četverosobni stan novo, treći kat, Novi Marof

Novi Marof
€ 304.641
4
112 m²
1
3
Da
Balkon

Bilješka

Oglas ažuriran 18. 11. 2025.
Opis

referenca: VZ3136

PENTHOUSE U NOVOGRADNJI - NOVI MAROF

Prodaje se moderan, funkcionalno raspoređen penthouse u novogradnji smještenoj u samom centru Novog Marofa. Lokacija nudi savršen spoj mira, privatnosti i praktičnosti, jer se nalazi u neposrednoj blizini svih sadržaja potrebnih za ugodan i bezbrižan život trgovina, škola, vrtića, ljekarne, pošte, banke i javnog prijevoza. Ova atraktivna pozicija omogućuje stanarima da uživaju u mirnom okruženju, a istovremeno imaju sve gradske pogodnosti nadohvat ruke.

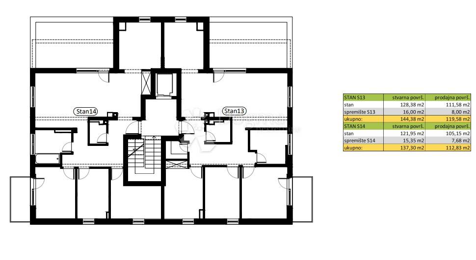
Stan S14 nalazi se na trećem katu zgrade i ima ukupnu površinu od 112,83 m. Sastoji se od ulaznog hodnika koji vodi u svijetao i prostran open space dnevni boravak s kuhinjom i blagovaonicom, iz kojeg se izlazi na veliku terasu idealnu za opuštanje i druženje. Uz dnevni dio, stan uključuje tri spavaće sobe te moderno uređenu kupaonicu i poseban WC. Tlocrt stana osmišljen je tako da maksimalno iskoristi svaki kvadratni metar prostora, uz naglasak na udobnost i praktičnost.

Stanu pripada i spremište u podrumu zgrade te vanjsko parkirno mjesto, što dodatno doprinosi praktičnosti i kvaliteti života.

Zgrada je građena od visokokvalitetnih materijala prema suvremenim standardima gradnje. Posebna pažnja posvećena je toplinskoj i zvučnoj izolaciji, a ugrađena je vrhunska PVC stolarija i vanjska toplinska fasada koje osiguravaju energetski razred A+, što znači nisku potrošnju energije i vrlo male mjesečne režije.

Grijanje je plinsko centralno, dok je u kupaonici ugrađeno podno grijanje koje dodatno povećava udobnost u zimskim mjesecima. Hlađenje je osigurano putem klima uređaja koji omogućuje ugodnu temperaturu tijekom ljeta.

Ova nekretnina idealan je izbor za sve koji traže moderan, kvalitetan i energetski učinkovit dom u središtu grada. Zbog izvrsne lokacije, kvalitetne gradnje i funkcionalnog rasporeda prostorija, stan je pogodan kako za obiteljski život, tako i kao investicija za dugoročni najam.

Ako želite spoj suvremenog stanovanja, komfora i mirnog okruženja u samom srcu Novog Marofa, ovaj stan predstavlja izvrsnu priliku.

Za dodatna pitanja ili dogovor oko razgleda, slobodno me kontaktirajte :

Danijel Kukec
099 384 1510
danijel.kukec@dogma-nekretnine.com

ID KOD AGENCIJE: VZ3136

Danijel Kukec
Asistent u posredovanju
Mob: 099/384-1510
Tel: 042/562-017
E-mail: danijel.kukec@dogma-nekretnine.com
www.dogma-nekretnine.com
Ako želite znati više, možete razgovarati s Danijel Kukec.
Značajke
Vrsta
Stan
Ugovor
Prodaja
Kat
3 kat
Dizalo
Da
Površina
112 m²
Prostorije
4
Spavaće sobe
4
Kupaonice
1
Balkon
Da
Terasa
Ne
Klimatizacija
Samostalno, hlađenje/grijanje
Informacije o cijeni
Cijena
€ 304.641
Cijena po m²
2.720 €/m²
Energetska učinkovitost

Potrošnja energije

A+

Otkrijte svaki kutak nekretnine
+5
Dodatne mogućnosti

Obratite se oglašivaču

Ili