Četverosobni stan novo, treći kat, Dugopolje

€ 518.098
4
151 m²
3
3
Da
Terasa

Bilješka

Oglas ažuriran 09. 03. 2026.
Opis

referenca: ST4207

TOP PENTHOUSE U NOVOGRADNJI, moguć kredit! (A-S13)

Dugopolje - Novogradnja, Penthouse A-S13

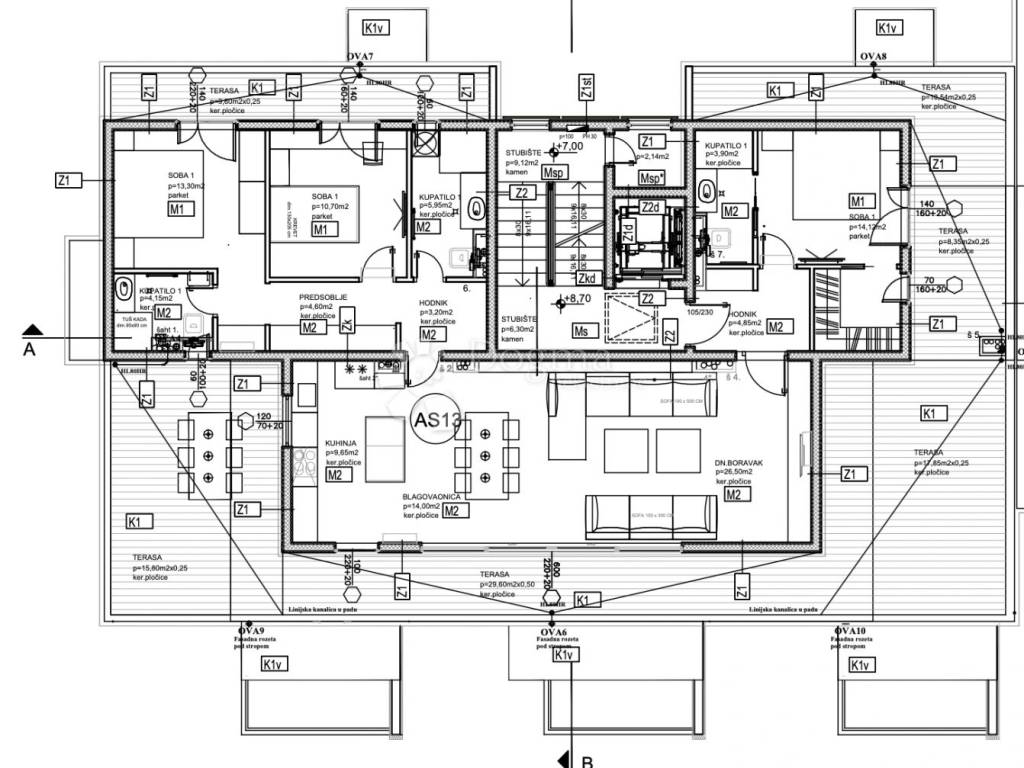
Stan se sastoji od: ulaznog dijela (hodnika), kuhinje, blagovaonice i dnevnog boravka, tri spavaće sobe i tri kupaonice.
Svaka prostorija u stanu ima izlaz na terasu, a činjenica da je stan jedini na katu pruža visoku razinu privatnosti, mira i ekskluzivnosti (tlocrt priložen u oglasu).

Obračunska površina stana je 145,25 m2.

U cijenu je uključena ostava u suterenu zgrade površine 6,27 m.

Kupnja vanjskog parkirnog mjesta je obvezna (14.850 EUR; 14,85 m), dok je kupnja garažnog parkirnog mjesta opcionalna.

Moguća je kupnja putem kredita.

Gradnja je započela u rujnu 2025. Predviđeni završetak radova je za 18 mjeseci.
Izvođač radova je jedan od najpoznatijih i najpouzdanijih u Dalmaciji, što jamči visoku kvalitetu gradnje.

Stan je svijetao i osunčan, odlična mikrolokacija za ugodan obiteljski život. U blizini svih važnijih sadržaja.

Više informacija na upit:
Ivana Fabiana Buljubašić
Agent s licencom
+385 91 53 27 295
ivana.buljubasic@dogma-nekretnine.com

ID KOD AGENCIJE: ST4207

Ivana Fabiana Buljubašić
Agent s licencom
Mob: 091/532-7295
Tel: +385 21 293 201
E-mail: ivana.buljubasic@dogma-nekretnine.com
www.dogma-dalmacija.com
Ako želite znati više, možete razgovarati s Ivana Fabiana Buljubašić.
Značajke
Vrsta
Stan
Ugovor
Prodaja
Kat
3 kat
Dizalo
Da
Površina
151 m²
Prostorije
4
Spavaće sobe
3
Kupaonice
3
Balkon
Ne
Terasa
Da
Garažno mjesto, parkirna mjesta
1 u garaži
Klimatizacija
Samostalno, hlađenje/grijanje
Informacije o cijeni
Cijena
€ 518.098
Cijena po m²
3.431 €/m²
Energetska učinkovitost
  • Godina izgradnje

    2026
  • Stanje

    Novo / U izgradnji
  • Klima uređaj

    Samostalno, hlađenje/grijanje
  • Energetski certifikat

    Oslobođeno
Otkrijte svaki kutak nekretnine
+5
Dodatne mogućnosti

Obratite se oglašivaču

Ili