Četverosobni stan novo, treći kat, Dugopolje

€ 324.275
4
95 m²
2
3
Da
Terasa

Bilješka

Oglas ažuriran 06. 04. 2026.
Opis

referenca: ST4211

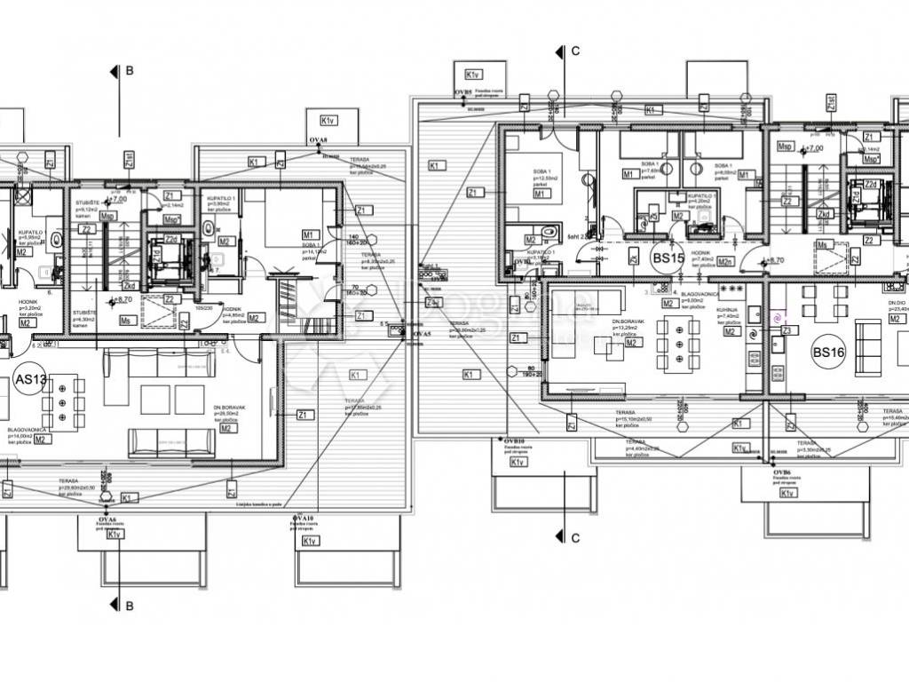
Novogradnja, TROSOBAN STAN S VELIKOM TERASOM, moguć kredit! (B-S15)

Dugopolje - Novogradnja, Penthouse B-S15

Stan se sastoji od ulaznog dijela (hodnika), kuhinje s blagovaonicom i dnevnim boravkom s izlazom na prostranu terasu, tri spavaće sobe od kojih master spavaća soba ima izlaz na terasu i vlastitu kupaonicu te dodatne kupaonice (tlocrt priložen u oglasu).

Obračunska površina stana iznosi 90,91 m.

U cijenu je uključena ostava u suterenu zgrade površine 4,35 m.

Kupnja vanjskog parkirnog mjesta je obvezna (14.850 EUR; 14,85 m), dok je kupnja garažnog parkirnog mjesta opcionalna.

Moguća je kupnja putem kredita.

Gradnja je započela u rujnu 2025. Predviđeni završetak radova je za 18 mjeseci.
Izvođač radova je jedan od najpoznatijih i najpouzdanijih u Dalmaciji, što jamči visoku kvalitetu gradnje.

Stan je svijetao i osunčan, odlična mikrolokacija za ugodan obiteljski život. U blizini svih važnijih sadržaja.

Više informacija na upit:
Ivana Fabiana Buljubašić
Agent s licencom
+385 91 53 27 295
ivana.buljubasic@dogma-nekretnine.com

ID KOD AGENCIJE: ST4211

Ivana Fabiana Buljubašić
Agent s licencom
Mob: 091/532-7295
Tel: +385 21 293 201
E-mail: ivana.buljubasic@dogma-nekretnine.com
www.dogma-dalmacija.com
Ako želite znati više, možete razgovarati s Ivana Fabiana Buljubašić.
Značajke
Vrsta
Stan
Ugovor
Prodaja
Kat
3 kat
Dizalo
Da
Površina
95 m²
Prostorije
4
Spavaće sobe
3
Kupaonice
2
Balkon
Ne
Terasa
Da
Garažno mjesto, parkirna mjesta
1 u garaži
Klimatizacija
Samostalno, hlađenje/grijanje
Informacije o cijeni
Cijena
€ 324.275
Cijena po m²
3.413 €/m²
Energetska učinkovitost
  • Godina izgradnje

    2026
  • Stanje

    Novo / U izgradnji
  • Klima uređaj

    Samostalno, hlađenje/grijanje
  • Energetski certifikat

    Oslobođeno
Otkrijte svaki kutak nekretnine
+5
Dodatne mogućnosti

Obratite se oglašivaču

Ili