Trosobni stan novo, prizemlje, Vodice

€ 341.677
3
69 m²
1
PR
Terasa

Bilješka

Oglas ažuriran 06. 03. 2026.
Opis

referenca: DA100065853

PRODAJE SE DVOSOBNI APARTMAN U VODICAMA, 50 m OD MORA

PRODAJE SE DVOSOBNI APARTMAN A1 U VODICAMA, 50 m OD MORA

Na jedinstvenoj lokaciji u Vodicama, svega 50 metara od mora, smješten je apartman A1, koji spaja moderan dizajn, funkcionalnost i ekskluzivnu poziciju.

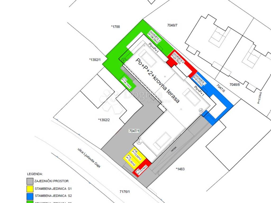
Struktura i površine
Apartman se nalazi u prizemlju i sastoji se od hodnika, WC-a, kupaonice, dvije spavaće sobe te kuhinje s blagovaonicom i dnevnim boravkom.
Korisna površina unutrašnjeg dijela iznosi 54,12 m.

Pripadajući sadržaji i vanjski prostori

Terasa u prizemlju ima površinu 10,81 m, pružajući dodatni prostor za opuštanje.

Privatno dvorište pokriva 23,75 m, idealno za aktivnosti na otvorenom i druženja.

Parkirno mjesto P14 u podrumu ima površinu 13,74 m, osiguravajući praktičnost i sigurnost.

Ukupna korisna površina, uključujući unutrašnje i vanjske dijelove, iznosi 102,42 m, dok je korisna vrijednost površine 69,73 m.

Prednosti apartmana

Orijentacija
Spavaće sobe okrenute su prema jugu, što omogućuje maksimalnu prirodnu svjetlost tijekom dana, dok terasa gleda prema sjeveru, pružajući ugodnu svježinu tijekom toplih ljetnih mjeseci.

Povezanost interijera s vanjskim prostorom
Kuhinja i dnevni boravak vode kliznom stijenkom na prostranu terasu, čime se unutrašnjost prirodno povezuje s vanjskim prostorom. Terasa i dvorište pružaju dodatni prostor za opuštanje, druženja i uživanje u mediteranskom načinu života. Parkirno mjesto dodatno povećava funkcionalnost i komfor.

Lokacija
Apartman se nalazi svega nekoliko koraka od mora, što omogućuje brz pristup plaži, šetnicama i svim sadržajima koje Vodice nude.

Interijer i gradnja
Svijetao i prozračan interijer s ALU prozorima u svim prostorijama te kliznim stijenama u dnevnom boravku stvara osjećaj prostornosti i udobnosti. Zgrada je izgrađena prema visokim suvremenim standardima, uključujući električne rolete, ugradbene vodokotliće, moderno opremljene kupaonice s walk-in tuševima i podno grijanje za maksimalnu udobnost.

Vodice dalmatinski biser
Vodice su jedno od najpoznatijih mediteranskih mjesta, udaljene svega 15 minuta vožnje od Šibenika. Grad je prepoznatljiv po dugim šetnicama uz more, uređenim plažama i kristalno čistom moru, bogatoj gastronomskoj i kulturnoj ponudi te živahnom noćnom i društvenom životu. Vodice spajaju šarm tradicionalnog dalmatinskog ambijenta s dinamikom modernog turizma, što ih čini savršenim mjestom za život i odmor.

ID KOD AGENCIJE: DA100065853

Tomislav Bitunjac
Asistent u posredovanju
Mob: 095/584-8157
Tel: +385 21 293 201
E-mail: tomislav.bitunjac@dogma-nekretnine.com
www.dogma-dalmacija.com
Ako želite znati više, možete razgovarati s Tomislav Bitunjac.
Značajke
Vrsta
Stan
Ugovor
Prodaja
Kat
Prizemlje
Površina
69 m²
Prostorije
3
Spavaće sobe
2
Kupaonice
1
Balkon
Ne
Terasa
Da
Informacije o cijeni
Cijena
€ 341.677
Cijena po m²
4.952 €/m²
Energetska učinkovitost
  • Godina izgradnje

    2026
  • Stanje

    Novo / U izgradnji
  • Energetski certifikat

    Oslobođeno
Otkrijte svaki kutak nekretnine
+15
Dodatne mogućnosti

Obratite se oglašivaču

Ili