Trosobni stan novo, prizemlje, Dugopolje

€ 242.280
3
82 m²
1
PR
Da

Bilješka

Oglas ažuriran 26. 03. 2026.
Opis

referenca: ST4098

DVOSOBAN STAN S VRTOM, moguć kredit! (B-S1)

Dugopolje - Novogradnja, dvosoban stan s privatnim vrtom (B-S1).

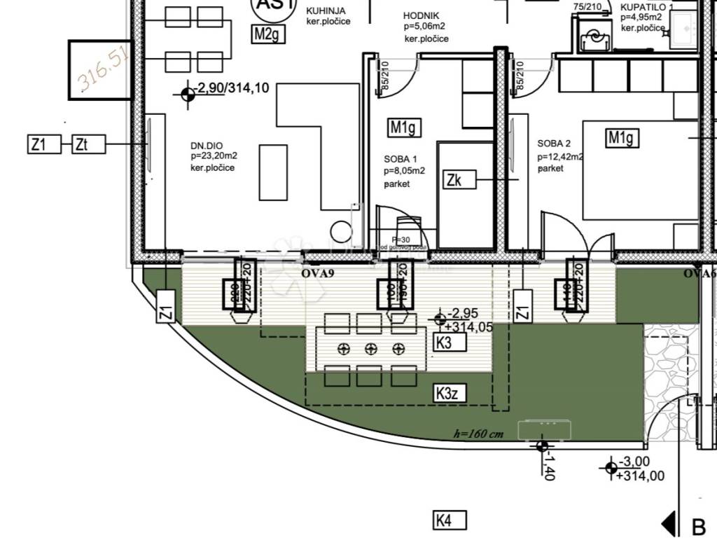
Stan se sastoji od: ulaznog dijela, kuhinje, blagovaonice, dnevnog boravka s izlazom u vrt, dvije spavaće sobe s izlazom u vrt i kupaonice (tlocrt priložen u oglasu).
Ulaz u stan moguć je kroz zajednički ulaz zgrade, kao i putem zasebnog ulaza iz vrta.

Obračunska površina stana je 64,84 m.

Površina vrta iznosi 48,63 m, od čega se 37,43 m odnosi na nenatkriveni dio, a 11,20 m na natkriveni dio.

U cijenu je uključena ostava u suterenu zgrade površine 3,60 m.

Kupnja vanjskog parkirnog mjesta je obvezna (14.850 EUR; 14,85 m), dok je kupnja garažnog parkirnog mjesta opcionalna.

Moguća je kupnja putem kredita.

Gradnja je započela u rujnu 2025. Predviđeni završetak radova je za 18 mjeseci.
Izvođač radova je jedan od najpoznatijih i najpouzdanijih u Dalmaciji, što jamči visoku kvalitetu gradnje.

Stan je svijetao i osunčan, odlična mikrolokacija za ugodan obiteljski život. U blizini svih važnijih sadržaja.

Više informacija na upit:
Ivana Fabiana Buljubašić
Agent s licencom
+385 91 53 27 295
ivana.buljubasic@dogma-nekretnine.com

ID KOD AGENCIJE: ST4098

Ivana Fabiana Buljubašić
Agent s licencom
Mob: 091/532-7295
Tel: +385 21 293 201
E-mail: ivana.buljubasic@dogma-nekretnine.com
www.dogma-dalmacija.com
Ako želite znati više, možete razgovarati s Ivana Fabiana Buljubašić.
Značajke
Vrsta
Stan
Ugovor
Prodaja
Kat
Prizemlje
Dizalo
Da
Površina
82 m²
Prostorije
3
Spavaće sobe
2
Kupaonice
1
Balkon
Ne
Terasa
Ne
Garažno mjesto, parkirna mjesta
1 u garaži
Klimatizacija
Samostalno, hlađenje/grijanje
Informacije o cijeni
Cijena
€ 242.280
Cijena po m²
2.955 €/m²
Energetska učinkovitost
  • Godina izgradnje

    2026
  • Stanje

    Novo / U izgradnji
  • Klima uređaj

    Samostalno, hlađenje/grijanje
  • Energetski certifikat

    Oslobođeno
Otkrijte svaki kutak nekretnine
+4
Dodatne mogućnosti

Obratite se oglašivaču

Ili