map icon

Obiteljska kuća 376 m², novo, Vodice

Vodice
€ 1.365.000
5+
376 m²
3+
Da
Balkon
Terasa

Bilješka

Oglas ažuriran 18. 11. 2025.
Opis

referenca: DA100065013

VODICE PREDIVNA VILA U IZGRADNJI V1


VODICE VILA U IZGRADNJI (V1)
Moderna vila na mirnoj lokaciji, samo 800 m od mora

U ponudi je luksuzna vila u izgradnji smještena u mirnom dijelu Vodica, svega nekoliko minuta hoda od mora i centra grada. Nalazi se u sklopu manjeg kompleksa s tri vile, što jamči privatnost, ali i udobnost urbanog života. Vila je pažljivo projektirana kako bi zadovoljila sve potrebe suvremenog stanovanja, a istovremeno omogućila opuštanje i mir u vlastitom domu.

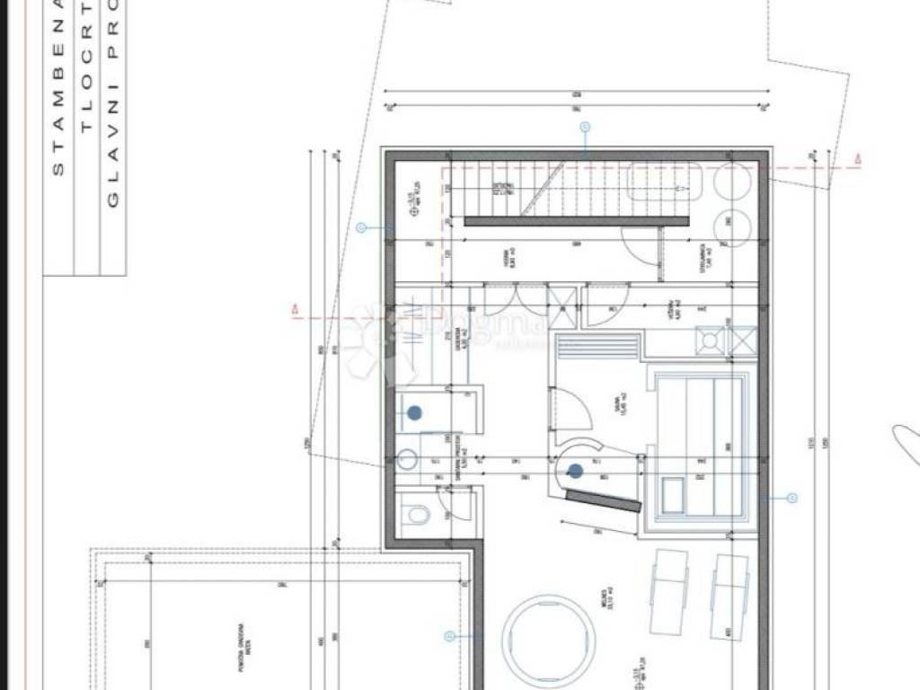
Ukupna površina vile iznosi 376,48 m i prostire se na tri etaže suterenski dio s wellness zonom, prizemlje s prostranim dnevnim prostorom te kat s tri spavaće sobe, svaka s vlastitom kupaonicom i izlazom na lođu ili terasu.

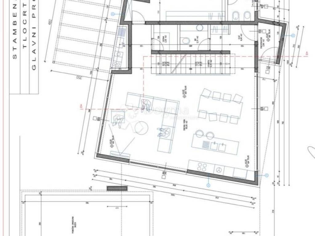
U suterenu se nalaze tehnički prostori, spremišta, vešeraj i strojarnica, ali i luksuzna wellness zona sa saunom, jacuzzijem i tušem, savršena za opuštanje. Prizemlje obuhvaća moderno uređeni ulazni prostor s garderobom, toalet i ostavu, jednu spavaću sobu s vlastitom kupaonicom i garderobom, kuhinju s blagovaonicom, dnevni boravak te izlaz na natkrivene terase i prostor predviđen za ljetnu kuhinju.

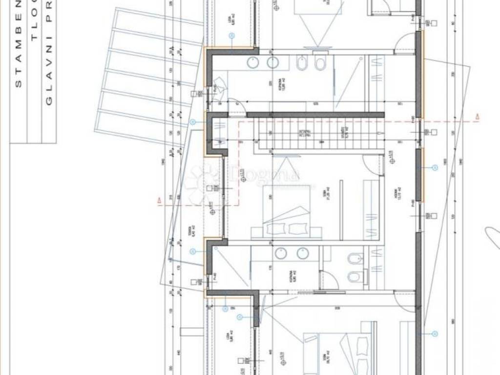
Na katu se nalaze tri prostrane spavaće sobe, svaka s garderobom i vlastitom kupaonicom, a svaka soba ima izlaz na vlastitu lođu ili terasu s kojih se pruža pogled na okolinu. Interijer je osmišljen s posebnom pažnjom prema funkcionalnosti, estetici i udobnosti.

SUTEREN GBP 115,04 M2

Hodnik + stubište 11,52 m2
Hodnik + ostavaka 7,26 m2
Strojarnica 8,51 m2
Vešeraj 6,67 m2
Hodnik 6,56 m2
Garderobe spremišta 8,41 m2
Wellness tuš, jacuzzi, sauna 29,64 m2
Bazenska tehnika 11,52 m2
UKUPNO SUTEREN 90,11 M2

PRIZEMLJE GBP 173,50 M2

Vjetrobran 2,93 m2
Ulazni prostor + garderoba 6,42 m2
Wc 2,72 m2
Ostava 2,32 m2
Hodnik + stubište 9,36 m2
Spavaća soba + garderoba 23,63 m2
Kupaonica 7,67 m2
Natkrivena terasa 4,90 m2
Dnevni boravak 25,92 m2
Kuhinja + blagovaonica 25,93 m2
Ljetna kuhinja 2,00 m2
Natkrivena terasa 34,60 m2
UKUPNO PRIZEMLJE 148,40 M2

KAT: GBP 164,64 M2

Hodnik + stubište + garderoba 18,90 m2
Spavaća soba + garderoba 21,74 m2
Kupaonica 8,14 m2
Lođa 8,00 m2
Spavaća soba + garderoba 20,35 m2
Kupaonica 12,87 m2
Lođa / terasa 4,70 m2
Spavaća soba + garderoba 26,70 m2
Kupaonica 9,69 m2
Lođa 6,88 m2
UKUPNO KAT 137,97 M2

Vila je idealna kao obiteljski dom, ali i kao investicija za turistički najam zbog svoje atraktivne lokacije, moderne gradnje i visoke razine komfora. Udaljenost od mora je svega 800 metara, a sve gradske sadržaje moguće je dosegnuti pješice.

Za sve dodatne informacije i dogovor oko razgledavanja slobodno se obratite:

Josipa Vrcić

Telefon: +385 95 901 4869

Email: josipa.vrcic@dogma-nekretnine.com

ID KOD AGENCIJE: DA100065013

Josipa Vrcić
Asistent u posredovanju
Mob: 095/901-4869
Tel: 022/646-360, 022/646-361
E-mail: josipa.vrcic@dogma-nekretnine.com
www.dogma-dalmacija.com
Ako želite znati više, možete razgovarati s Josipa Vrcić.
Značajke
Vrsta
Obiteljska kuća
Ugovor
Prodaja
Dizalo
Da
Površina
376 m²
Prostorije
5+
Spavaće sobe
4
Kupaonice
3+
Balkon
Da
Terasa
Da
Garažno mjesto, parkirna mjesta
1 u garaži
Ostale karakteristike
  • Bazen
Informacije o cijeni
Cijena
€ 1.365.000
Cijena po m²
3.630 €/m²
Energetska učinkovitost
  • Stanje

    Novo / U izgradnji
  • Energetski certifikat

    Oslobođeno
Otkrijte svaki kutak nekretnine
+10
Dodatne mogućnosti

Obratite se oglašivaču

Ili