Četverosobni stan novo, prizemlje, Centar, Krk

€ 300.000
4
99 m²
2
1
Terasa

Bilješka

Oglas ažuriran 19. 11. 2025.
Opis

referenca: APP8060

Novogradnja, apartman u prizemlju sa okućnicom, 120 m od mora

Otok Krk, na prodaju je lijepi apartman u prizemlju novogradnje na atraktivnom turističkom području samo 120 m od mora.

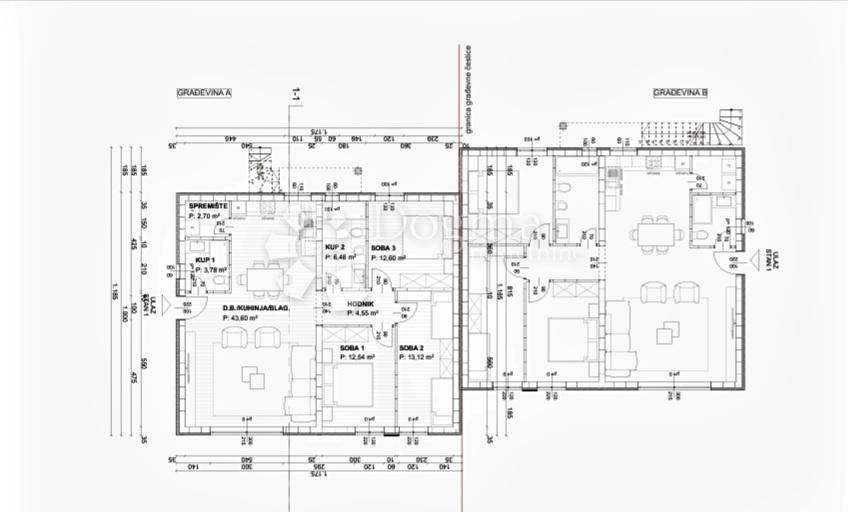
Po tipu nekretnine je ovo prostrani apartman s okućnicom. Površina ovog apartmana iznosi ukupno 99,37 m2. Sastoji od ulaznog hodnika, dnevnog boravka i kuhinje, 3 spavaće sobe i 2 kupaonice.
Velika prednost ovog apartmana je pripadajuća okućnica od 76 m2.

Ovaj je apartman u sustavu PDV-a i kod prijenosa vlasništva ne podliježe obvezi plaćanja poreza na promet nekretnina. Prodavatelj nekretnine jamči urednu građevinsku i vlasničku dokumentaciju te brz prijenos nekretnine na ime kupca.

ZA SVE INFORMACIJE KONTAKTIRAJTE:
MARINA POLONIJO
00385 98 329 462
marina.polonijo@dogma-nekretnine.com

ID KOD AGENCIJE: APP8060

Marina Polonijo
Agent s licencom
Mob: 098/329-462
Tel: 051/309-092
E-mail: marina.polonijo@dogma-nekretnine.com
www.dogma-nekretnine.com
Ako želite znati više, možete razgovarati s Marina Polonijo.
Značajke
Vrsta
Stan
Ugovor
Prodaja
Kat
1
Površina
99 m² | poslovni prostor 175 m²
Prostorije
4
Spavaće sobe
3
Kupaonice
2
Balkon
Ne
Terasa
Da
Detalji površine

Stambeni prostor

Kat
1
Površina
99,0 m²
Koeficijent
100%
Vrsta površine
Glavni
Komercijalna površina
99,0 m²

Zemljište

Kat
Prizemlje
Površina
76,0 m²
Koeficijent
100%
Vrsta površine
Dodatno
Komercijalna površina
76,0 m²
Informacije o cijeni
Cijena
€ 300.000
Cijena po m²
1.714 €/m²
Energetska učinkovitost
  • Godina izgradnje

    2023
  • Stanje

    Novo / U izgradnji
  • Energetski certifikat

    Oslobođeno
Otkrijte svaki kutak nekretnine
+9
Dodatne mogućnosti

Obratite se oglašivaču

Ili