Obiteljska kuća 243 m², Ližnjan

€ 778.500
4
243 m²
2
Balkon

Bilješka

Oglas ažuriran 01. 05. 2026.
Opis

referenca: 2177

Ližnjan je naselje na krajnjem jugoistoku Istre. Nalazi se na padini što se spušta prema moru. Geografski položaj Ližnjana omogućava pogled na Kvarnerski zaljev koji seže sve do otoka Cresa i Lošinja. Sama Općina Ližnjan obuhvaća i obližnja naselja Valturu, Muntić, Jadreške i Šišan.

Upravo u Šišanu na prodaju je kuća u izgradnji ukupne stambene površine 243 m2. Nalazi se na zemljištu površine 506 m2 kao samostojeći objekt koji se sastoji od prizemlja i prvog kata. Moderne je gradnje, u izgradanji korišteni su vrhunski materijali te PVC prozori. Prizemlje je otvorenog tipa u kojem je smještena kuhinja sa blagavaonicom i dnevnim dijelom sa izlazom na terasu i bazen, dviije spavaće sobe te kupaonicom.

Na prvoj etaži je kuhinja s dnevni boravkom, dvije spavaće sobe, kupaonica i  terasa sa pogledom na more.  

Kuća je trenutno je u roh-bau fazi gradnje te se kao takva i prodaje. Sa investitorom moguć je dogovor o nastavku gradnje kuće.  

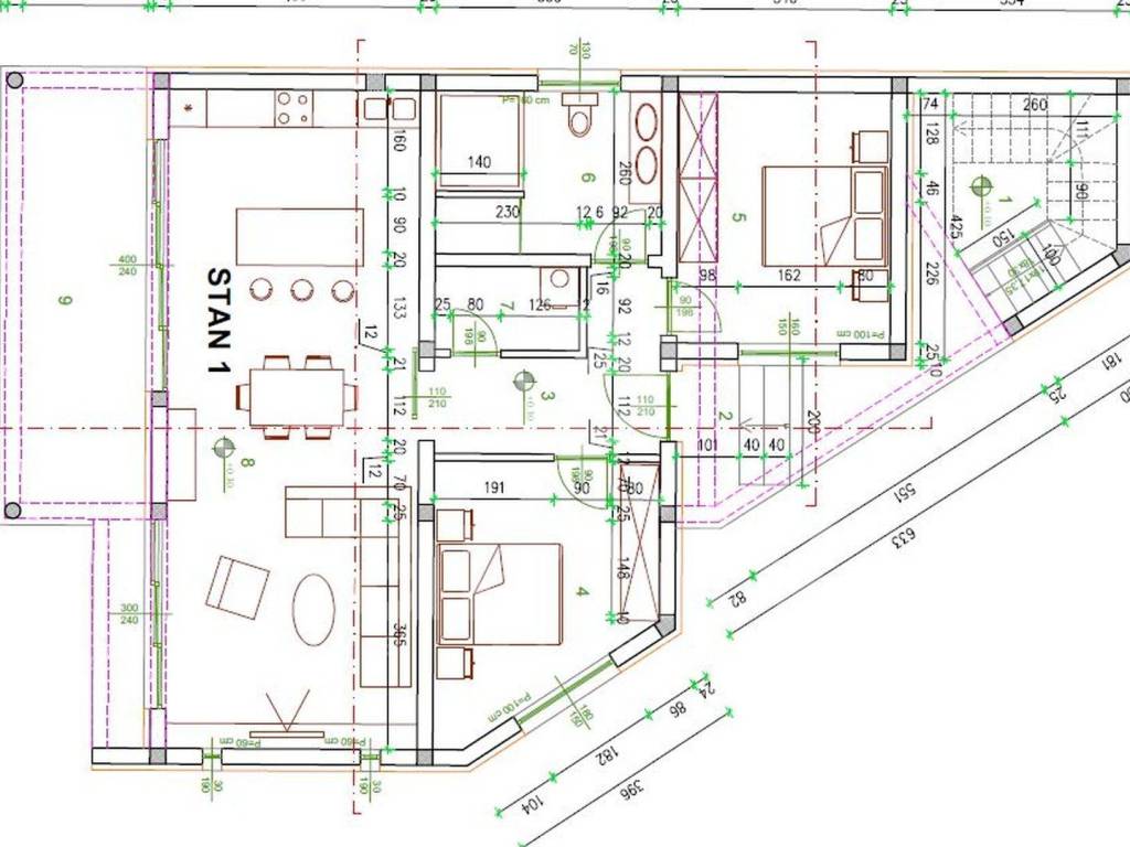
Stan 1 u prizemlju - 125.39 m2, sljedećeg je sastava: Predsoblje 7.20 m2, dnevni boravak sa kuhinjom i blagavaonom 40.20 m2, Soba 1: 13.35 m2, Soba : 13.60 m2, Kupaona 9.35 m2, Ostava 3.09 m2 i Natkrivena terasa 20 m2

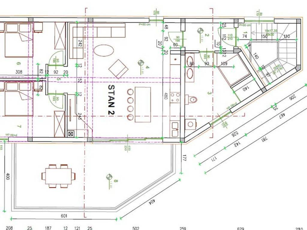
Stan 2 na prvom katu - 118.33 m2, sljedećeg je sastava: Predsoblje 1.72 m2, dnevni boravak sa kuhinjom i blagovaonom 42.72 m2, Soba 1: 12.65 m2, Soba 2: 12.65 m2, Kupaona 13.75 m2, otvorena terasa 29 m2. Površina ulaza iznosi 7.15 m2 dok je površina stubišta 11.45 m2.

Nekretnina se nalazi se na pješačkoj udaljenosti centra, u okruženju je kuća za odmor pa kao takva atraktivna je pozicija kako za život tako i za investiciju za turizam.

ZA SVE OSTALE INFORMACIJE NAZOVITE NA BROJ:

+385 98 174 8680

dean.zunic@family-nekretnine.hr

DEAN ŽUNIĆ

Licencirani agent



+385 91 539 6446

edita.premate@family-nekretnine.hr

Edita Premate Panić 

Asistent u posredovanju
Značajke
Vrsta
Obiteljska kuća
Ugovor
Prodaja
Površina
243 m²
Prostorije
4
Spavaće sobe
4
Kupaonice
2
Namješteno
Ne
Balkon
Da
Garažno mjesto, parkirna mjesta
4 na zajedničkom parkingu
Klimatizacija
Hlađenje/grijanje
Ostale karakteristike
  • Bazen
Informacije o cijeni
Cijena
€ 778.500
Cijena po m²
3.204 €/m²
Energetska učinkovitost
  • Godina izgradnje

    2024
  • Klima uređaj

    Hlađenje/grijanje
  • Energetski certifikat

    Oslobođeno
Otkrijte svaki kutak nekretnine
+26
Dodatne mogućnosti

Obratite se oglašivaču

Ili