Apartamento T3 novo, terceiro andar, Zrinjevac - Cvjetni trg, Zagreb

€ 360.000
3
145 m²
2
3
Não

Nota

Anúncio atualizado em 30/04/2026
Descrição

referência: I32539

STAN, PRODAJA, CENTAR
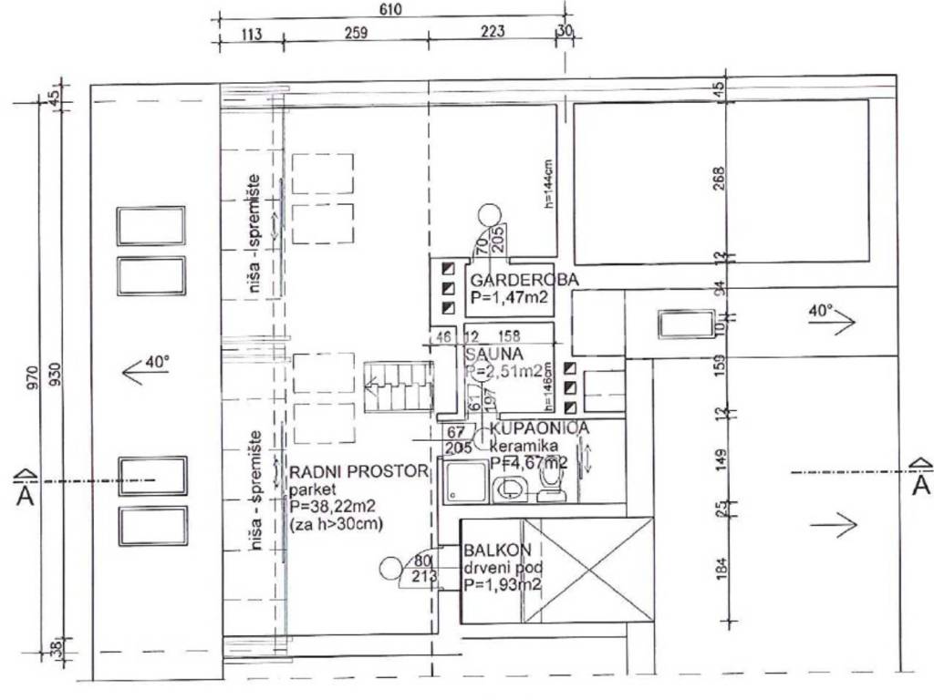
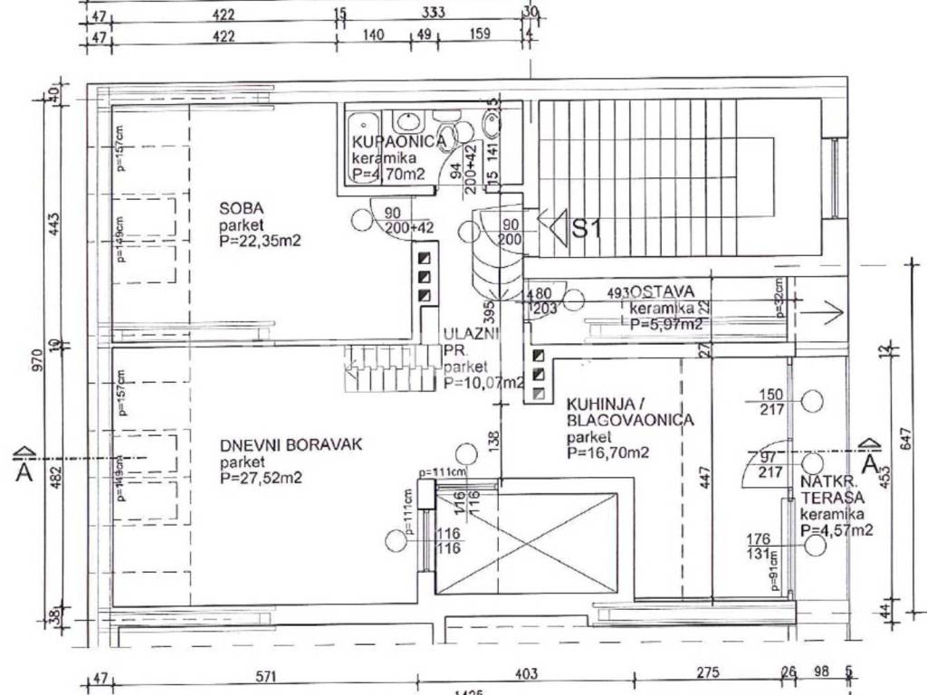
Prodaje se dvoetažni stan od 145m2 u samom centru grada u kvalitetnoj i održavanoj zgradi. Stubište zgrade je kompletno uređeno, zamijenjena je stolarija i dimnjaci, a zabatni zidovi su konstrukcijski ojačani. U planu je uređenje krovišta i fasade.
Características
Tipologia
Apartamento
Contrato
Venda
Andar
3 andar
Elevador
Não
Superfície
145 m²
Quartos
3
Quartos
2
Casas de banho
2
Mobilado
Não
Aquecimento
Central, alimentado a gás
Ar condicionado
Frio/quente
Informações de preço
Preço
€ 360.000
Preço por m²
2.483 €/m²
Eficiência energética
  • Ano de construção

    1896
  • Estado

    Novo / Em construção
  • Aquecimento

    Central, alimentado a gás
  • Ar condicionado

    Frio/quente
Descubra cada canto da propriedade
+21
Opções adicionais

Contactar o anunciante

Ou