Apartamento T2 muito bom estado, terceiro andar, Nova Ves - Gupčeva zvijezda, Zagreb

€ 990/mês
2
35 m²
1
3
Sim

Nota

Anúncio atualizado em 25/04/2026
Descrição

This description has been translated automatically and may not be accurate

referência: I34020

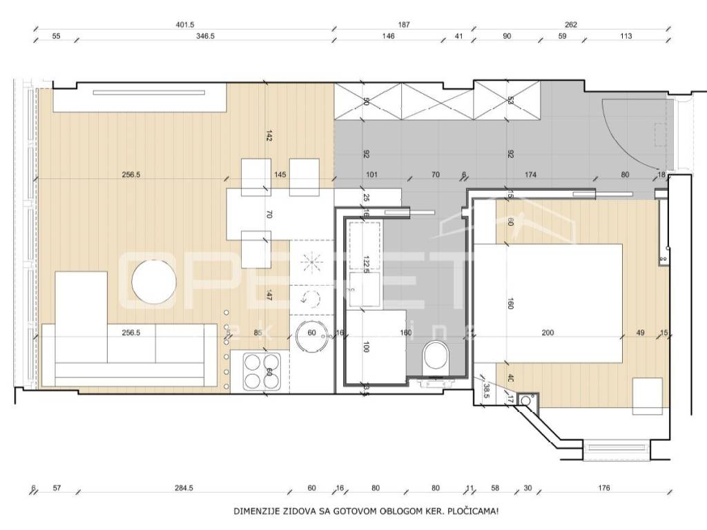
APARTMENT FOR RENT, CENTER, UNDER THE WALL, 35m2, NEWLY FURNISHED.
Excellent, 2-room apartment/business space in a prime location in the very center of the city.
The space consists of one large room/living room, kitchen, separate room/office and bathroom.
Ideal for living in the city center, but also as a business space for those who want an exclusive position near all facilities.
Características
Tipologia
Apartamento
Contrato
Renda
Andar
3 andar
Elevador
Sim
Superfície
35 m²
Quartos
2
Quartos
1
Casas de banho
1
Mobilado
Não
Estacionamento, lugares de estacionamento
1 em estacionamento compartilhado
Aquecimento
Central, alimentado a gás
Ar condicionado
Frio/quente
Informações de preço
Preço
€ 990/mês
Preço por m²
28 €/m²
Detalhes de custos
Fiança
Não indicado
Eficiência energética
  • Ano de construção

    1928
  • Estado

    Muito bom / Remodelado
  • Aquecimento

    Central, alimentado a gás
  • Ar condicionado

    Frio/quente
Descubra cada canto da propriedade
+9
Opções adicionais

Contactar o anunciante

Ou