Apartamento T4 novo, segundo andar, Ciglenica, Zagreb

€ 768.000
4
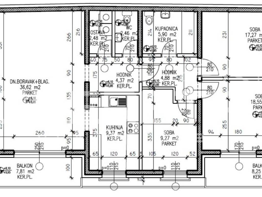
122 m²
2
2
Sim

Nota

Anúncio atualizado em 15/03/2026
Descrição

referência: I35175

STAN, LUSKUZNA NOVOGRADNJA, TRAKOŠČANSKA
Prodaje se komforan 4S stan na prestižnoj lokaciji u novogradnji koja će biti gotova najkasnije do 12 mjeseca 2026. godine. Uz stan je obavezna kupnja 2GPM ( hidraulične škare ) i svaki stan će dobiti gratis 1 VPM. Kvalitetna gradanja s vrhunskim materijalima; Smart sustav Livolo, Shevron parket, Grohe i Hansgrohe sanitarije, alu stolarija.. Više informacija na upit!
Características
Tipologia
Apartamento
Contrato
Venda
Andar
2 andar
Elevador
Sim
Superfície
122 m²
Quartos
4
Quartos
3
Casas de banho
2
Mobilado
Não
Estacionamento, lugares de estacionamento
1 em estacionamento compartilhado
Aquecimento
Individualizado, fonte de alimentação elétrica
Ar condicionado
Frio/quente
Informações de preço
Preço
€ 768.000
Preço por m²
6.295 €/m²
Eficiência energética

Consumo de energia

A+

Descubra cada canto da propriedade
+11
Opções adicionais

Contactar o anunciante

Ou