Apartamento T4 novo, Odra, Zagreb

€ 285.000
4
82 m²
2
Não

Nota

Anúncio atualizado em 22/04/2026
Descrição

referência: I35207

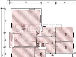
STAN PRODAJA, ODRA, Odranska zavrtnica, 4-soban stan sa dvije kupaonice, u visokom prizemlju novije zgrade. Sastoji se od ulaznog hodnika, 3 spavaće sobe od kojih jedna ima ulaz iz dnevnog boravka, dviju kupaonica sa wc-om, kuhinje u komunikaciji sa dnevnim boravkom i blagovaonicom, ukupne površine 77,79 m2 plus loggia površine 1,72 m2 i dodatnim pripadcima: spremištem u podrumu površine 2,92 m2 i parkirnim mjestom površine 11,50 m2. Sva brojila odvojena. Papiri uredni, moguća kupnja kreditom banke. Odličan stan po mjeri obitelji!
Características
Tipologia
Apartamento
Contrato
Venda
Elevador
Não
Superfície
82 m²
Quartos
4
Quartos
3
Casas de banho
2
Mobilado
Não
Estacionamento, lugares de estacionamento
1 em estacionamento compartilhado
Aquecimento
Central, alimentado a gás
Ar condicionado
Frio/quente
Informações de preço
Preço
€ 285.000
Preço por m²
3.476 €/m²
Eficiência energética

Consumo de energia

B

Descubra cada canto da propriedade
+8
Opções adicionais

Contactar o anunciante

Ou