Τριάρι Varaždinska, Sesvete sjever, Ζάγκρεμπ

€ 230.500
3
83 m²
1
Μπαλκόνι

Σημείωση

Τελευταία ενημέρωση: 03/03/2026
Περιγραφή

κωδικός: EUROVILLA-180674

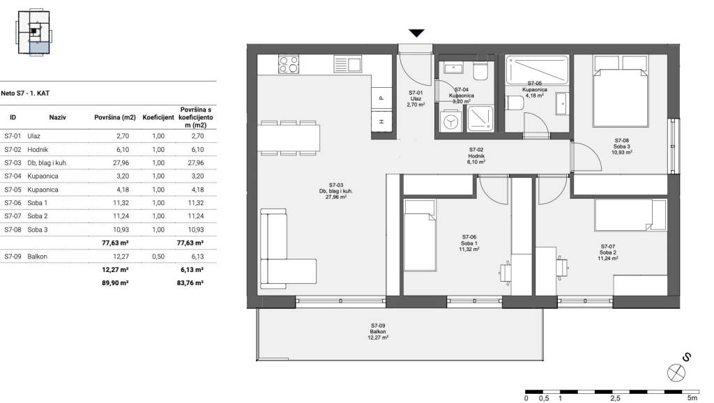
Zagreb, Sesvete, Popovec, prodaje se četverosoban stan, zatvorene površine 78 m2. Dio je vrhunskog projekta s 19 stanova na četiri etaže u zgradi s liftom te garažnim mjestima u podzemoj etaži, na vrlo dobroj i prometno povezanoj lokaciji.Projekt Popovec odlikuje odlična projektiranost po pitanju tlocrta i iskoristivosti prostora uz iznimno funkcionalna spremišta na istim etažama gdje su stanovi. Gradnja je armiranobetonska s minimalno 15 cm termoizolacije, a od opreme se ističe podno grijanje, vrhunska stolarija, keramika i parketi prve klase, klimatizacija u svakoj sobi i sl. Stanovi imaju velike terase i otvore koji im donose dovoljno svjetla te ostavljaju dodatni dojam prostranosti.Stan S7 se nalazi na prvom katu te se sastoji od dnevnog prostora s kuhinjom i blagovaonicom, tri spavaće sobe, dvije kupaonice, ulaznog dijela, hodnika i natkrivenog balkona.Uz stan je obavezna kupnja spremišta (2,94 m2) po cijeni od 4.200 € te garažnog (18.000-21.000 €) ili vanjskog parkirnog mjesta (7.000 €).Lokacija je vrlo dobra, u brzorastućem naselju sa svega 5 minuta vožnje do središta Sesveta i manje od tri minute vožnje do autoceste. Također, budući produžetak Branimirove ulice će uvelike ubrzati dolazak u centralni dio Zagreba. Škola i vrtić su udaljeni manje od 300 metara što je dobar preduvjet za obiteljski život.Za ostala pitanja stojimo Vam na raspolaganju.... Više na eurovilla.hr, ID: 180674
Εάν θέλετε να μάθετε περισσότερα, μπορείτε να μιλήσετε με Antoni Širić.
Χαρακτηριστικά
Τύπος
Διαμέρισμα
Συμβόλαιο
Πώληση
Όροφος
1
Εμβαδόν
83 m²
Δωμάτια
3
Υπνοδωμάτια
3
Μπαλκόνι
Ναι
Λεπτομέρεια επιφάνειας

Κατοικία

Όροφος
1
Εμβαδόν
83,8 m²
Συντελεστής
100%
Τύπος επιφάνειας
Κύρια
Συνολική επιφάνεια
83,8 m²
Πληροφορίες τιμής
Τιμή
€ 230.500
Τιμή ανά m²
2.777 €/m²
Ενεργειακή απόδοση
  • Κατάσταση

    Νεόδμητο / Υπό κατασκευή
  • Ενεργειακή πιστοποίηση

    Δεν υπόκειται
Σχέδιο ακινήτου
Ανακαλύψτε κάθε γωνιά του ακινήτου
+3
Πρόσθετες επιλογές

Επικοινώνησε με τον αγγελιοδότη

Ή