Γκαρσονιέρα Kuniščak, Gornja Kustošija, Ζάγκρεμπ

€ 332.412
1
50 m²
ΙΣ

Σημείωση

Τελευταία ενημέρωση: 03/03/2026
Περιγραφή

κωδικός: EUROVILLA-264539

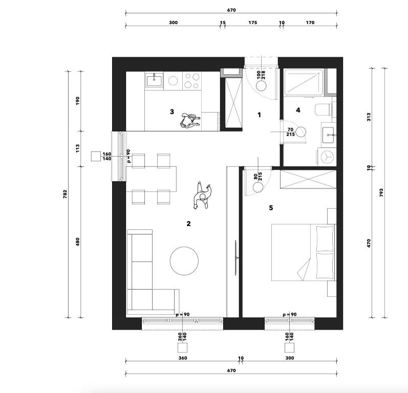
Dvosoban stan (S003) površine 50,75 m2 smješten u prizemlju.Sastoji se od hodnika, dnevnog boravka s blagovaonicom, kuhinje, kupaonice te spavaće sobe. Uz stan je obavezna kupnja garažnog mjesta te spremišta.--Na mirnoj i urbanoj lokaciji Kuniščaka razvija se suvremeni stambeni projekt novogradnje koji obuhvaća ukupno 38 funkcionalno projektiranih stanova. Završetak gradnje planiran je u proljeće 2027. godine.Zgrada je projektirana s naglaskom na kvalitetu gradnje, trajnost materijala i visoku razinu stanovanja. Ugrađuje se aluminijska stolarija s troslojnim IZO staklima proizvođača Schüco, uključujući velike staklene stijene i visoke prozore s niskim parapetima. Rolete su na električno podizanje, s unutarnjim kamenim i vanjskim aluminijskim klupčicama. Ulaz u svaki stan osiguran je protuprovalnim vratima.Sanitarni prostori opremljeni su keramičkim pločicama prve klase, postavljenima do stropa, uz korištenje keramike renomiranih proizvođača. Kupaonice uključuju kvalitetnu sanitarnu opremu i rješenja tuširanja ili kade (tuš kada, kada ili walk-in), ovisno o tipu stana.Grijanje je riješeno putem vodnog podnog grijanja priključenog na toplanu preko individualnih toplinskih podstanica (ITPS), što omogućuje zasebnu regulaciju temperature grijanja i potrošne tople vode u svakom stanu. U kupaonicama su dodatno ugrađeni električni radijatori tipa “ljestve” s digitalnim termostatima.Ventilacija sanitarnih prostorija osigurana je niskošumnim ventilatorima, dok je za kuhinje predviđen zaseban sustav odsisnih cijevi za svaku napu, izveden do pozicije štednjaka prema projektu. Klimatizacija je riješena sustavom proizvođača Daikin, s vanjskim jedinicama smještenima na krovu zgrade te unutarnjim jedinicama u svim glavnim prostorijama.Podne obloge u stambenim prostorima izvedene su u gotovom parketu vrhunske kvalitete, u skladu s konceptom trajnosti i ugodnog boravka.Useljenje: proljeće 2027. godine.... Više na eurovilla.hr, ID: 264539
Εάν θέλετε να μάθετε περισσότερα, μπορείτε να μιλήσετε με Nenad Tatarinov.
Χαρακτηριστικά
Τύπος
Διαμέρισμα
Συμβόλαιο
Πώληση
Όροφος
Ισόγειο
Εμβαδόν
50 m²
Δωμάτια
1
Υπνοδωμάτια
1
Λεπτομέρεια επιφάνειας

Κατοικία

Όροφος
Ισόγειο
Εμβαδόν
50,8 m²
Συντελεστής
100%
Τύπος επιφάνειας
Κύρια
Συνολική επιφάνεια
50,8 m²
Πληροφορίες τιμής
Τιμή
€ 332.412
Τιμή ανά m²
6.648 €/m²
Ενεργειακή απόδοση
  • Κατάσταση

    Νεόδμητο / Υπό κατασκευή
  • Ενεργειακή πιστοποίηση

    Δεν υπόκειται
Σχέδιο ακινήτου
Ανακαλύψτε κάθε γωνιά του ακινήτου
+6
Πρόσθετες επιλογές

Επικοινώνησε με τον αγγελιοδότη

Ή