Τριάρι Gornji Bukovac, Bukovac - Remete, Ζάγκρεμπ

€ 482.076
3
114 m²
ΙΣ

Σημείωση

Τελευταία ενημέρωση: 03/03/2026
Περιγραφή

κωδικός: EUROVILLA-466047

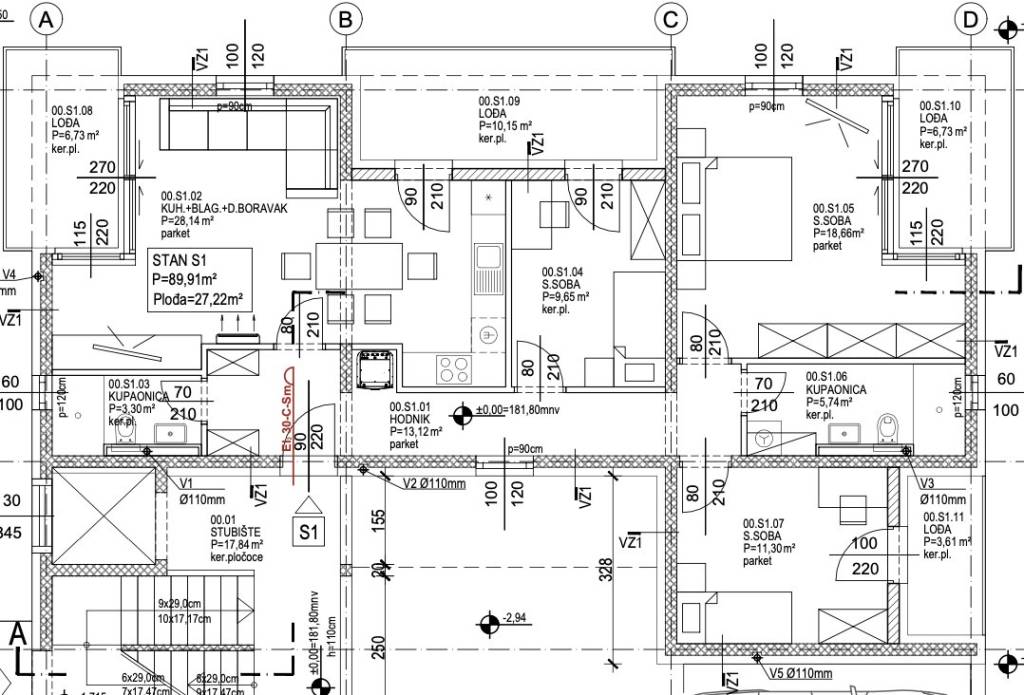
Zagreb, Maksimir, četverosoban stan u prizemlju novogradnje s ukupno 4 stana i privatnim parkirnim mjestom, smješten u mirnom okruženju prirode.Stan S1 nalazi se u prizemlju zgrade A, te se sastoji od ulaznog hodnika, prostranog dnevnog boravka s kuhinjom i blagovaonicom, tri spavaće sobe svaka s izlazom na lođu, jedne kupaonice te gostinjskog toaleta. Ukupna zatvorena površina stana iznosi 89,91 m², dok površine lođa iznose 27,22 m² (obračunski 20,42 m²).Stanu pripada vanjsko parkirno mjesto površine 12,50 m² (obračunski 3,12 m²) te spremište 2,66 m² (obračunski 1,33 m²), oba uključena u cijenu stana. Obavezna je kupnja garažnog parkirnog mjesta po cijeni od 45.000 EUR.Ukupna površina stana iznosi 114,78 m².Novogradnja je vrhunski građena:armiranobetonska konstrukcijatermoizolacijska fasada (ETICS sustav)aluminijska stolarija s troslojnim izo-staklom i aluminijskim roletamadizalice topline zrak-voda (grijanje i priprema tople vode)podno grijanjeravni krov, moderni materijali i kvalitetna završna obradalifthortikulturno uređen okolišprojekt obuhvaća četiri zgrade s ukupno 16 stanova.Odlična mikrolokacija u zelenom dijelu Maksimira osigurava mir i privatnost, a ujedno nudi dobru povezanost s gradom. U blizini se nalaze svi osnovni sadržaji za ugodan život.Useljivo ljeto 2027. godine.Za sve dodatne informacije stojimo Vam na raspolaganju.... Više na eurovilla.hr, ID: 466047
Εάν θέλετε να μάθετε περισσότερα, μπορείτε να μιλήσετε με Dominik Jeftić.
Χαρακτηριστικά
Τύπος
Διαμέρισμα
Συμβόλαιο
Πώληση
Όροφος
Ισόγειο
Εμβαδόν
114 m²
Δωμάτια
3
Υπνοδωμάτια
3
Λεπτομέρεια επιφάνειας

Κατοικία

Όροφος
Ισόγειο
Εμβαδόν
114,8 m²
Συντελεστής
100%
Τύπος επιφάνειας
Κύρια
Συνολική επιφάνεια
114,8 m²
Πληροφορίες τιμής
Τιμή
€ 482.076
Τιμή ανά m²
4.229 €/m²
Σχέδιο ακινήτου
Ανακαλύψτε κάθε γωνιά του ακινήτου
+6
Πρόσθετες επιλογές

Επικοινώνησε με τον αγγελιοδότη

Ή