Τριάρι Ilica, Kustošija Centar, Ζάγκρεμπ

€ 635.796
3
109 m²
4
Βεράντα

Σημείωση

Τελευταία ενημέρωση: 03/03/2026
Περιγραφή

κωδικός: EUROVILLA-720494

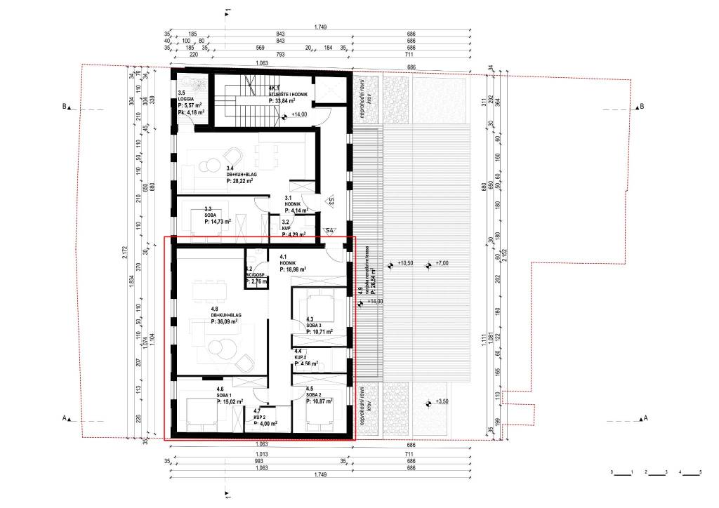
Črnomerec, NOVOGRADNJA, projekt poslovno-stambene zgrada koja će biti građena prema najvišim standardima na šest etaža s ukupno 7 stambenih jedinica. Useljenje ljeto 2027. godine.STAN S4 - četverosoban stan na četvrtom katu zatvorene površine 102,99 m2, terasa 26,54 m2. Ukupno obračunski netto korisna površina 109,62 m2.Sastoji se od ulaznog hodnika, dnevnog boravka s blagovaonicom i kuhinjom otvorenog tlocrta s izlazom na terasu, tri spavaće sobe, dvije kupaonice i gostinjskog wc-a s gospodarstvom.OBAVEZNA KUPNJA GARAŽNOG PARKIRNOG MJESTA.Vrhunska oprema: podno grijanje, dizalica topline, klimatizirane sve prostorije, ALU stolarija, protuprovalna ulazna vrata, parket I klase, vrhunska keramika i sanitarna oprema…Nalazi se na izvrsnoj mikrolokaciji u neposrednoj blizini centra grada, javnog prijevoza te svih sadržaja potrebnih za kvalitetan život.Za sve ostale informacije stojimo na raspolaganju.... Više na eurovilla.hr, ID: 720494
Εάν θέλετε να μάθετε περισσότερα, μπορείτε να μιλήσετε με Renato Tripalo.
Χαρακτηριστικά
Τύπος
Διαμέρισμα
Συμβόλαιο
Πώληση
Όροφος
4
Εμβαδόν
109 m²
Δωμάτια
3
Υπνοδωμάτια
3
Βεράντα
Ναι
Λεπτομέρεια επιφάνειας

Κατοικία

Όροφος
4
Εμβαδόν
109,6 m²
Συντελεστής
100%
Τύπος επιφάνειας
Κύρια
Συνολική επιφάνεια
109,6 m²
Πληροφορίες τιμής
Τιμή
€ 635.796
Τιμή ανά m²
5.833 €/m²
Σχέδιο ακινήτου
Ανακαλύψτε κάθε γωνιά του ακινήτου
+3
Πρόσθετες επιλογές

Επικοινώνησε με τον αγγελιοδότη

Ή