Τριάρι Otok, Sveta Klara, Ζάγκρεμπ

€ 393.906
3
116 m²
3
Βεράντα

Σημείωση

Τελευταία ενημέρωση: 03/03/2026
Περιγραφή

κωδικός: EUROVILLA-916835

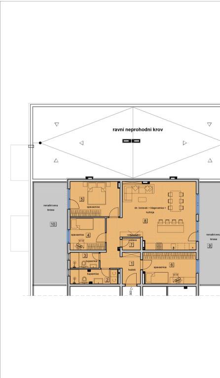
Sloboština, Otok,Green Island Residence, moderno i ekskluzivno stambeno naselje, novogradnja visokog standarda, koja spaja suvremeni dizajn i visoku energetsku učinkovitost.Stan S157 - četverosoban na trećem katu s liftom, zatvorene površine 95,50 m² s dvije nenatkrivene terase 24,16 m² (6,04) i 17,85 m² (4,46), ukupno neto korisne površine 106 m².Stanu pripada garažno parkirno mjesto D-78 površine 15,87 m² (7,93), te spremište D-78 u podrumu površine 5,10 m² (2,55). Mogućnost kupnje dodatnog parkirnog mjesta i spremišta.Ukupno obračunski 116,48 m².Sastoji se od ulaznog hodnika, otvorenog dnevnog boravka s kuhinjom i blagovaonicom, tri spavaće sobe, dvije kupaonice i dvije nenatkrivene terase.Oprema:Podno grijanje - ITPS sustav s centralnom pripremom tople vodeUgrađeni klima uređajiPVC stolarija - troslojno IZO staklo, električni podizači roleta i komarniciVisokokvalitetni parketi i keramika 1. klase renomiranih proizvođačaPremium sanitarije i armatureVideo portafonSolarni paneli na krovu za veću energetsku učinkovitostSigurnosna protuprovalna vrataLED rasvjeta u stubištima i zajedničkim prostorimaBalkonske ograde modernog dizajnaEnergetski certifikat A+ProjektGreen Island Residence nudi moderan način stanovanja u zatvorenom tipu naselja koje se sastoji od 2 stambene zgrade po 79 stanova, dječjeg igrališta, 160 garažnih parkirnih mjesta, 50 vanjskih parkirnih mjesta i 160 spremišta.Nalazi se na odlično povezanoj lokaciji u blizini vrtića, škola, doma zdravlja, trgovina i javnog prijevoza. Shopping centar Avenue Mall i park Bundek na nekoliko minuta udaljenosti. Brza povezanost s centrom grada, zračnom lukom i autocestom.Predviđeno useljenje: proljeće 2027Kupci su oslobođeni plaćanja poreza na nekretnineMogućnost kupnje putem zelenog kredita.Sve dodatne informacije na upit.... Više na eurovilla.hr, ID: 916835
Εάν θέλετε να μάθετε περισσότερα, μπορείτε να μιλήσετε με Tina Lisičak.
Χαρακτηριστικά
Τύπος
Διαμέρισμα
Συμβόλαιο
Πώληση
Όροφος
3
Εμβαδόν
116 m²
Δωμάτια
3
Υπνοδωμάτια
3
Βεράντα
Ναι
Λεπτομέρεια επιφάνειας

Κατοικία

Όροφος
3
Εμβαδόν
116,5 m²
Συντελεστής
100%
Τύπος επιφάνειας
Κύρια
Συνολική επιφάνεια
116,5 m²
Πληροφορίες τιμής
Τιμή
€ 393.906
Τιμή ανά m²
3.396 €/m²
Σχέδιο ακινήτου
Ανακαλύψτε κάθε γωνιά του ακινήτου
+4
Πρόσθετες επιλογές

Επικοινώνησε με τον αγγελιοδότη

Ή