Γκαρσονιέρα Sesvetski Kraljevec, Staro Brestje, Ζάγκρεμπ

€ 173.000
1
35 m²
ΙΣ

Σημείωση

Τελευταία ενημέρωση: 12/03/2026
Περιγραφή

κωδικός: EUROVILLA-275993

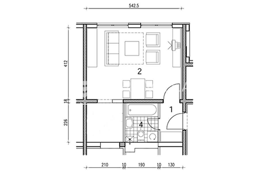
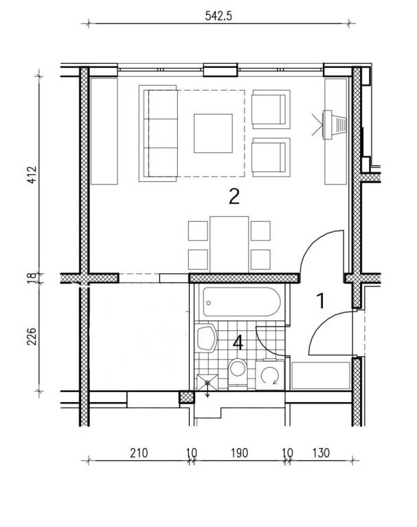
Zagreb, SESVETE, u mirnom naselju Sesvetski kraljevac, prodaje se prekrasan, novouređen stan u prizemlju novogradnje iz 2024. godine. Stambene površine 35 m2, ovaj stan maksimalno je tlocrtno iskorišten i ugodan za život.Sastoji se od svijetlog i prozračnog dnevnog boravka s blagovaonskim dijelom i kuhinjom, zatim spavaće sobe i kupaone. Sav namještaj rađen je po mjeri, a stan je u potpunosti opremljen kvalitetnim uređajima pod garancijom. Stan ima energetski certifikat A+, plinsko grijanje, Bosch kondenzacijski bojler, video portafon i klimu. U podrumu zgrade nalazi se zajedničko spremište svih stanara,a zgrada ima i garažu te je moguća kupnja garažnog parkirnog mjesta. Oko zgrade nalaze se nanaplatni parking.Vlasništvo 1/1. Moguća kupnja putem kredita banke.Lokacija nudi miran ambijent, a odlična povezanost sa Zagrebom čini je vrlo požejnom. U neposrednoj blizini nalaze se pekara, razni kafići i trgovine, vrtić i škola, bazeni, teretana, autobusna i željeznička stanica te svi sadržaji potrebni za lagodan život. Stan je idealan za obitelj ali i kao investicija jer je dosada bio u najmu s konstantnim prihodima.Za ostale informacije stojimo na raspolaganju.... Više na eurovilla.hr, ID: 275993
Εάν θέλετε να μάθετε περισσότερα, μπορείτε να μιλήσετε με Ana Fočić.
Χαρακτηριστικά
Τύπος
Διαμέρισμα
Συμβόλαιο
Πώληση
Όροφος
Ισόγειο
Εμβαδόν
35 m²
Δωμάτια
1
Υπνοδωμάτια
1
Λεπτομέρεια επιφάνειας

Κατοικία

Όροφος
Ισόγειο
Εμβαδόν
35,0 m²
Συντελεστής
100%
Τύπος επιφάνειας
Κύρια
Συνολική επιφάνεια
35,0 m²
Πληροφορίες τιμής
Τιμή
€ 173.000
Τιμή ανά m²
4.943 €/m²
Σχέδιο ακινήτου
Ανακαλύψτε κάθε γωνιά του ακινήτου
+7
Πρόσθετες επιλογές

Επικοινώνησε με τον αγγελιοδότη

Ή