Appartamento nuovo, secondo piano, Petrčane - Kožino, Zara

€ 1.040.000
5
167 m²
2
2
Terrazzo

Nota

Annuncio aggiornato il 08/04/2026
Descrizione

This description has been translated automatically and may not be accurate

riferimento: DA100064509

PETRČANE - S4 SECOND FLOOR WITH ROOFTOP TERRACE AND SEA VIEW

A UNIQUE LUXURY NEW DEVELOPMENT.

The apartment is part of a smaller residential building located in the second row from the sea.

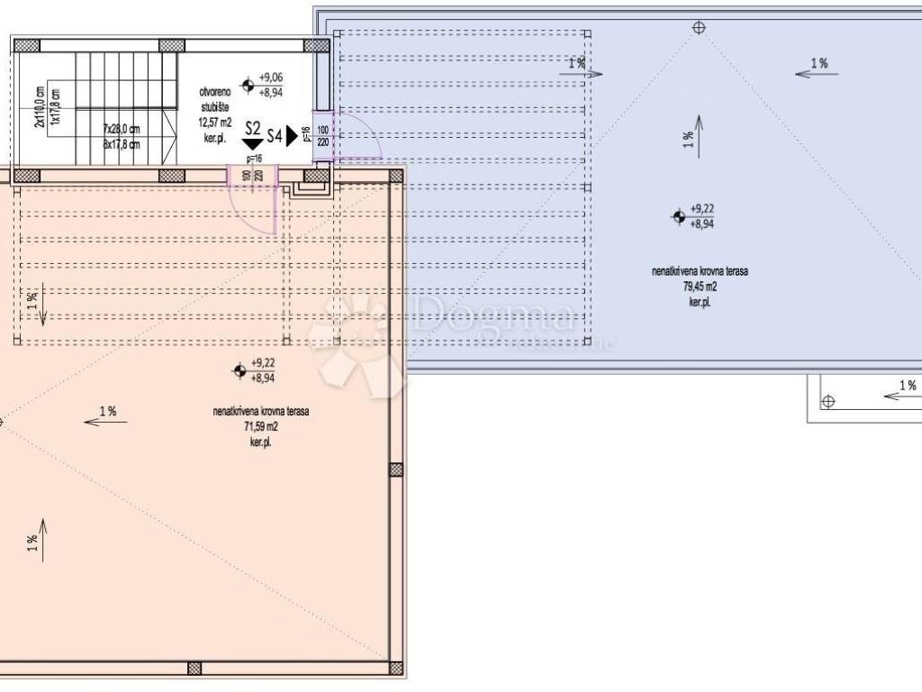
Apartment S4
Apartment S4 consists of an entrance hallway, kitchen, and living room, four bedrooms, two bathrooms, a toilet, and a fitness and leisure room, with a total area of 117.81 m.
The apartment includes two covered terraces of 12.11 m and 12.13 m, a rooftop terrace of 79.45 m, and two parking spaces.
The total gross area of the apartment is 261.12 m, while the net sales area is 167.41 m.

The apartment offers a sea view and is in close proximity to the beach.

Expected completion: End of 2026.

For all additional information and to schedule a viewing, please contact:

Vedrana Bašić
+385 91 9077 396
vedrana.basic@dogma-nekretnine.com

ID CODE: DA100064509

Vedrana Bašić
Asistent u posredovanju
Mob: 091/907-7396
Tel: 023/551-400
E-mail: vedrana.basic@dogma-nekretnine.com
www.dogma-nekretnine.com
Se vuoi saperne di più, puoi parlare con Vedrana Bašić .
Caratteristiche
Tipologia
Appartamento
Contratto
Vendita
Piano
2 piano
Superficie
167 m²
Locali
5
Camere da letto
4
Bagni
2
Balcone
No
Terrazzo
Informazioni sul prezzo
Prezzo
€ 1.040.000
Prezzo al m²
6.228 €/m²
Efficienza energetica
  • Stato

    Nuovo / In costruzione
  • Certificazione energetica

    Esente
Scopri ogni angolo dell'immobile
+23
Opzioni aggiuntive

Contatta l'inserzionista

Oppure