Dvosobni stan Praška ulica, Zrinjevac - Cvjetni trg, Zagreb

€ 450.000
2
101 m²
2
Balkon

Bilješka

Oglas ažuriran 03. 03. 2026.
Opis

referenca: EUROVILLA-170625

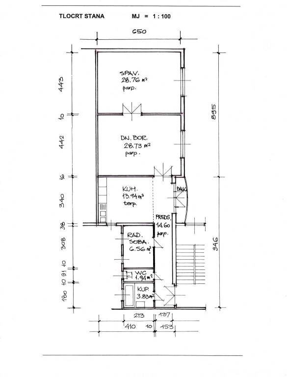
Zagreb, Centar, Praška ulica, predivan trosoban stan 101 m²

Zagreb, Centar, Praška ulica, trosoban stan 101 m2 koji se nalazi na 2. katu stambene zgrade bez lifta, izgrađene 1920-ih godina.Stan se sastoji od ulaznog hodnika, kupaonice s WC-om, gostinjskog WC-a, kuhinje sa blagovaonom, radne sobe, dnevnog boravka i spavaće sobe.Budući da se nalazi u dvorišnoj zgradi, stan je zaštićen od ulične buke, a stanarima je na raspolaganju i mogućnost parkiranja u dvorištu.Stan je potpuno adaptiran 2020. godine (instalacije, stolarija, podne obloge…), a nakon adaptacije nije bila u upotrebi, što predstavlja rijetku priliku u centru grada.Lokacija je iznimno prestižna - u neposrednoj blizini Trga bana Josipa Jelačića, s odličnom povezanošću javnim prijevozom i u okruženju svih ključnih sadržaja za kvalitetan svakodnevni život.Sve dodatne informacije dostupne su na upit.... Više na eurovilla.hr, ID: 170625
Ako želite znati više, možete razgovarati s Filip Vuković.
Značajke
Vrsta
Stan
Ugovor
Prodaja
Kat
2
Površina
101 m²
Prostorije
2
Spavaće sobe
2
Balkon
Da
Detalji površine

Stambeni prostor

Kat
2
Površina
101,7 m²
Koeficijent
100%
Vrsta površine
Glavni
Komercijalna površina
101,7 m²
Informacije o cijeni
Cijena
€ 450.000
Cijena po m²
4.455 €/m²
Tlocrt
Otkrijte svaki kutak nekretnine
+7
Dodatne mogućnosti

Obratite se oglašivaču

Ili