1/6


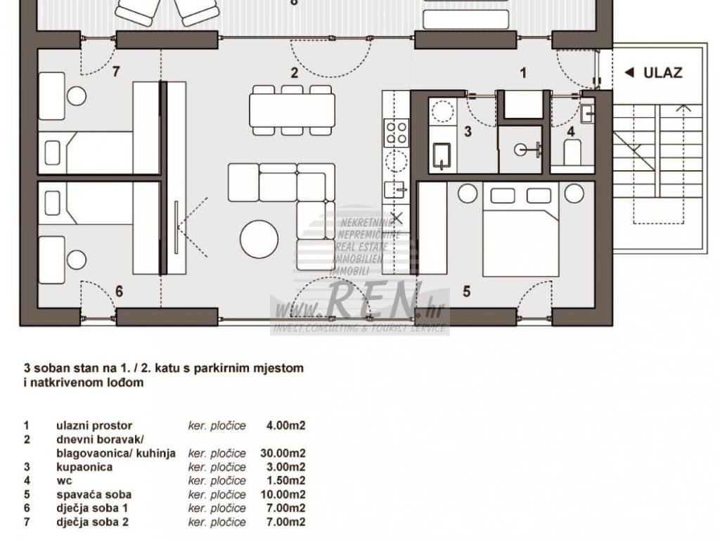
Trosobni stan novo, prvi kat, Umag
Umag€ 255.000
Oglas ažuriran 22. 12. 2025.
Značajke
- Vrsta
- Stan
- Ugovor
- Prodaja
- Kat
- 1 kat
- Katovi zgrade
- 3
- Površina
- 79 m²
- Prostorije
- 3
- Kupaonice
- 1
- Garažno mjesto, parkirna mjesta
- 1 na zajedničkom parkingu
Informacije o cijeni
- Cijena
- € 255.000
- Cijena po m²
- 3.228 €/m²
Energetska učinkovitost
Godina izgradnje
2026Stanje
Novo / U izgradnjiEnergetski certifikat
Neklasificirano
Otkrijte svaki kutak nekretnine
Dodatne mogućnosti