1/16


Obiteljska vila 150 m², Kršan
Kršan€ 450.000
Oglas ažuriran 22. 12. 2025.
Opis
referenca: 2323
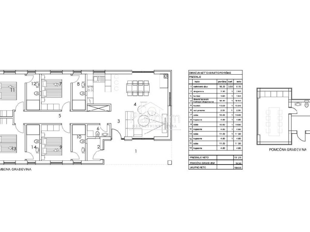
Istra,Kršan izvanredna prizemnica s bazenom
U istočnom dijeluIstarskog poluotoka prodaje se predivna prizemnica s bazenom.
Okružena kućama za odmor,od mora je udaljena 6000 m.
Sastoji se od dnevnog boravka,kuhinje s blagavaonom otvorenog tlocrta s pogledom na dvorište i prekrasan bazen.
Četiri spavaće sobe od kojih svaka ima svoju kupaonicu,wc,ostava.
U dvorištu smjestio se bazen,konoba koja sadrži ljetnu kuhinju,wc,tuš i strojarnica.
Prekrasna prizemnica za turističke svrhe u kojoj ćete uživati.
Info na 00385 91 924 9486
Značajke
- Vrsta
- Obiteljska vila
- Ugovor
- Prodaja
- Površina
- 150 m²
- Kupaonice
- 3+
- Garažno mjesto, parkirna mjesta
- 1 na zajedničkom parkingu
Informacije o cijeni
- Cijena
- € 450.000
- Cijena po m²
- 3.000 €/m²
Energetska učinkovitost
Energetski certifikat
Neklasificirano
Otkrijte svaki kutak nekretnine
Dodatne mogućnosti