Četverosobni stan novo, međukat, Mlaka, Rijeka

€ 405.000
4
114 m²
2
M
Da
Balkon

Bilješka

Oglas ažuriran 25. 02. 2026.
Opis

referenca: 130-464

RIJEKA - ELEV8 KVARNER - Samo kod nas! 3S+DB stan, 114 m2, balkon

Samo kod nas! Manor predstavlja moderan stambeni projekt smješten u mirnoj ulici, u neposrednoj
blizini svih sadržaja potrebnih za ugodan i funkcionalan život. Projekt se sastoji od osam pažljivo
projektirana stana, različitih kvadratura i rasporeda, prilagođenih kako za obiteljski život, tako i za
investiciju.

* Odlike novogradnje:

- cigla + fasada debljine 10 cm
- PVC stolarija, električne rolete u kombinaciji s aluminijskim staklenim stijenama i ulaznim vratima stanova,
komarnici na svim prozorima, troslojno staklo
- grijanje je podno na dizalicu topline + klima uređaji
- podovi: parket + keramičke pločice prve klase
- natkriveni parking
- balkoni svih stanova imaju staklene ograde
- svaka stambena jedinica ima pripadajuće spremište površine 3 m2.

Zgrada se ističe kvalitetnom gradnjom, promišljenim tlocrtnim rješenjima i obiljem prirodnog svjetla.
Svi stanovi imaju izlaz na balkon, a viša kvaliteta završne obrade osigurava dugoročnu vrijednost i
ugodan boravak.

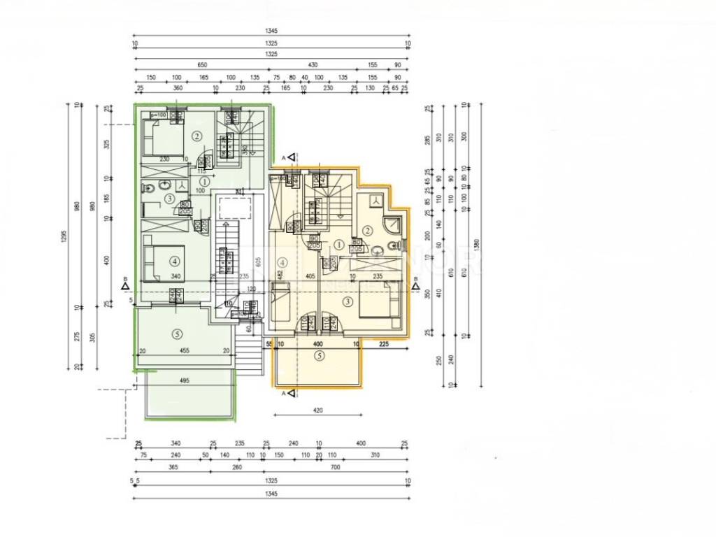
* STAN 3 - 3S+DB, 114 m2, visoko prizemlje
Prostrani stan koji omogućuje komfor, prostor i privatnost. Radi se o komfornom 3S+DB stanu koji
ima jasno odvojen dnevni i spavaći dio, a master spavaća soba i dnevni boravak imaju izlaz na
balkone.

Osim toga, stanu pripadaju i 2 parkirna mjesta, čime je osigurana maksimalna udobnost i funkcionalnost
te spremište površine 3 m2.

ID KOD AGENCIJE: 130-464

MANOR NEKRETNINE d.o.o.
Mob: +385 99 365 7230
Tel: +385 51 504 909
E-mail: info@manor.hr
www.manor.hr
Značajke
Vrsta
Stan
Ugovor
Prodaja
Kat
Visoko prizemlje
Dizalo
Da
Površina
114 m²
Prostorije
4
Spavaće sobe
3
Kupaonice
2
Balkon
Da
Terasa
Ne
Klimatizacija
Samostalno, hlađenje/grijanje
Informacije o cijeni
Cijena
€ 405.000
Cijena po m²
3.553 €/m²
Energetska učinkovitost
  • Stanje

    Novo / U izgradnji
  • Klima uređaj

    Samostalno, hlađenje/grijanje
  • Energetski certifikat

    Oslobođeno
Otkrijte svaki kutak nekretnine
+13
Dodatne mogućnosti

Obratite se oglašivaču

Ili