Trosobni stan novo, prvi kat, Mlaka, Rijeka

€ 250.000
3
59 m²
1
1
Da
Balkon

Bilješka

Oglas ažuriran 01. 04. 2026.
Opis

referenca: 130-463

RIJEKA - ELEV8 KVARNER - Samo kod nas! 2S+DB stan, 59 m2, balkon

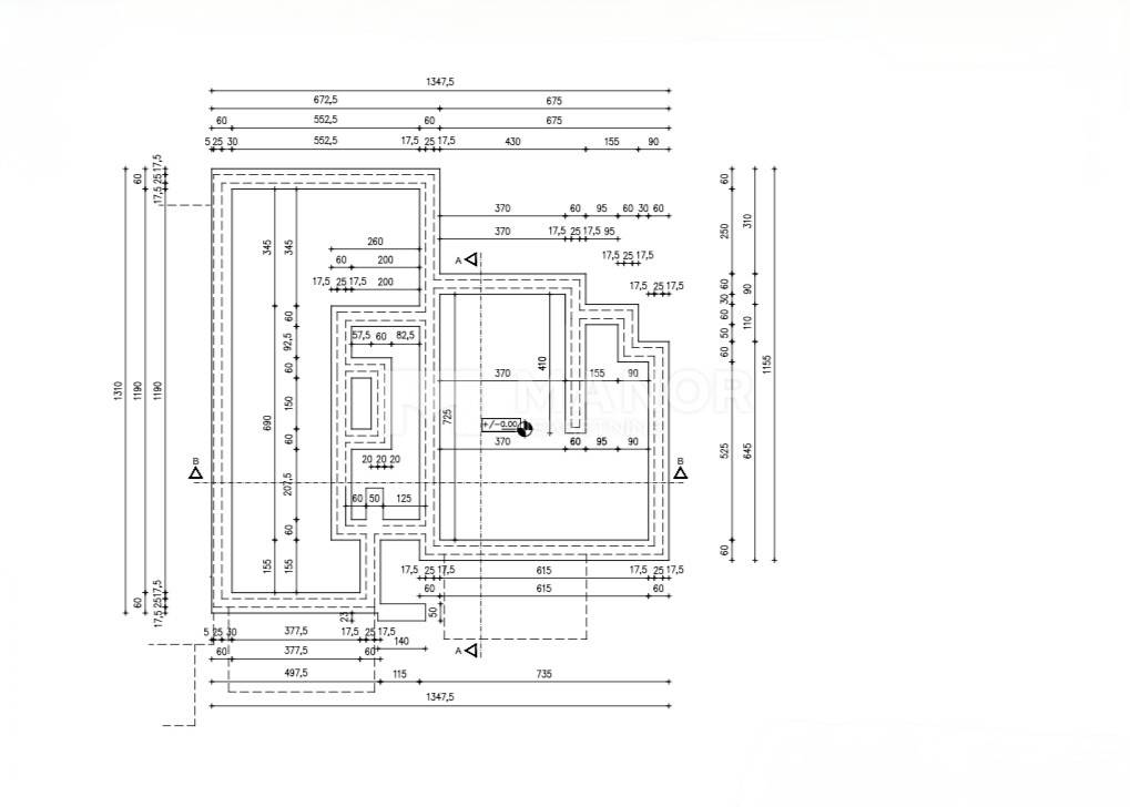
Samo kod nas! Manor predstavlja moderan stambeni projekt smješten u mirnoj ulici, u neposrednoj
blizini svih sadržaja potrebnih za ugodan i funkcionalan život. Projekt se sastoji od osam pažljivo
projektirana stana, različitih kvadratura i rasporeda, prilagođenih kako za obiteljski život, tako i za
investiciju.

* Odlike novogradnje:

- cigla + fasada debljine 10 cm
- PVC stolarija, električne rolete u kombinaciji s aluminijskim staklenim stijenama i ulaznim vratima stanova,
komarnici na svim prozorima, troslojno staklo
- grijanje je podno na dizalicu topline + klima uređaji
- podovi: parket + keramičke pločice prve klase
- natkriveni parking
- balkoni svih stanova imaju staklene ograde
- svaka stambena jedinica ima pripadajuće spremište površine 3 m2.

Zgrada se ističe kvalitetnom gradnjom, promišljenim tlocrtnim rješenjima i obiljem prirodnog svjetla.
Svi stanovi imaju izlaz na balkon, a viša kvaliteta završne obrade osigurava dugoročnu vrijednost i
ugodan boravak.

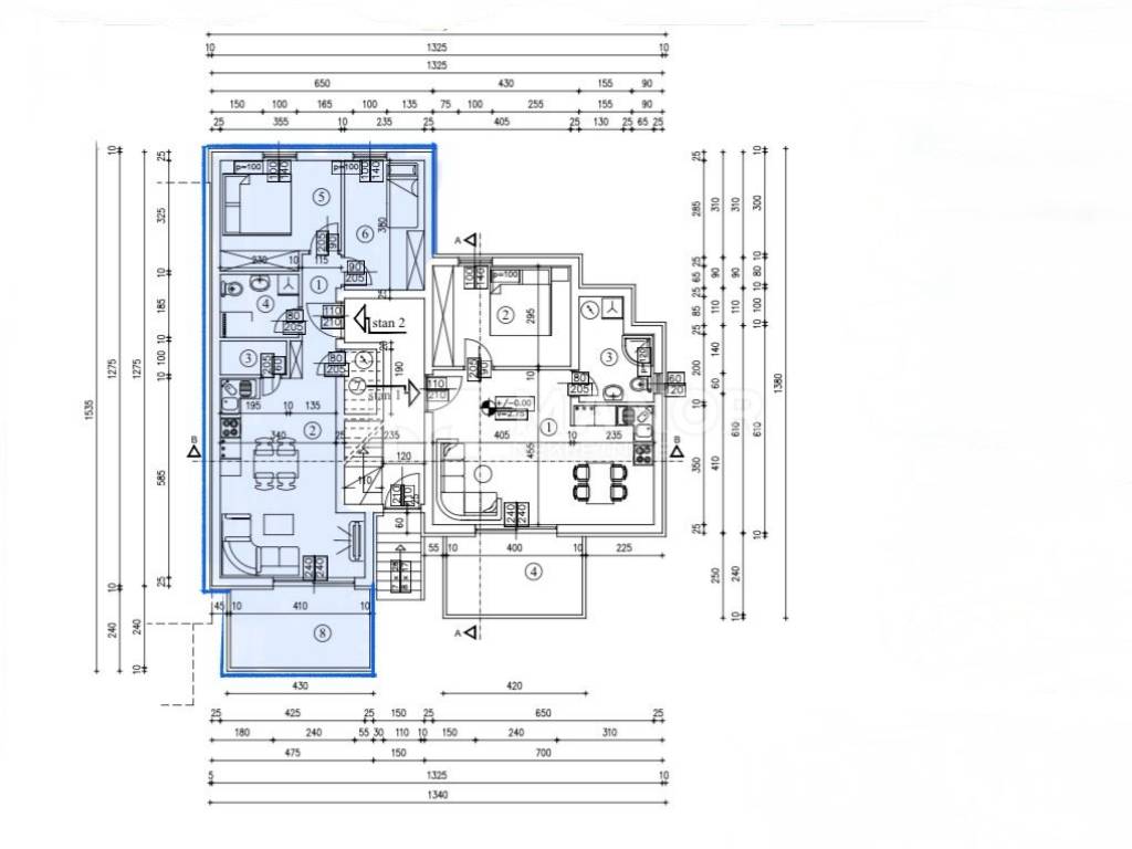
* STAN 2 - 2S+DB, 59 m2, 1.kat
Praktičan stan s dvije spavaće sobe, dnevnim boravkom povezanim s kuhinjom i blagovaonicom,
kupaonicom te balkonom koji pruža dodatan prostor za opuštanje. Uravnotežen omjer privatnog i
zajedničkog prostora.

Osim toga, stanu pripadaju i 2 parkirna mjesta, čime je osigurana maksimalna udobnost i funkcionalnost
te spremište površine 3 m2.

ID KOD AGENCIJE: 130-463

MANOR NEKRETNINE d.o.o.
Mob: +385 99 365 7230
Tel: +385 51 504 909
E-mail: info@manor.hr
www.manor.hr
Značajke
Vrsta
Stan
Ugovor
Prodaja
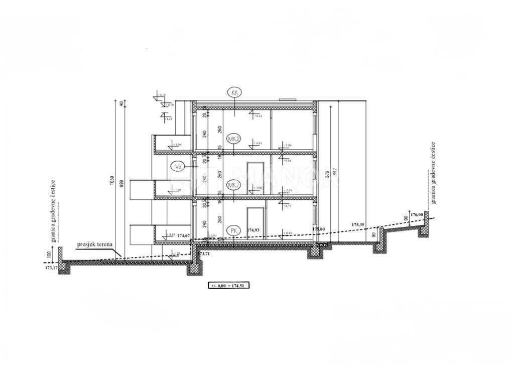
Kat
1 kat
Dizalo
Da
Površina
59 m²
Prostorije
3
Spavaće sobe
2
Kupaonice
1
Balkon
Da
Terasa
Ne
Klimatizacija
Samostalno, hlađenje/grijanje
Informacije o cijeni
Cijena
€ 250.000
Cijena po m²
4.237 €/m²
Energetska učinkovitost
  • Stanje

    Novo / U izgradnji
  • Klima uređaj

    Samostalno, hlađenje/grijanje
  • Energetski certifikat

    Oslobođeno
Otkrijte svaki kutak nekretnine
+12
Dodatne mogućnosti

Obratite se oglašivaču

Ili