Jednosobni stan novo, prvi kat, Povljana

€ 175.000
1
44 m²
1
1
Ne
Balkon

Bilješka

Oglas ažuriran 18. 02. 2026.
Opis

referenca: S9

Moderna novogradnja blizu mora, Povljana na otoku Pagu

Na otoku Pagu, u mirnom i šarmantnom mjestu Povljana, smještena je moderna stambeno apartmanska zgrada s ukupno 15 stanova. Lokaija je idealna za uživanje u mediteranskom načinu života. Zgrada se nalazi na izvrsnoj lokaciji, svega 300 metara od mora i 500 metara od uređene plaže, pružajući savršen balans između komfora, elegancije i prirodnih ljepota.



Kvalitetna gradnja i materijali

Nekretnina se gradi s naglaskom na kvalitetu, dugotrajnost i udobnost stanovanja. Konstrukcija je betonsko armirana, iznimne statičke stabilnosti, dok su unutarnji pregradni zidovi izvedeni od blok cigle. Fasada je toplinski i vodonepropusno izolirana s 10 cm stiropora, čime se osigurava visoka energetska učinkovitost.

Grijanje i hlađenje osigurano je putem klima uređaja marke Bosch u svakoj prostoriji. Stanovi su opremljeni protuprovalnim i protupožarnim ulaznim vratima, PVC dvoslojnom stolarijom te keramičkim podovima. Predviđeni energetski razred je A.



Atraktivna lokacija

Stan se nalazi na izuzetno povoljnoj i mirnoj lokaciji, svega nekoliko minuta hoda od mora i centra Povljane. Iz stana se pruža pogled na more, otok Vir i širi dio mjesta. Povljana je ugodno i obiteljski orijentirano mjesto koje nudi sve potrebno za kvalitetan boravak i svakodnevni život, uključujući poštu, ambulantu, školu, trgovine, pekare, slastičarnice i marinu za manja plovila.

Povljana kao spoj mediteranske čarolije i modernog komfora

Povljana je slikovito obalno mjesto na otoku Pagu, poznato po kristalno čistom moru te lijepim šljunčanim i pješčanim plažama. Mjesto očarava spojem tradicionalne dalmatinske arhitekture i suvremenog načina života.

Uz bogatu gastronomsku ponudu, u kojoj se ističu paški sir i vrhunska janjetina, Povljana nudi brojne sadržaje za opuštanje i rekreaciju. Ljubitelji prirode mogu istraživati skrivene uvale i netaknute plaže, idealne za bijeg od gužve i potpuni mir.

Otok Pag izvrsno je povezan s kopnom. Trajektne linije prometuju tijekom cijelog dana, dok Paški most omogućuje dolazak automobilom bez trajekta. Zračna luka Zemunik u Zadru udaljena je približno 1 sat vožnje, a brze brodske linije povezuju Novalju s Rijekom, Rabom i Lošinjem.

Vlasništvo je uredno i bez tereta. Ova nekretnina predstavlja izvrsnu priliku za ugodan život, odmor ili dugoročnu investiciju, zahvaljujući kvalitetnoj gradnji, atraktivnoj lokaciji i blizini mora.



OPIS STANA:

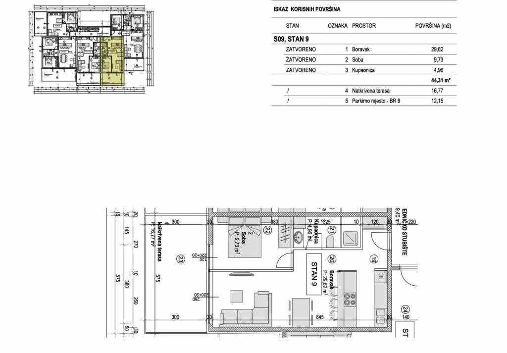
Stan S9 - 1. kat - stambena površina 44,31 m2 (1 spavaća soba + kupaonica) + natkrivena terasa (16,77 m2 - JZ) + vanjsko parking mjesto PM09, ukupna neto površina 55,13 m2 = 175.000 EUR



Datum useljenja: 06/2026
Kupac NE plaća agencijsku naknadu

Za dodatne informacije i dogovor oko razgleda, slobodno nas kontaktirajte.



SAN PATRIK PREMIUM STANDARD
Nekretninu zastupa boutique agencija San Patrik koja pruža stručno savjetovanje i individualan pristup svakom kupcu. Naša je uloga osigurati provjerenu dokumentaciju, potpunu pravnu sigurnost i transparentan proces kupoprodaje uz pristup svim ključnim informacijama prije donošenja odluke o kupnji.
Ako želite znati više, možete razgovarati s Ivan Varat.
Značajke
Vrsta
Stan | Prosječna klasa nekretnine
Ugovor
Prodaja
Kat
1 kat
Katovi zgrade
2
Dizalo
Ne
Površina
44 m²
Prostorije
1
Spavaće sobe
1
Kupaonice
1
Balkon
Da
Terasa
Ne
Grijanje
Samostalno, zrak
Klimatizacija
Samostalno
Informacije o cijeni
Cijena
€ 175.000
Cijena po m²
3.977 €/m²
Energetska učinkovitost

Potrošnja energije

A

Tlocrt
Otkrijte svaki kutak nekretnine
+4
Dodatne mogućnosti

Obratite se oglašivaču

Ili