Obiteljska kuća Sabunike, Privlaka, Privlaka

€ 885.000
5
216 m²
3+
Ne
Terasa

Bilješka

Oglas ažuriran 19. 02. 2026.
Opis

referenca: 136

PRIVLAKA, SABUNIKE - Vila s bazenom u izgradnji

PRIVLAKA, SABUNIKE - Vila s bazenom u izgradnji

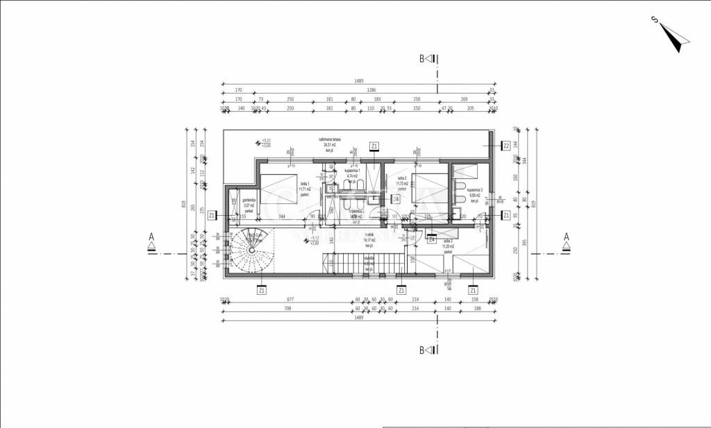
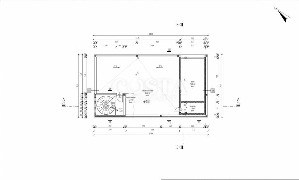
Prodaje se moderna vila u izgradnji u Sabunikama pokraj Zadra. Objekt površine 284,52 m2 gradi se na parceli od 350 m2. Sastoji se od prizemlja, kata i krovne terase. U prizemlju se nalaze dnevni boravak, kuhinja i blagovaona u open space koncepciji, ostava, jedna spavaća soba i pripadajuća kupaonica. Na katu se nalaze tri spavaće sobe s pripadajućim kupaonicama natkrivena terasa. Na krovnoj terasi površine 78,47 m2 s koje se pruža predivan neometan pogled na more nalazi se bazen od 16 m2. U dvorištu s vrtom dostupan je i privatan parking.

U izgradnji su korišteni visokokvalitetni suvremeni i prirodni materijali. Nosiva konstrukcija je armiranobetonska debljine 20 cm, s unutarnje strane
žbukana, a sa vanjske obložena toplinskom izolacijom i završno silikatnom žbukom. Pregradni zidovi se izvode od blok opeke d=12cm, obostrano žbukani. Ugrađuje se vanjska PVC stolarija ostakljena dvostrukim IZO staklom. Za podne obloge koriste se keramičke pločice I. klase, a u sobama parketi. Akustička i toplinska izolacija podova (plivajući pod) izvest će se pločama ekspandiranog polistirena debljine 5 cm.

Objekt je smješten na izuzetno atraktivnoj lokaciji u Sabunikama udaljen od mora 450 m. U blizini se nalaze kafići i restorani, a najbliža trgovina udaljena je 750 m. U blizini se nalazi i Kraljičina plaža u Ninu, najduža pješčana plaža. Povijesni gradić Nin udaljen je 3 km, a urbano središte grad Zadar 18 km. Najbliža zračna luka Zemunik udaljena je 28 km.

Poštovani klijenti, posrednička naknada naplaćuje se u skladu s Općim uvjetima poslovanja
https://costa-nekretnine.hr/o-nama/opci-uvjeti-poslovanja

ID CODE: 136

Sara Večeralo
Agent s licencom
Mob: +385 99 284 0404
Tel: +385 99 864 9125
E-mail: sara@costa-nekretnine.hr
www.costa-nekretnine.hr
Značajke
Vrsta
Obiteljska kuća
Ugovor
Prodaja
Katovi zgrade
1
Dizalo
Ne
Površina
216 m²
Prostorije
5
Spavaće sobe
4
Kupaonice
3+
Balkon
Ne
Terasa
Da
Garažno mjesto, parkirna mjesta
2 na zajedničkom parkingu
Grijanje
Samostalno, zrak
Klimatizacija
Samostalno, hlađenje/grijanje
Informacije o cijeni
Cijena
€ 885.000
Cijena po m²
4.097 €/m²
Energetska učinkovitost
  • Godina izgradnje

    2022
  • Grijanje

    Samostalno, zrak
  • Klima uređaj

    Samostalno, hlađenje/grijanje
  • Energetski certifikat

    Neklasificirano
Tlocrt
Otkrijte svaki kutak nekretnine
+6
Dodatne mogućnosti

Obratite se oglašivaču

Ili