Trosobni stan Sukošan, Sukošan

€ 273.000
3
71 m²
1
PR
Ne
Terasa

Bilješka

Oglas ažuriran 29. 04. 2026.
Opis

referenca: 19

Sukošan - stan u blizini plaže!

Novogradnja - stan u prizemlju zgrade u blizini mora i uređene plaže!
Zgrada se nalazi ispod magistrale.
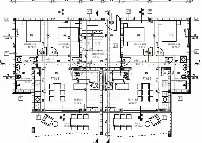
Ovaj stan se sastoji od slijedećih prostorija:
-hodnik - površine 4,50 m2,
-spavaća soba - površine 10,20 m2,
-spavaća soba - površine 10,70 m2,
-kuhinja s blagovaonicom i dnevnim boravkom - površine 25,10 m2,
-kupaonica - površine 5,80 m2,
-terasa - površine 16,30 m2 i
-1 parkirališno mjesto.

Kod kupnje ove nekretnine Kupac je oslobođen plaćanja poreza na promet nekretnina.

Lokacija apartmana je izuzetno povoljna, jer se nalazi u blizini mora, marine, trgovina, restorana i svih ostalih potrebnih sadržaja. Možete uživati u šetnji do plaže ili istraživati prekrasne obližnje otoke i prirodu.

Očekivano useljenje lipanj 2026. godine, što vam pruža priliku da planirate svoj novi dom ili investiciju unaprijed.

O PROJEKTU:
6 luksuznih stanova s visokim standardom gradnje, na TOP lokaciji - 300 m od mora, pogled na more, blizina svih sadržaja.
Objekt građen sa materijalima visoke energetske učinkovitosti, klizne staklene stijene, vrhunska stolarija sa troslojnim staklom, električnim roletama i komarnicima.
Klima uređaji u dnevnom boravku i spavaćim sobama, odnosno ukupno 3 uređaja u stanu, podno grijanje u cijelom stanu. Ulazna vrata stana su protuprovalna i protupožarna.
Očekuje se da će ova nekretnina imati energetski certifikat A.

Sukošan je gradić smješten u prostranom zaljevu Zlatna luka, Jadranskom magistralom 7 km jugoistočno od Zadra. Sukošan ima dječji vrtić, osnovnu školu s novoopremljenom sportskom dvoranom, ambulante opće i zubne prakse, te sve ostalo što ga čini mjestom ugodnim za život tijekom cijele godine, a mnogi su ga prepoznali i kao mjesto idealno za odmor.
Na području Sukošana nalazi se Marina Dalmacija na više od 70000 m2 sa kapacitetom od 1400 vezova za jahte i brodice je najveća marina na Jadranu.

ID CODE: 19

Katarina Šarić
Agent s licencom
Mob: +385 95 828 4392
E-mail: k.saric@ktmrealestate.hr
www.ktmrealestate.hr
Značajke
Vrsta
Stan
Ugovor
Prodaja
Kat
Prizemlje
Katovi zgrade
2
Dizalo
Ne
Površina
71 m²
Prostorije
3
Spavaće sobe
2
Kupaonice
1
Balkon
Ne
Terasa
Da
Garažno mjesto, parkirna mjesta
1 na zajedničkom parkingu
Klimatizacija
Samostalno, hlađenje/grijanje
Informacije o cijeni
Cijena
€ 273.000
Cijena po m²
3.845 €/m²
Energetska učinkovitost
  • Godina izgradnje

    2025
  • Klima uređaj

    Samostalno, hlađenje/grijanje
  • Energetski certifikat

    Neklasificirano
Otkrijte svaki kutak nekretnine
+3
Dodatne mogućnosti

Obratite se oglašivaču

Ili