Obiteljska kuća Ilirija, Pula, Veli Vrh - Industrijska zona, Pula

€ 990.000
5+
450 m²
3+
Ne
Terasa

Bilješka

Oglas ažuriran 10. 02. 2026.
Opis

referenca: 1240

Pula okolica, prostrana kuća sa pet stanova i dva bazena

Pula, šira okolica prodaja kuće površine GBP 450m2 sa pet stanova i dva bazena

Na prodaju je prostrana i prekrasna kuća smještena u mirnom okruženju okolice Pule, na samo 7 km od morske obale i plaža. Okružena bujnim zelenilom, ova stambena kuća ukupne bruto površine od 450 m² smjestila se na parceli od 1.260 m². U sklopu uređene okućnice nalaze se dva bazena površine 40 m² i 30 m², sa sunčalištem, uređenim natkrivenim terasama i velikim vanjskim kaminom.

Stambena zgrada proteže se kroz tri etaže: suteren, prizemlje, prvi kat, a sastoji se od ukupno pet stambenih jedinica (pet stanova).

DETALJAN RASPORED - SUTEREN (jedna stambena jedinica):
Unutarnje stubište: Stubište u stanu za pristup svim prostorijama.
Ulazni hodnik: Prostran hodnik koji je povezan sa svim prostorijama u stanu.
Predprostor ulaza u stan: Prostran prostor pred ulazom u stan.
Prostrana kuhinja s blagovaonicom i dnevnim boravkom: Prostorija otvorenog tipa za sve potrebne aktivnosti te ugodan boravak.
Četiri spavaće sobe: Udobne i prostrane spavaće sobe s prostorom za bračni krevet i ormar.
Prostorija za odlaganje odjeće: Prostor s ugradbenim ormarom za odlaganje odjeće.
Dva vešeraja: Prostorije za pranje, sušenje i peglanje rublja.
Dvije kupaonice: Kompletno opremljene kupaonice s tuš kabinom.

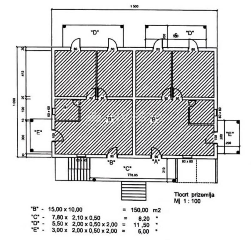
DETALJAN RASPORED PRIZEMLJE (dvije identične stambene jedinice):
Vanjski natkriveni predulazni hodnik: Prostran predulazni prostor koji može služiti kao vanjska natkrivena terasa.
Predprostor ulaza u stan: Prostran hodnik s gostinjskim WC-om.
Prostrana kuhinja s blagovaonicom i dnevnim boravkom: Prostorija otvorenog tipa za sve potrebne aktivnosti te ugodan boravak s izlazom na terasu.
Dvije spavaće sobe: Udobne i prostrane spavaće sobe s prostorom za bračni krevet i ormar, te izlazom na terasu.
Kupaonica: Kompletno opremljena kupaonica s tuš kabinom.

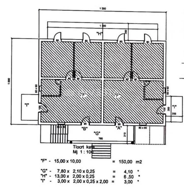
DETALJAN RASPORED PRVI KAT (dvije identične stambene jedinice):
Vanjsko natkriveno stubište: Stubiste koje vodi do prvog kata stambenih jedinica.
Vanjski natkriveni predulazni hodnik: Prostran predulazni prostor koji može služiti kao vanjska natkrivena terasa.
Predprostor ulaza u stan: Prostran hodnik s gostinjskim WC-om.
Prostrana kuhinja s blagovaonicom i dnevnim boravkom: Prostorija otvorenog tipa za sve potrebne aktivnosti te ugodan boravak s izlazom na terasu.
Dvije spavaće sobe: Udobne i prostrane spavaće sobe s prostorom za bračni krevet i ormar, te izlazom na terasu.
Kupaonica: Kompletno opremljena kupaonica s tuš kabinom.

DODATNE INFORMACIJE:
Sustav hlađenja/grijanja: Inverter klima uređaji u svih pet stambenih jedinica.
Sustav grijanja u stambenim jedinicama: Podno grijanje.
Priključci: Kuća je spojena na dvokomornu septičku jamu.
Oprema: Nekretnina se prodaje kompletno namještena, što novom vlasniku omogućava useljenje bez dodatnih ulaganja.
Solarni paneli: Kuća je opremljena solarnim panelima za grijanje vode.
Parking: Unutar dvorišta parcele osigurano je 8 parkirnih mjesta.
Dokumentacija: Rješenje o izvedenom stanju, vlasnički list.
Plaže: Na 7 km udaljenosti od mora i prekrasnih plaža.
Centar Pule: Na 7 km udaljenosti od centra grada Pule.

OPIS LOKACIJE:
Pula je najveći grad Istarske županije, smješten na jugozapadnom području istarskog poluotoka u dobro zaštićenom zaljevu u kojem se nalazi poznati rimski amfiteatar. Arena je najpoznatiji simbol Pule te ujedno jedan od najbolje očuvanih rimskih amfiteatara u cijelom svijetu. Pula je kulturni centar Istre još od rimskoga doba s brojnim povijesnim atrakcijama koje privlače turiste iz cijeloga svijeta. Pula je odlično prometno povezana svim prometnim sredstvima, autocestom, željeznicom, aerodromom i nautičkim marinama. Okružena je prekrasnom mediteranskom prirodom, mnogobrojnim plažama i poznatim otočjem Brijuni.

ZAKLJUČAK:
Riječ je o nekretnini smještenoj na idealnoj lokaciji u blizini svih sadržaja potrebnih za svakodnevni život. Ova nekretnina nudi brojne mogućnosti svojim budućim vlasnicima i vrijedna je pažnje.

Za sve dodatne informacije ili dogovor za razgledavanje, slobodno nas kontaktirajte.

ID CODE: 1240

Franko Rojnić
Mob: +385 98 829 220
Tel: +385 52 33 00 33
E-mail: franko@investa.hr
www.investa.hr
Značajke
Vrsta
Obiteljska kuća
Ugovor
Prodaja
Katovi zgrade
3
Dizalo
Ne
Površina
450 m²
Prostorije
5+
Spavaće sobe
12
Kupaonice
3+
Balkon
Ne
Terasa
Da
Garažno mjesto, parkirna mjesta
7 na zajedničkom parkingu
Klimatizacija
Samostalno, hlađenje/grijanje
Informacije o cijeni
Cijena
€ 990.000
Cijena po m²
2.200 €/m²
Energetska učinkovitost
  • Klima uređaj

    Samostalno, hlađenje/grijanje
  • Energetski certifikat

    Neklasificirano
Tlocrt
Otkrijte svaki kutak nekretnine
+32
Dodatne mogućnosti

Obratite se oglašivaču

Ili