Trosobni stan Tar, Tar-Vabriga, Tar-Vabriga

€ 266.945
3
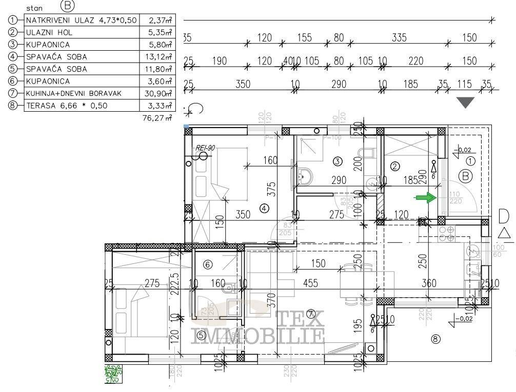
76 m²
2
PR
Da
Terasa

Bilješka

Oglas ažuriran 22. 01. 2026.
Opis

referenca: 873393

Tar - novi stanovi u izgradnji - stan B - 76.27 m2

Prodaju se stanovi u kvalitetnoj novogradnji u mjestu Tar kraj Poreča i Novigrada. Udaljeni su samo 3500 metara od prekrasne plaže i 500 metara od centra mjesta. Moderna više-stambena zgrada isključivo je stambene namjene, sa ukupno 11 stana raspoređenih na 4 etaže. Stanovi imaju električno podno grijanje u svim prostorijama. Postavljena je prva faza za inverter klima uređaje u dnevnom boravku i spavaćim sobama. Staklena stijena je od PVC sa troslojnim staklom. Kvalitetna stolarija ima dobru toplotnu i zvučnu izolaciju, te će osigurava maksimalan dotok svjetlosti. Zgrada ima lift koji se proteže kroz sve četiri etaže. Svakom stanu pripadati će dva parkirna mjesta. Odlična nekretnina koja predstavlja idealnu priliku za investiciju.

ID CODE: 873393

Tex Immobilie
Agent s licencom
Mob: 0989826003
Tel: 0994705455
E-mail: info@tex-immobilie.com
www.tex-immobilie.com
Značajke
Vrsta
Stan
Ugovor
Prodaja
Kat
Prizemlje
Katovi zgrade
3
Dizalo
Da
Površina
76 m²
Prostorije
3
Spavaće sobe
2
Kupaonice
2
Balkon
Ne
Terasa
Da
Garažno mjesto, parkirna mjesta
2 na zajedničkom parkingu
Grijanje
Samostalno, zrak
Klimatizacija
Samostalno, hlađenje/grijanje
Informacije o cijeni
Cijena
€ 266.945
Cijena po m²
3.512 €/m²
Energetska učinkovitost
  • Godina izgradnje

    2024
  • Grijanje

    Samostalno, zrak
  • Klima uređaj

    Samostalno, hlađenje/grijanje
  • Energetski certifikat

    Neklasificirano
Otkrijte svaki kutak nekretnine
+10
Dodatne mogućnosti

Obratite se oglašivaču

Ili