Trosobni stan Sveti Ivan Zelina, Sveti Ivan Zelina

€ 152.022
3
58 m²
1
1
Ne
Terasa

Bilješka

Oglas ažuriran 22. 01. 2026.
Opis

referenca: 8654

STAN,NOVOGRADNJA,PRODAJA,SVETI IVAN ZELINA,58m2,3-soban

STAN S5, NOVOGRADNJA, PRODAJA, SVETI IVAN ZELINA, 58 m2, 3-soban

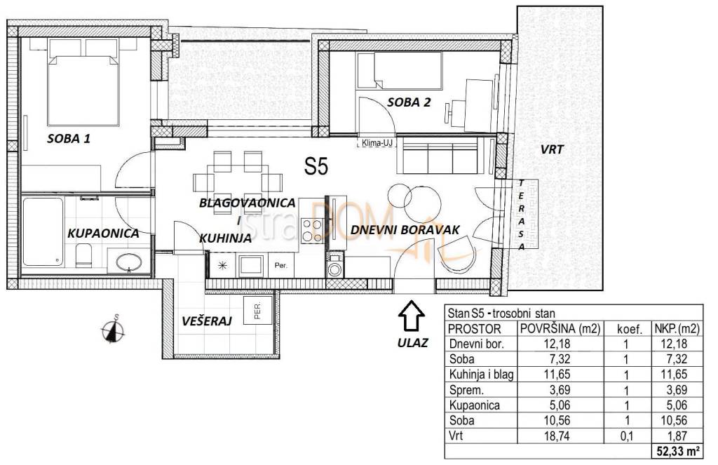
Prodaje se trosoban stan površine 52 m2 na prvom katu zgrade bez lifta. Zgrada ukupno ima 2 kata te se sastoji od prizemlja, prvog kata i drugog kata.
Predviđeni rok useljenja je najkasnije do kraja 2026. godine.

Stan se sastoji od dnevnog boravka s kuhinjom i blagovaonicom, dvije spavaće sobe, kupaonice s WC-om, izbe, terase te vrta.
Stanu pripada jedno vanjsko parkirno mjesto (12.50 m2) te spremište (7.24 m2).

Stan će biti vrhunski opremljen.

Postoji mogućnost uz nadoplatu kupnja garažnog parkirnog mjesta (16,76 m2) za 15.000 eura te vrta različitih kvadratura (105,74 m2, 105,54 m2 ili 100,93 m2) koji će biti ograđeni i djelomično popločeni za 15.000 eura.

Zgrada se nalazi u blizini svih sadržaja potrebnih u svakodnevnom životu kao što su vrtić, osnovna škola, ljekarna, trgovina, javni prijevoz i ostali sadržaji.

Orijentacija: sjever-istok
Grijanje: plinsko etažno
Parking: jedno vanjsko parkirno mjesto

Cijena: 152.022 e

Mislav Maračić
Agent s licencom
Mob: +385 91 2776234
Tel: +385 91 2776234
E-mail: mmnekretnine0@gmail.com
https://istra-dom.com/

ID CODE: 8654

Istra dom nekretnine
Mob: 0912776234
Tel: +385 52 381 040
E-mail: nekretnine@istra-dom.com
www.istra-dom.com
Značajke
Vrsta
Stan
Ugovor
Prodaja
Kat
1 kat
Katovi zgrade
2
Dizalo
Ne
Površina
58 m²
Prostorije
3
Spavaće sobe
2
Kupaonice
1
Balkon
Ne
Terasa
Da
Garažno mjesto, parkirna mjesta
1 na zajedničkom parkingu
Grijanje
Centralno, podno grijanje
Klimatizacija
Samostalno, hlađenje/grijanje
Ostale karakteristike
  • Protuprovalna vrata
Informacije o cijeni
Cijena
€ 152.022
Cijena po m²
2.621 €/m²
Energetska učinkovitost
  • Godina izgradnje

    2026
  • Grijanje

    Centralno, podno grijanje
  • Klima uređaj

    Samostalno, hlađenje/grijanje
  • Energetski certifikat

    Neklasificirano
Tlocrt
Otkrijte svaki kutak nekretnine
+5
Dodatne mogućnosti

Obratite se oglašivaču

Ili