Četverosobni stan Rugvica, Rugvica

€ 280.940
4
130 m²
2
Ne
Balkon

Bilješka

Oglas ažuriran 09. 03. 2026.
Opis

referenca: 2920

Rugvica, Novogradnja, moderna četverosobna kuća u nizu, 130m2

Prodaje se dvoetažni četverosoban stan s vrtom ukupne površine 130,67 m² u Rugvici. Stanovi su koncipirani kao kuće u nizu s pripadajućim vrtom i dva parkirna mjesta.

Stambena površina iznosi 116.07 m², a sa svim pripatcima (vrt i dva parkirna mjesta) obračunatim po koeficijentima, ukupna površina iznosi 130,67 m². Površina vrta iznosi približno 96 m².

Stan se sastoji od prizemlja i kata, a orijentiran je na jug, zapad i sjever.

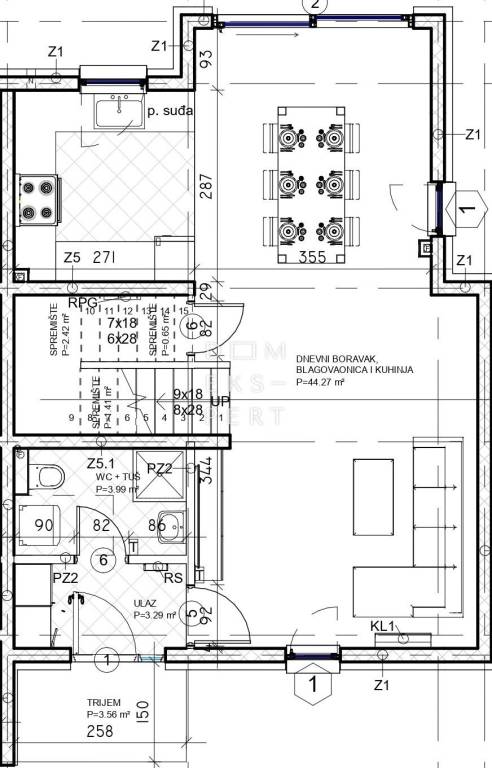
PRIZEMLJE:
- natkriveni ulaz (3.56 m²)
- predulaz (3.29 m²)
- wc s tušem (3.99 m²)
- dnevni boravak s blagovaonicom i kuhinjom (44.27 m²)
- spremište (0.65 m²)
- spremište (2.42 m²)
- spremište (1.41 m²)

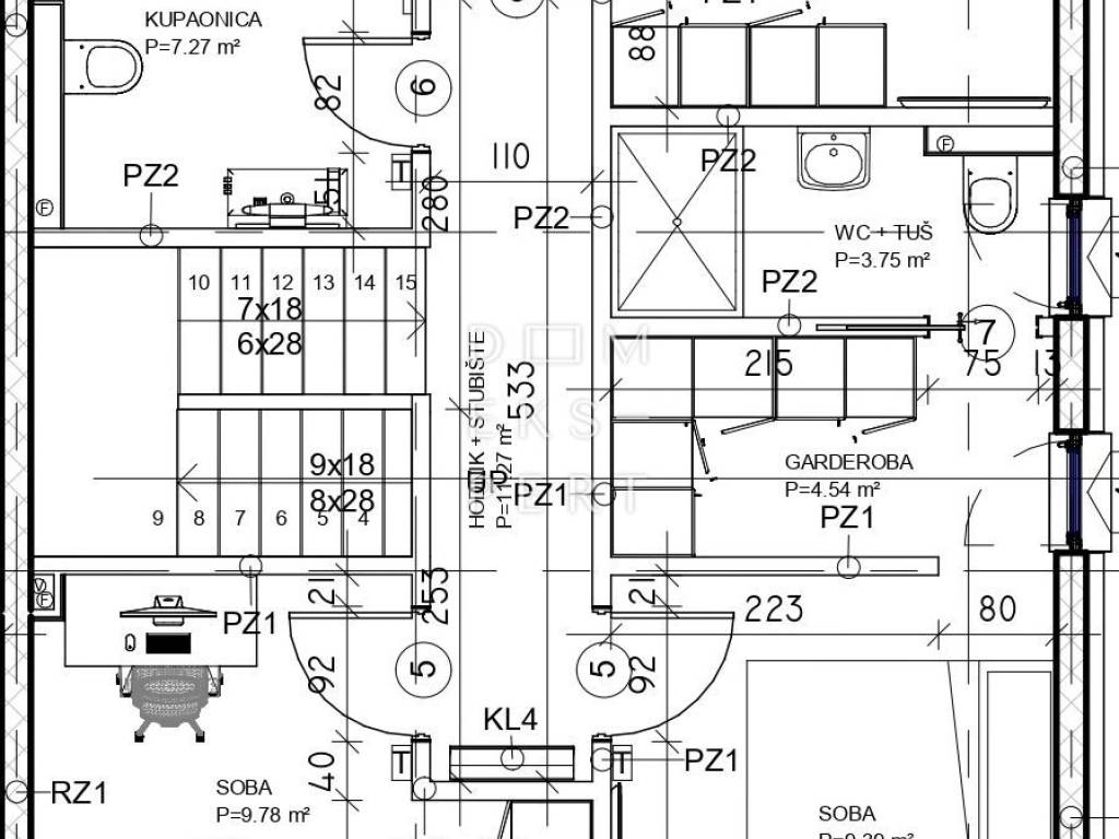
KAT:
- hodnik i stubište (11.27 m²)
- kupaonica (7.27 m²)
- soba 1 (11.92 m²)
- soba 2 (9.78 m²)
- soba 3 (9.39 m²)
- garderoba (4.54 m²)
- wc (3.75 m²)
- balkon (7.52 m²)

OPREMA:
- konstrukcija će biti izrađena od armiranog betona s prezidama od knaufa unutar stanova
- stiropor fasada debljine 15cm
- podno grijanje preko dizalice topline Vaillant, svaka soba ima termostat
- klima uređaj marke Vaillant
- podne obloge: parket prilagođen za podno grijanje i keramika
- PVC stolarija s troslojnim IZO staklom te aluminijske rolete na elektro motore i komarnici
- kvalitetna sobna vrata bijele boje sa skrivenim pantima (mogućnost odabira druge boje)
- sanitarna oprema marke Hansgrohe
- walk-in tuševi sa staklenim stijenama
- preiprema za video nadzor oko zgrade
- video portafon
- protuprovalna ulazna vrata

Gradnja je započela u studenom 2025. godine, a završetak radova predviđen je za zimu 2026.

OPREMA:
- konstrukcija će biti izrađena od armiranog betona s prezidama od knaufa unutar stanova
- stiropor fasada debljine 15cm
- podno grijanje preko dizalice topline Vaillant, svaka soba ima termostat
- klima uređaj marke Vaillant
- podne obloge: parket prilagođen za podno grijanje i keramika
- PVC stolarija s troslojnim IZO staklom te aluminijske rolete na elektro motore i komarnici
- kvalitetna sobna vrata bijele boje sa skrivenim pantima (mogućnost odabira druge boje)
- sanitarna oprema marke Hansgrohe
- walk-in tuševi sa staklenim stijenama
- priprema za video nadzor oko zgrade
- video portafon
- protuprovalna ulazna vrata

LOKACIJA:
Rugvica je jedna od rijetkih općina koje uspješno spajaju miran obiteljski život s dinamičnim razvojem. Ubrzana izgradnja, rastuća potražnja i izvrsna povezanost sa Zagrebom čine je jednom od najpoželjnijih lokacija za život u okolici glavnog grada.

U blizini kompleksa nalaze se osnovna škola, dječji vrtić, pošta, trgovina, dom zdravlja i ostali sadržaji potrebni za ugodan svakodnevni život. U tijeku je i završna faza izgradnje modernog sportskog centra s nogometnim terenima i dvoranom, kao i dodatnih prometnica, što dodatno potvrđuje kontinuirana ulaganja u infrastrukturu i podizanje kvalitete života u ovoj perspektivnoj zajednici.

Ostale informacije na upit.

KONTAKT:
Marina Jurkić
Tel: +385 1 6278 237
Mob: +385 97 698 2207
Mail: marina.jurkic@domekspert.hr

ID CODE: 2920
Značajke
Vrsta
Dupleks
Ugovor
Prodaja
Dizalo
Ne
Površina
130 m²
Prostorije
4
Spavaće sobe
3
Kupaonice
2
Balkon
Da
Terasa
Ne
Grijanje
Samostalno, zrak
Klimatizacija
Samostalno, hlađenje/grijanje
Ostale karakteristike
  • Protuprovalna vrata
  • Video portafon
Informacije o cijeni
Cijena
€ 280.940
Cijena po m²
2.161 €/m²
Energetska učinkovitost
  • Godina izgradnje

    2025
  • Grijanje

    Samostalno, zrak
  • Klima uređaj

    Samostalno, hlađenje/grijanje
  • Energetski certifikat

    Neklasificirano
Tlocrt
Otkrijte svaki kutak nekretnine
+18
Dodatne mogućnosti

Obratite se oglašivaču

Ili