Obiteljska kuća Malinska, Malinska-Dubašnica, Malinska-Dubašnica

€ 910.000
5+
237 m²
3
Ne
Balkon
Terasa

Bilješka

Oglas ažuriran 22. 01. 2026.
Opis

referenca: 102607

Malinska, okolica, impresivna vila u izgradnji s velikom okućnicom na prodaju

Iz široke ponude nekretnina na sjevernom Jadranu, kod agencije Stan Grad Immobilien ističe se imperesivna moderna vila u izgradnji u atraktivnoj turističkoj regiji Otok Krk. Nekretnina je pozicionirana na mirnoj lokaciji u okolici mjesta Malinska, ne predaleko od mora.

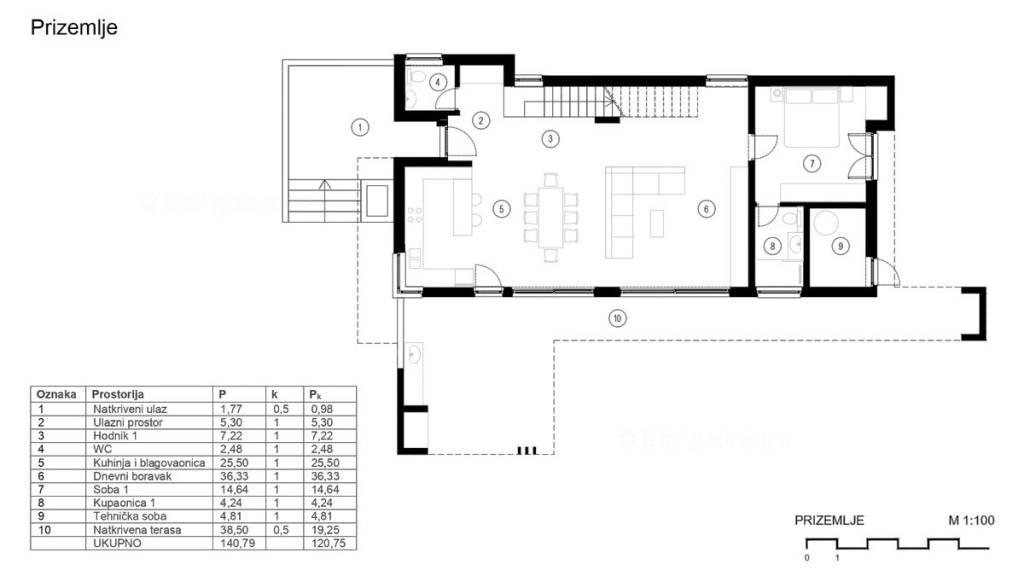
Gledajući strukturno, ovo je samostojeća kuća katnica s prostranom okućnicom i bazenom. Sama kuća obuhvaća cjelokupnu, stvarno korisnu površinu od 215,19 m2. Kuća se sastoji u prizemlju od ulaznog prostora, hodnika, wc-a, kupaonice, sobe s izlazom na nenatkrivenu terasu, tehničke sobe, kuhinje s blagovaonicom te prostranim dnevnim boravkom s izlazom na natkrivenu terasu sa vanjskom kuhinjom i gril prostorom. Na katu vile se nalaze 3 prostrane spavaće sobe, od kojih je jedna sa vlastitom kupaonom, walk-in tuš kabinom. Mogućnošću izlaska na vanjsku terasu je iz sve tri sobe, dok preostale dvije sobe dijele jednu kupaonicu. Uz opisanu nekretninu je vezana i dobro organizirana okućnica s pomoćnim objektom ukupne površine 22,5 m2. U predmetnom objektu je 15 m2 rezervirano za SPA sadržaj u prizemlju, koji uključujući saunu, jacuzzi i wellness prostor za opuštanje, a preostalih 7,5 m2 namijenjeno je za spremište u podrumu objekta.

Preostali dio kompletno uređene okućnice u površini približno 504 m2 upotpunjava veliki grijani bazen površine 46 m2 sa sunčalištem te lounge prostorom za opuštanje sa ložištem u sredini. Na dvorištu ove kuće uređeno je prostrano mjesto za komotno parkiranje minimalno 2 vozila. Nekretninu karakterizira visokokvalitetna gradnja te vrhunska oprema. Vila će biti opremljena kvalitetnom stolarijom, podnim oblozima od kvalitetne keramike i kamena, vrhunskim sanitarijama, stropnim klimama i podnim grijanjem na dizalicu topline. Sam okoliš će biti lijepo uređen mediteranskim biljem i zelenim površinama.

Ova nekretnina je u vlasništvu fizičke osobe i na ime njenog prijenosa kupac kuće je u obvezi plaćanja poreza na promet nekretnine u visini 3%. Vlasnik kuće jamči urednu vlasničku i tehničku dokumentaciju te mogućnost brzog prijenosa vlasništva nekretnine na kupca. Srdačno vas očekujemo na adresi ureda na otoku Krku. Poklonite li nam svoje povjerenje, agencija Stan Grad Immobilien rado će vam pomoći u prijenosu vlasničkih prava ove nekretnine te računa za njene komunalne priključke i usluge na vaše ime.

ID CODE: 102607

Ivan Radman
Direktor, agent
Mob: +385 91 605 1497
Tel: +385 51 677 809
Fax: +385 51 677 809
E-mail: ivan.radman@stangrad.hr
www.stangrad.hr
Značajke
Vrsta
Obiteljska kuća
Ugovor
Prodaja
Dizalo
Ne
Površina
237 m²
Prostorije
5+
Spavaće sobe
4
Kupaonice
3
Balkon
Da
Terasa
Da
Garažno mjesto, parkirna mjesta
2 na zajedničkom parkingu
Klimatizacija
Samostalno, hlađenje/grijanje
Ostale karakteristike
  • Protuprovalna vrata
Informacije o cijeni
Cijena
€ 910.000
Cijena po m²
3.840 €/m²
Energetska učinkovitost
  • Godina izgradnje

    2023
  • Klima uređaj

    Samostalno, hlađenje/grijanje
  • Energetski certifikat

    Neklasificirano
Tlocrt
Otkrijte svaki kutak nekretnine
+6
Dodatne mogućnosti

Obratite se oglašivaču

Ili