Trosobni stan Zaton, Nin, Nin

€ 310.880
3
77 m²
2
PR
Da
Terasa

Bilješka

Oglas ažuriran 29. 04. 2026.
Opis

referenca: A-3021

ZATON - luksuzni stan s pogledom na more, 77.72 m2!!

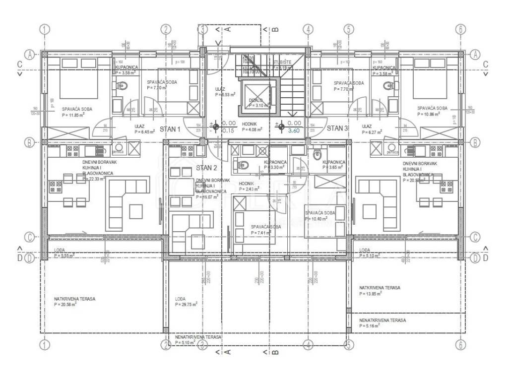
ZATON – Prodaje se luksuzni, elegantni i moderno opremljeni dvosobni apartman u prestižnoj novogradnji s liftom, ukupne površine 77,72 m²!

Stan S2 se sastoji od:
- prostranog i svijetlog predulaza,
- prostranog i sunčanog dnevnog boravka sa blagovaonicom i modernom kuhinjom,
- funkcionalnog hodnika,
- dvije udobne i svijetle spavaće sobe,
- dvije luksuzno uređene i elegantne kupaonice.
Apartmanu pripadaju:
- ugodna i prostrana lođa za opuštanje,
- natkrivena terasa s prekrasnim pogledom,
- šarmantni privatni vrt (cca 24,65 m²),
- dva sigurna i praktična parkirna mjesta.
Neto korisna površina opisanih prostorija s terasom iznosi 68,11 m², dok ukupna neto površina apartmana sa svim pripadajućim prostorijama iznosi 77,72 m².

U zgradi su na prodaju i sljedeći moderni, luksuzni i kvalitetno opremljeni stanovi:
Stan S1 – dvosoban, 76,41 m² = 360.000 €
Stan S2 – dvosoban, 77,72 m² = 310.880 €
Stan S3 – PRODANO!
Stan S4 – dvosoban, 74,90 m² = 405.000 €
Stan S5 – dvosoban, 72,70 m² = 363.600 €
Stan S6 – PRODANO!
Stan S7 – trosoban, 137,02 m² = 822.120 €
Stan S8 – trosoban, 141,75 m² = 850.500 €

Zgrada je opremljena isključivo najkvalitetnijim i modernim materijalima, uključujući termo-aluminijsku Schüco stolariju s električnim roletama i vanjskim žaluzinama, te luksuzno i moderno Schindler dizalo.
Stanovi su dodatno opremljeni:
efikasnim podnim grijanjem na dizalicu topline,
naprednim i pouzdanim klima uređajima Mitsubishi,
prvoklasnom, elegantnom keramikom velikog formata i kvalitetnim parketima.
Ulazna vrata su protuprovalna i protupožarna.

Nekretnina je u sustavu PDV-a, što znači da kupac ne plaća porez na promet nekretnina.

Zaton je mirno, slikovito i atraktivno turističko naselje smješteno između dva povijesna grada, Nina i Zadra, svega 13 km sjeverno od Zadra i 5 km južno od Nina.
Savršen spoj blage mediteranske klime, netaknute prirodne ljepote, bogate kulturno-povijesne baštine i autentične dalmatinske arhitekture čini Zaton izuzetno privlačnom destinacijom za ugodan život i investicije.

Zgrada je završena i odmah useljiva!

*KUPAC NE PLAĆA AGENCIJI PROVIZIJU.
**KUPAC NE PLAĆA POREZ NA PROMET NEKRETNINA.

ID CODE: A-3021

Iva Prtenjača
Mob: +385 (0)91 400 1414
Tel: +385 (0)99 284 1984
E-mail: iva@perlanekretnine.hr
www.perlanekretnine.hr

Alma Cipurković
Mob: +385 (0)91 400 1616
Tel: +385 (0)99 284 1984
E-mail: alma@perlanekretnine.hr
www.perlanekretnine.hr
Značajke
Vrsta
Stan
Ugovor
Prodaja
Kat
Prizemlje
Katovi zgrade
2
Dizalo
Da
Površina
77 m²
Prostorije
3
Spavaće sobe
2
Kupaonice
2
Balkon
Ne
Terasa
Da
Garažno mjesto, parkirna mjesta
2 na zajedničkom parkingu
Grijanje
Samostalno, zrak
Klimatizacija
Samostalno, hlađenje/grijanje
Informacije o cijeni
Cijena
€ 310.880
Cijena po m²
4.037 €/m²
Energetska učinkovitost
  • Godina izgradnje

    2025
  • Grijanje

    Samostalno, zrak
  • Klima uređaj

    Samostalno, hlađenje/grijanje
  • Energetski certifikat

    Neklasificirano
Otkrijte svaki kutak nekretnine
+26
Dodatne mogućnosti

Obratite se oglašivaču

Ili