Trosobni stan Zaton, Nin, Nin

€ 925.000
3
150 m²
2
2
Da
Terasa

Bilješka

Oglas ažuriran 24. 04. 2026.
Opis

referenca: A-3316-S

ZATON - dvosoban stan A10 od 150 m2, 50 m od mora!

ZATON - prodaje se dvosoban stan A10 sa krovnom terasom, udaljen od mora samo 50 m!

Na odličnoj lokaciji s pogledom na more nalazi se ovaj projekt novogradnje sa 10 stambenih jedinica.
Stanovima u prizemlju pripadaju vrtovi dok stanovima na drugom katu pripadaju krovne terase.
Zgrada je odlično pozicionirana na samo 50 m udaljenosti od mora, tako da se sa prvog i drugog kata pruža predivan pogled na more i otoke.
Svi stanovi posjeduju po dva vanjska parkirna mjesta.
Ove luksuzne jedinice predstavljaju spoj bezvremenske arhitekture, pametne tehnologije i vrhunske sigurnosti.
Idealan izbor za one koji traže više od običnog doma – prostor koji odiše elegancijom, funkcionalnošću i sofisticiranim životnim stilom.

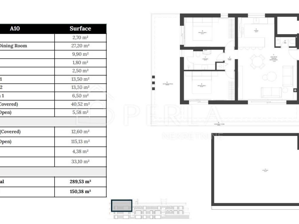
Ovaj dvosoban stan A10 nalazi se na 2. katu zgrade i sastoji se od:
- Ulaznog prostora 2,70 m2
- Sp.sobe 1 - 13,50 m2
- Sp.sobe 2 - 13,30 m2
- Kupaonica - 6,50 m2
- WC - 1,80 m2
- Spremište - 4,38 m2
- Kuh,blag.i dn.boravka - 37,10m2
- Natkr. terase - 40,52 m2
- Terase - 5,58 m2
- Krovne terase 115,13 m2
- 2 natkrivena parkirna mjesta 33,10 m2
Ukupno: 289,53 m2
Ukupna netto korisna površina stana sa pripacima je 150,38 m2

U ponudi su nenamještene luksuzne rezidencije koje pružaju izniman komfor, sigurnost i pametna rješenja za moderni stil života.
Mogućnost kupovine i kompletno namještenih stanova uz nadoplatu.
Svaka jedinica je pažljivo dizajnirana kako bi zadovoljila najviše standarde suvremene arhitekture i luksuznog stanovanja.
- Pametni dom sustav – upravljanje grijanjem, rasvjetom i klimatizacijom putem pametnih tehnologija
- Armiranobetonska nosiva konstrukcija sa termofasadom od 10 cm.
- Prvoklasna aluminijska stolarija sa elektro-roletnama
- Klimatizacijske jedinice bit će postavljene u svakoj prostoriji uz pomoć multi-split sistema, a podno grijanje bit će postavljeno u kupaonicama i dnevnom dijelu stana.
- Video portafon, prednja nadzorna kamera za stalni nadzor ulaza, protuprovalna i protupožarna vrata
- Keramičke pločice, parketi i sanitarije visoke kvalitete
- Uređen okoliš s minimalnim troškovima održavanja

U zgradi su na prodaju sljedeći stanovi:
A1 – prizemlje, dvosoban apartman s vrtom, 107,87 m² – 517.776,00 €
A2 – prizemlje, dvosoban apartman s vrtom, 89,61 m² – 432.000,00 €
A3 – prizemlje, dvosoban apartman s vrtom, 122,25 m² – 585.600,00 €
A4 – 1. kat, dvosoban apartman, 121,50 m² – 607.500,00 €
A5 – 1. kat, dvosoban apartman, 80,48 m² – 400.000,00 €
A6 – 1. kat, dvosoban apartman, 80,55 m² – 405.000,00 € - PRODANO!
A7 – 1. kat, dvosoban apartman, 109,79 m² – 550.000,00 €
A8 – 2. kat, dvosoban apartman s krovnom terasom, 153,96 m² – 969.948,00 €
A9 – 2. kat, trosoban apartman s krovnom terasom, 193,19 m² – 1.216.530,00 €
A10 – 2. kat, dvosoban apartman s krovnom terasom, 150,38 m² – 946.890,00 €

Planira se završetak i useljenje do proljeća 2026. godine.

Zaton je malo turističko mjesto smješteno u istoimenom zaljevu Zadarskog kanala.
Pješčane plaže u sjeni stoljetnih borova idealne su za obitelji s djecom.
Želite li pronaći mir, kristalno bistro more, čisto podmorje, hlad borovih šuma, nezaboravne zalaske sunca, onda je Zaton idealno mjesto za Vas.

*KUPAC NE PLAĆA POREZ NA PROMET NEKRETNINAMA!
**KUPAC NE PLAĆA AGENCIJSKU PROVIZIJU!

ID CODE: A-3316-S

Alma Cipurković
Mob: +385 (0)91 400 1616
Tel: +385 (0)99 284 1984
E-mail: alma@perlanekretnine.hr
www.perlanekretnine.hr

Iva Prtenjača
Mob: +385 (0)91 400 1414
Tel: +385 (0)99 284 1984
E-mail: iva@perlanekretnine.hr
www.perlanekretnine.hr
Značajke
Vrsta
Stan
Ugovor
Prodaja
Kat
2 kat
Katovi zgrade
2
Dizalo
Da
Površina
150 m²
Prostorije
3
Spavaće sobe
2
Kupaonice
2
Balkon
Ne
Terasa
Da
Garažno mjesto, parkirna mjesta
2 na zajedničkom parkingu
Grijanje
Samostalno, zrak
Klimatizacija
Samostalno, hlađenje/grijanje
Informacije o cijeni
Cijena
€ 925.000
Cijena po m²
6.167 €/m²
Energetska učinkovitost
  • Godina izgradnje

    2025
  • Grijanje

    Samostalno, zrak
  • Klima uređaj

    Samostalno, hlađenje/grijanje
  • Energetski certifikat

    Neklasificirano
Otkrijte svaki kutak nekretnine
+15
Dodatne mogućnosti

Obratite se oglašivaču

Ili