Trosobni stan Sabunike, Privlaka, Privlaka

€ 275.000
3
92 m²
1
1
Ne
Terasa

Bilješka

Oglas ažuriran 01. 04. 2026.
Opis

referenca: A-3066

PRIVLAKA - SABUNIKE, prostrani apartman s pogledom na more!

PRIVLAKA - Sabunike, prodaje se prostrani apartman od 92 m2 sa velikom terasom i pogledom na more!!

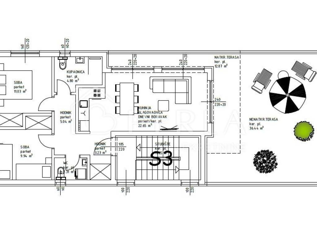
U novogradnji stambene zgrade sa ukupno 3 stana prodaje se penthouse oznake S3 s velikom terasom i s pogledom na more.
Stan se sastoji od stepeništa, ostave koja je smještena u prizemlju, ulaznog prostora/ hodnika, s desne strane se nalazi otvoreni koncept dnevnog boravka s blagovanicom i kuhinjom koji su staklenim stijenama spojeni s velikom natkrivenom terasom od skoro 50 m2 sa koje se pruža predivan pogled na more.
Dodatnim manjim hodnikom u produžetku ulaznog prostora je odvojen spavaći dio stana u kojem su smještene dvije spavaće sobe, kupaonica i wc.
Stan se sastoji od 74.54 m2 m2 neto korisne površine stana s tim da stanu pripada još ostava od 5.93 m2, stubište od 11.05 m2 i dva parkirna mjesta.

Opremljenost stana:
- Keramičke pločice i sanitarije visoke kvalitete
- PVC stolarija s elektroroletama i komarnicima
- Protupožarna i protuprovalna ulazna vrata
- Podno grijanje (u kupaonici i dnevnom boravku)
- Inverter klima uređaj (više unutarnjih jedinica)
Svi ugrađeni materijali, podne i zidne obloge su po najvišim standardima.

Lokacija ove nekretnine je na idealnoj poziciji jer osigurava blizinu svih sadržaja (trgovine, ugostiteljski objekti, igrališta), ali isto tako mir i tišinu potrebnu za odmor.
Sabunike su malo turističko mjesto pokraj kraljevskog grada Nina iz kojeg se pruža predivan pogled na more i Velebit.
Ova nekretnina je jedinstvena prilika za drugi dom u Hrvatskoj, a kako za stanovanje tako i za bavljenje turizmom.
Planirani završetak ove stambene zgrade je kraj 2026. godine.

Vlasništvo uredno 1/1.

KUPAC NE PLAĆA AGENCIJI PROVIZIJU!!!

ID CODE: A-3066

Alma Cipurković
Mob: +385 (0)91 400 1616
Tel: +385 (0)99 284 1984
E-mail: alma@perlanekretnine.hr
www.perlanekretnine.hr

Iva Prtenjača
Mob: +385 (0)91 400 1414
Tel: +385 (0)99 284 1984
E-mail: iva@perlanekretnine.hr
www.perlanekretnine.hr
Značajke
Vrsta
Stan
Ugovor
Prodaja
Kat
1 kat
Katovi zgrade
1
Dizalo
Ne
Površina
92 m²
Prostorije
3
Spavaće sobe
2
Kupaonice
1
Balkon
Ne
Terasa
Da
Garažno mjesto, parkirna mjesta
2 na zajedničkom parkingu
Grijanje
Samostalno, zrak
Klimatizacija
Samostalno, hlađenje/grijanje
Informacije o cijeni
Cijena
€ 275.000
Cijena po m²
2.989 €/m²
Energetska učinkovitost
  • Grijanje

    Samostalno, zrak
  • Klima uređaj

    Samostalno, hlađenje/grijanje
  • Energetski certifikat

    Neklasificirano
Otkrijte svaki kutak nekretnine
+29
Dodatne mogućnosti

Obratite se oglašivaču

Ili