Trosobni stan Zaton, Nin, Nin

€ 229.756
3
79 m²
1
PR
Ne
Terasa

Bilješka

Oglas ažuriran 22. 01. 2026.
Opis

referenca: A-3276-S

ZATON - NIN, dvosoban stan S2 od 79 m2 s vrtom, NOVOGRADNJA!!!

NIN - ZATON, prodaje se dvosoban stan S2 u prizemlju s vrtom od 79 m2!

Na mirnoj lokaciji u Zatonu nalazi se ovaj projekt novogradnje s 10 stambenih jedinica raspoređenih kroz 3 nadzemne etaže (prizemlje i dva kata).
Stanovi se sastoje od prostranog dnevnog boravka s kuhinjom i blagovaonicom, dvije sobe, kupaonice i WC-a.
Iz dnevnog boravka se ulazi na lođu, idealno mjesto za opuštanje i odmor.
Stanovi su opremljeni podnim grijanjem što ih čini ugodnim za život tokom cijele godine.
Svi stanovi posjeduju po jedno ili dva vanjska parkirna mjesta, a stanovima u prizemlju pripada vrt.

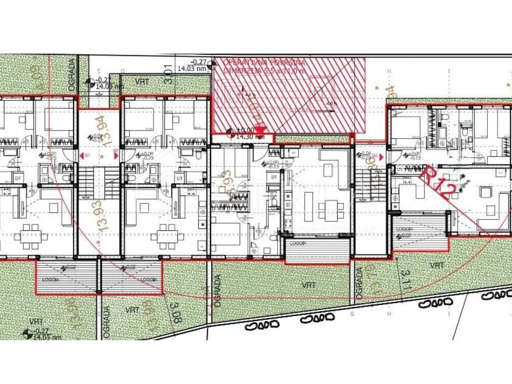
Dvosoban stan S2 se nalazi u prizemlju i sastoji se od:
- kuhinje, blagovaonice i dnevnog boravka (29,31 m2),
- spavaće sobe 1 (9,37 m2),
- spavaće sobe 2 (10,41 m2),
- kupaonice (4,36 m2),
- WC-a (2,61 m2),
- hodnika (7,19 m2),
- loggie (11,06 x 0,75 = 8,30 m2),
- spremišta (3,34 x 0,5 = 1,67 m2),
- vrta (31,20 x 0,1 = 3,12 m2),
- parkirnog mjesta (13,38 x 0,2 = 2,68 m2),
Ukupna netto korisna površina stana s pripacima je 79,02 m2.

U građenju zgrade će se koristiti kvalitetni materijali u skladu s najvišim standardima gradnje kao što su:
- Ciglena konstrukcija s termofasadom od 10cm.
- Prvoklasna PVC stolarija.
- Klimatizacijske jedinice bit će postavljene u svakoj prostoriji, a podno grijanje bit će postavljeno u kupaonicama i dnevnom dijelu stana.
Opremljenost stana:
- Keramičke pločice, vinil i sanitarije visoke kvalitete
- Protupožarna i protuprovalna ulazna vrata
- Podno grijanje (kupaonica i dnevni dio stana)
- Klimatizacijski uređaji - multi split (više unutarnjih jedinica)

U zgradi su na prodaju sljedeći stanovi:
S1 - PRODANO!
S2 - prizemlje, dvosoban stan s vrtom 79 m2 - 229.756,00 €
S3 - prizemlje, dvosoban stan s vrtom 83 m2 - 242.492,00 €
S4 - prizemlje, dvosoban stan s vrtom 86 m2 - 249.184,00 €
S5 - 1. kat, dvosobni stan 78 m2 - 225.200,00 €
S6 - 1. kat, dvosobni stan 75 m2 - 217.384,00 €
S7 - 1. kat, dvosobni stan 78 m2 - 227.260,00 €
S8 - 2. kat, dvosobni stan 77 m2 - 223.700,00 €
S9 - 2. kat, dvosobni stan 77 m2 - 223.700,00 €
S10 - PRODANO!

Zaton je malo turističko mjesto smješteno između dvaju povijesnih gradova, Nina i Zadra.
Od Nina je udaljen svega 2 km, a od Zadra 12 km.
Ispod naselja, koje ima izvrsnu turističku ponudu, nalazi se duga šljunčano-pješčana plaža.
Želite li pronaći mir, kristalno bistro more, čisto podmorje, hlad borovih šuma, nezaboravne zalaske sunca, onda je Zaton idealno mjesto za Vas.

Zgrada je u izgradnji, a planirani završetak radova je do sezone 2026. godine.

*KUPAC NE PLAĆA AGENCIJSKU PROVIZIJU
**KUPAC NE PLAĆA POREZ NA PROMET NEKRETNINAMA

ID CODE: A-3276-S

Alma Cipurković
Mob: +385 (0)91 400 1616
Tel: +385 (0)99 284 1984
E-mail: alma@perlanekretnine.hr
www.perlanekretnine.hr

Iva Prtenjača
Mob: +385 (0)91 400 1414
Tel: +385 (0)99 284 1984
E-mail: iva@perlanekretnine.hr
www.perlanekretnine.hr
Značajke
Vrsta
Stan
Ugovor
Prodaja
Kat
Prizemlje
Katovi zgrade
2
Dizalo
Ne
Površina
79 m²
Prostorije
3
Spavaće sobe
2
Kupaonice
1
Balkon
Ne
Terasa
Da
Garažno mjesto, parkirna mjesta
1 na zajedničkom parkingu
Grijanje
Samostalno, zrak
Klimatizacija
Samostalno, hlađenje/grijanje
Informacije o cijeni
Cijena
€ 229.756
Cijena po m²
2.908 €/m²
Energetska učinkovitost
  • Godina izgradnje

    2026
  • Grijanje

    Samostalno, zrak
  • Klima uređaj

    Samostalno, hlađenje/grijanje
  • Energetski certifikat

    Neklasificirano
Otkrijte svaki kutak nekretnine
+12
Dodatne mogućnosti

Obratite se oglašivaču

Ili