Trosobni stan Sukošan, Sukošan

€ 559.000
3
104 m²
2
2
Da
Terasa

Bilješka

Oglas ažuriran 22. 01. 2026.
Opis

referenca: 243

SUKOŠAN-S06-Penthouse prvi red uz more

SUKOŠAN, ZADAR - PRVI RED UZ MORE

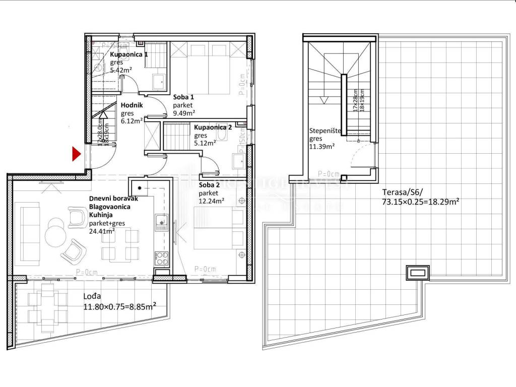
Prodaje se moderan dvosoban stan u Sukošanu prvi red uz more. Stan se nalazi na drugom katu te ima ukupnu stambenu površinu od 104,04m2 i sastoji se od:
dvije spavaće sobe, dvije kupaonice, dnevnog boravka, kuhinje i blagovaonice s izlazom na vanjsku lođu površine 11.8m2 m2 s koje se pruža pogled na more.
Unutarnje stepenice vode na krovnu terasu površine 73.15m2.

Ukupna brutto površina stana iznosi 172,67 m2.

U gradnji su 3 luksuzne zgrade opremljene vrhunskom opremom, liftom, s pristupom za osobe s invaliditetom, videoportafonom, podzemnom garažom i alarmnim sustavom. Prizemni stanovi imaju bazen i vrt, dok stanovi na zadnjem katu imaju krovne terase. Uz stan dolazi jedno vanjsko parkirno mjesto.

Stan se nalazi na mirnoj lokaciji, PRVI RED UZ MORE, igralište, kafić i plažu. U blizini je trgovina mješovite robe.

Plaćanje je u fazama. Planirani završetak kraj 2025/ početak 2026. Stanovi su u vlasništvu pravne osobe te je kupac oslobođen plaćanja poreza na promet nekretnina.
U cijenu je uračunat PDV.

Za više informacija ili dogovor za razgledavanje, molimo kontaktirajte:

Telefon: +385 95 7355171
Email: info@prestigeinvest.hr

ID CODE: 243

Ivana Ančić
Voditelj ureda
Mob: +385 95 73 55 171
Tel: +385 95 588 8082
E-mail: info@prestigeinvest.hr
www.prestigeinvest.hr
Značajke
Vrsta
Stan
Ugovor
Prodaja
Kat
2 kat
Katovi zgrade
2
Dizalo
Da
Površina
104 m²
Prostorije
3
Spavaće sobe
2
Kupaonice
2
Balkon
Ne
Terasa
Da
Garažno mjesto, parkirna mjesta
1 na zajedničkom parkingu
Grijanje
Samostalno, zrak
Klimatizacija
Samostalno, hlađenje/grijanje
Ostale karakteristike
  • Alarmni sustav
Informacije o cijeni
Cijena
€ 559.000
Cijena po m²
5.375 €/m²
Energetska učinkovitost

Potrošnja energije

A+

Otkrijte svaki kutak nekretnine
+48
Dodatne mogućnosti

Obratite se oglašivaču

Ili