Trosobni stan Sukošan, Sukošan

€ 355.000
3
87 m²
2
2
Ne
Terasa

Bilješka

Oglas ažuriran 02. 03. 2026.
Opis

referenca: 707

SUKOŠAN NOVOGRADNJA-S5 Dvosoban penthouse s krovnom terasom

SUKOŠAN, NOVOGRADNJA 2-SOBNI PENTHOUSE S5 S KROVNOM TERASOM

ZGRADA sa šest stambenih jedinica raspoređenih na tri etaže: prizemlje, 1. i 2.kat.

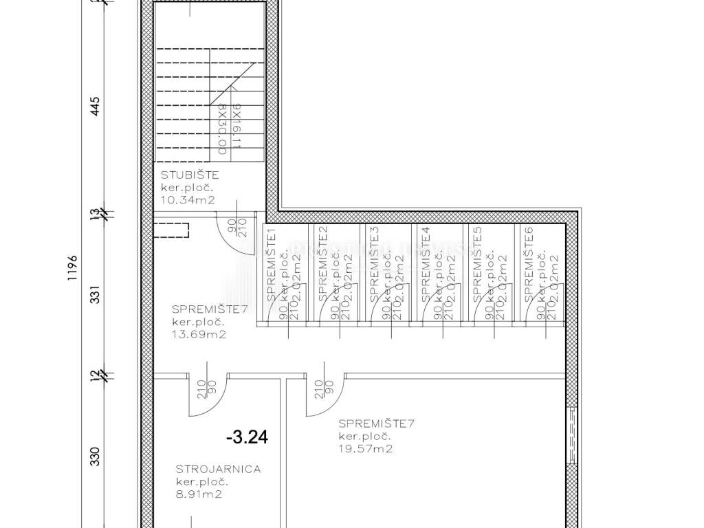
Svakom stanu pripada jedno parkirno mjesto i spremište.
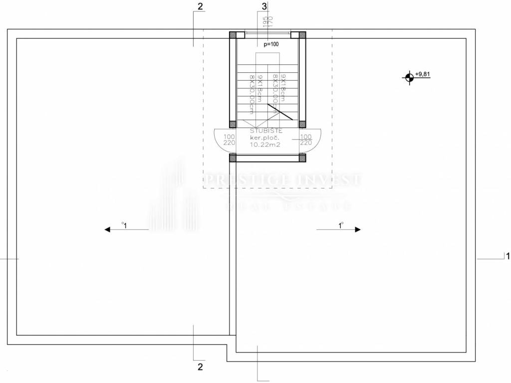
Penthousi dodatno imaju i krovne terase.

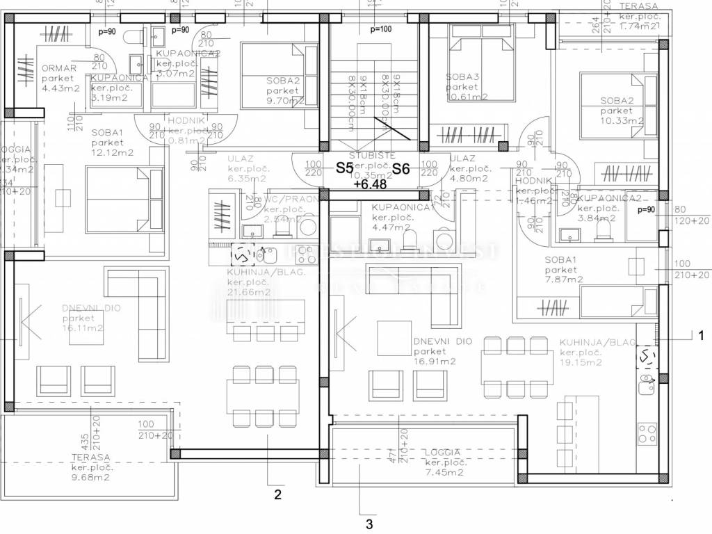
Iskaz površina:
Ulaz: 6,35 m²
Dnevni boravak: 16,11 m²
WC/praonica: 2,54 m²
Kuhinja i blagovaonica: 21,66 m²
Spavaća soba 1 s kupaonicom: 12,12 m²
Garderoba 2: 4,43 m²
Kupaonica 1: 3,19 m²
Lođa iz spavaće sobe: 2,34m²
Spavaća soba 2 s kupaonicom: 19,74 m²
Kupaonica 2: 3,07 m²
Hodnik: 0,81 m²
Terasa: 9,68 m²

Ukupna neto stambena površina: 87,82 m²

Pripadajuće površine:
Krovna terasa: netto 22m2
Parkirno mjesto: 2,75 m²
Spremište: 2,02m²

Ostale dostupne stambene jedinice:
S3 (1. kat): 91,16 m² – 273.480 €
S4 (1. kat): 83,69 m² – 251.070 €
S5 (2. kat, krovna terasa): 87,82 m² – 307.370 €
S6 (2. kat, krovna terasa): 83,69 m² – 292.915 €

SPECIFIKACIJE OPREME:
Podno grijanje i sustav pripreme tople vode putem dizalice topline
Keramičke pločice i sanitarije
Aluminijska stolarija s električnim roletama i komarnicima
Klima-uređaji u svakoj prostoriji
Parketi u spavaćim sobama; keramičke pločice u ostalim prostorijama

Završetak gradnje: 2026. ljeto

Vlasništvo: pravna osoba u sustavu PDV-a
Kupac ne plaća porez na promet nekretnina

Za dodatne informacije, fotografije, dokumentaciju ili dogovor razgledavanja:
Telefon: +385 95 73 55 171
E-mail: info@prestigeinvest.hr

ID CODE: 707

Ivana Ančić
Voditelj ureda
Mob: +385 95 73 55 171
Tel: +385 95 588 8082
E-mail: info@prestigeinvest.hr
www.prestigeinvest.hr
Značajke
Vrsta
Stan
Ugovor
Prodaja
Kat
2 kat
Katovi zgrade
2
Dizalo
Ne
Površina
87 m²
Prostorije
3
Spavaće sobe
2
Kupaonice
2
Balkon
Ne
Terasa
Da
Garažno mjesto, parkirna mjesta
1 na zajedničkom parkingu
Grijanje
Samostalno, zrak
Klimatizacija
Samostalno, hlađenje/grijanje
Informacije o cijeni
Cijena
€ 355.000
Cijena po m²
4.080 €/m²
Energetska učinkovitost

Potrošnja energije

A+

Otkrijte svaki kutak nekretnine
+58
Dodatne mogućnosti

Obratite se oglašivaču

Ili