Trosobni stan Lovrečica, Umag, Lovrečica, Petrovija, Materada, Umag

€ 303.500
3
67 m²
1
1
Ne
Balkon

Bilješka

Oglas ažuriran 10. 03. 2026.
Opis

referenca: 300391030-422

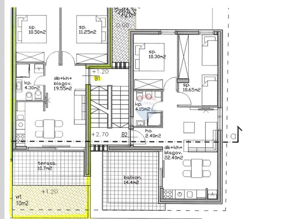
Umag okolica, stan s pogledom na more

Prodaje se stan na atraktivnoj lokaciji udaljen 350 m od mora i uređenih plaža.
Stan je smješten na prvom katu zgrade od ukupno četiri stana te se sastoji se od ulaznog hodnika, kupaone, dvije spavaće sobe, kuhinje s blagovaonom, dnevnog boravka s izlazom na natkrivenu terasu.
Stanu pripada vrt od 10 m2 te dva parkirna mjesta od 12,50 m2.
Blizina mora daje nekretnini poseban ugođaj, idealan za manju obitelj ili kao investicija za turistički najam.

ID CODE: 300391030-422

Davorka Ukota
Prodajni predstavnik
Mob: +385 91 641 5530
Tel: +385 52 670 295
Fax: 00385 52 638 220
E-mail: d.ukota@remax-istra.hr
www.remax-centarnekretnina.com
Značajke
Vrsta
Stan
Ugovor
Prodaja
Kat
1 kat
Katovi zgrade
2
Dizalo
Ne
Površina
67 m²
Prostorije
3
Spavaće sobe
2
Kupaonice
1
Balkon
Da
Terasa
Ne
Klimatizacija
Samostalno, hlađenje/grijanje
Informacije o cijeni
Cijena
€ 303.500
Cijena po m²
4.530 €/m²
Energetska učinkovitost
  • Godina izgradnje

    2024
  • Klima uređaj

    Samostalno, hlađenje/grijanje
  • Energetski certifikat

    Neklasificirano
Otkrijte svaki kutak nekretnine
+4
Dodatne mogućnosti

Obratite se oglašivaču

Ili