Trosobni stan Umag, Centar, Luka, Finida, Umag

€ 314.000
3
66 m²
1
1
Ne
Balkon

Bilješka

Oglas ažuriran 10. 03. 2026.
Opis

referenca: 300391030-437

Umag okolica, stan 350 m od mora

Prodaje se stan u okolici Umaga na mirnoj lokaciji.
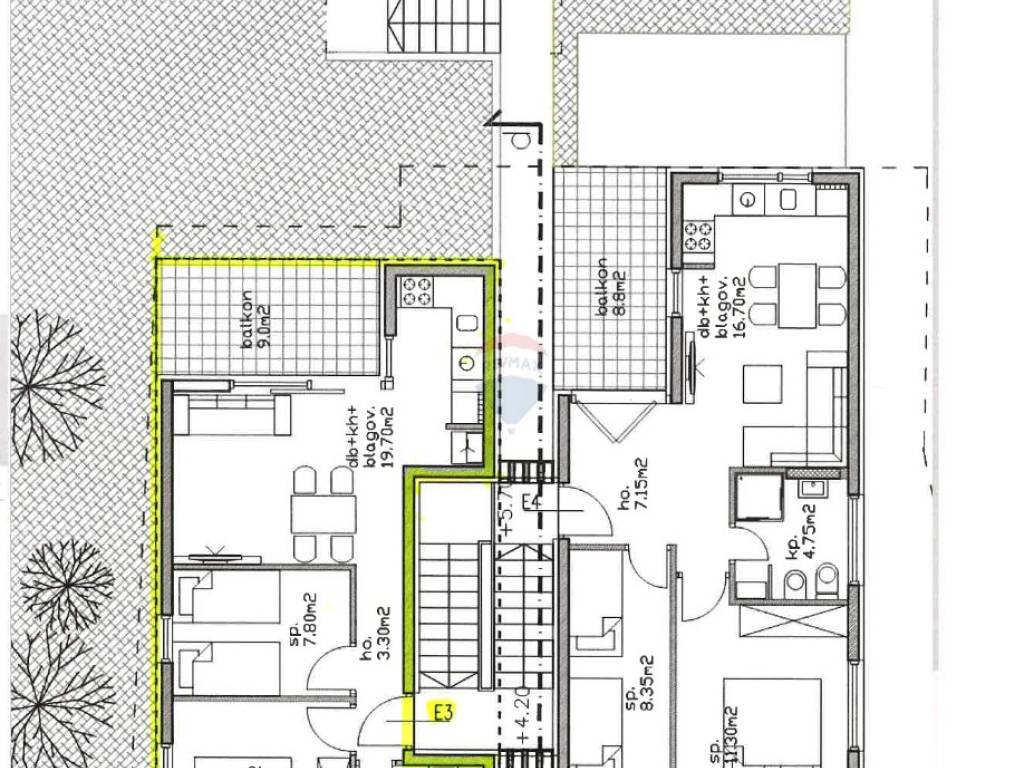
Stan je smješten na prvom katu manje zgrade te se sastoji od kupaone, dvije spavaće sobe, kuhinje s blagovaonom i dnevnog boravka s izlazom na terasu
Stan ima neto korisnog prostora 45,35 m2 s natkrivenom terasom, 9,00 m2, natriveni parking 12,50 i spremište u prizemlju od 7,10 m2.
Nakon obračunatog koeficijenta stan ima 65,15 m2.
Grijanje i hlađenje je putem klima uređaja dok u kupaoni grijanje je podno.
Blizina mora čini stan idealan za život ili turistički najam.

ID CODE: 300391030-437

Davorka Ukota
Prodajni predstavnik
Mob: +385 91 641 5530
Tel: +385 52 670 295
Fax: 00385 52 638 220
E-mail: d.ukota@remax-istra.hr
www.remax-centarnekretnina.com
Značajke
Vrsta
Stan
Ugovor
Prodaja
Kat
1 kat
Katovi zgrade
2
Dizalo
Ne
Površina
66 m²
Prostorije
3
Spavaće sobe
2
Kupaonice
1
Balkon
Da
Terasa
Ne
Klimatizacija
Samostalno, hlađenje/grijanje
Informacije o cijeni
Cijena
€ 314.000
Cijena po m²
4.758 €/m²
Energetska učinkovitost
  • Godina izgradnje

    2024
  • Klima uređaj

    Samostalno, hlađenje/grijanje
  • Energetski certifikat

    Neklasificirano
Otkrijte svaki kutak nekretnine
+4
Dodatne mogućnosti

Obratite se oglašivaču

Ili