Dvosobni stan Donji grad, Donji Grad, Mimara, Zagreb

€ 129.000
2
26 m²
1
PR
Ne

Bilješka

Oglas ažuriran 24. 04. 2026.
Opis

referenca: 300431010-525

Zagreb, Centar - stan u prizemlju s parkingom

RE/MAX Centar nekretnina iz ponude izdvaja simpatičan stan u centru Zagreba, u ulici Prilaz Gjure Deželića velčine 26 m2.
Stan se nalazi u dvorišnom dijelu zgrade i na korištenje ima manje ograđeno dvorište. Parking u dvorištu je osiguran za sve stanare.
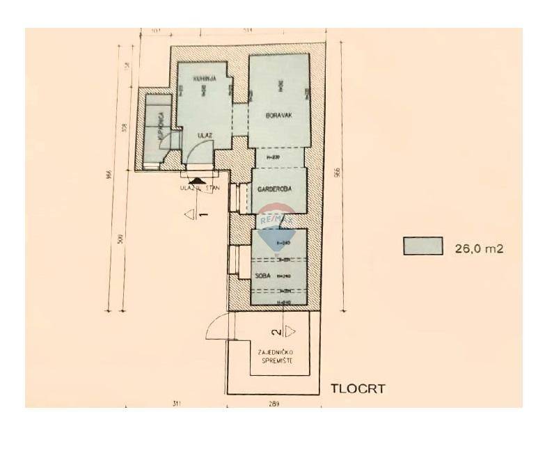
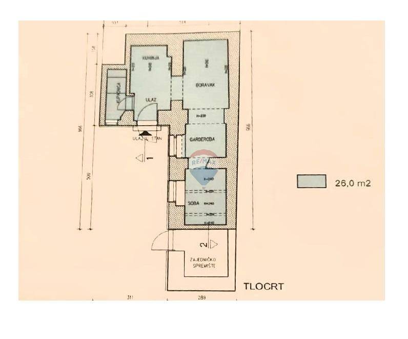
Sastoji se od kupaonice, kuhinje, dnevnog boravka i spavaće sobe. Pokraj stana je spremište.
Stan je idealan i za život i kao investicija — trenutno se uspješno iznajmljuje na dnevnoj bazi s visokom popunjenošću.
Odlična lokacija, na pješačkoj udaljenosti od centra grada i svih ostalih važnih sadržaja.

ID CODE: 300431010-525

Žaneta Avdičević, dipl.oec.
Prodajni predstavnik
Mob: +385 91 641 5011
Tel: +385 1 670 1704
Fax: +385 1 670 1711
E-mail: z.avdicevic@remax-centar.hr
remax-centarnekretnina.com
Značajke
Vrsta
Stan
Ugovor
Prodaja
Kat
Prizemlje
Katovi zgrade
3
Dizalo
Ne
Površina
26 m²
Prostorije
2
Spavaće sobe
1
Kupaonice
1
Balkon
Ne
Terasa
Ne
Klimatizacija
Samostalno, hlađenje/grijanje
Informacije o cijeni
Cijena
€ 129.000
Cijena po m²
4.962 €/m²
Energetska učinkovitost

Potrošnja energije

C

Tlocrt
Otkrijte svaki kutak nekretnine
+8
Dodatne mogućnosti

Obratite se oglašivaču

Ili