Dvosobni stan novo, prvi kat, Nin

€ 199.000
2
45 m²
1
1
Da

Bilješka

Oglas ažuriran 05. 03. 2026.
Opis

referenca: 5237

ZADAR-NIN-Odlična NOVOGRADNJA-Apartman s balkonom-80 m od mora i plaže

U prodaji je novi projekt novogradnje s liftom, na atraktivnoj lokaciji u blizini pješčane plaže, samo 80 m od mora u Ninu - u okolici Zadra.
Radi se o projektu višestambene zgrade koja se sastoji od ukupno 10 apartmana. Zgrada ima 3 etaže koje povezuje lift; prizemlje, prvi i drugi kat, te su na svakoj etaži su smještena po 3 apartmana.
Na okućnici zgrade se nalaze 3 bazena koji pripadaju apartmanima u prizemlju, a iznad drugog kata su prohodne krovne terase koje pripadaju apartmanima na 2. katu.
Izgradnja započinje 02/2026 godine, a očekivani završetak građevinskih radova i useljenje u stanove je planirano do 06/2027. godine.
 
KARAKTERISTIKE ZGRADE:
- Konstrukcija građevine je armirano-betonska
- Termofasada - stiropor 10 cm
- Zgrada ima ugrađen dimnjak
- Lift koji povezuje sve etaže / od prizemlja do krovne terase
- Bazeni za stanove u prizemlju
- Podno grijanje u kupaonicama
- Kvalitetna PVC stolarija s ALU roletama  na elektropogon i komarnicima
- Klimatizacijski uređaji u svim prostorijama
- Protupožarna / Protuprovalna ulazna vrata
- Videoportafon na ulazu u zgradu
 
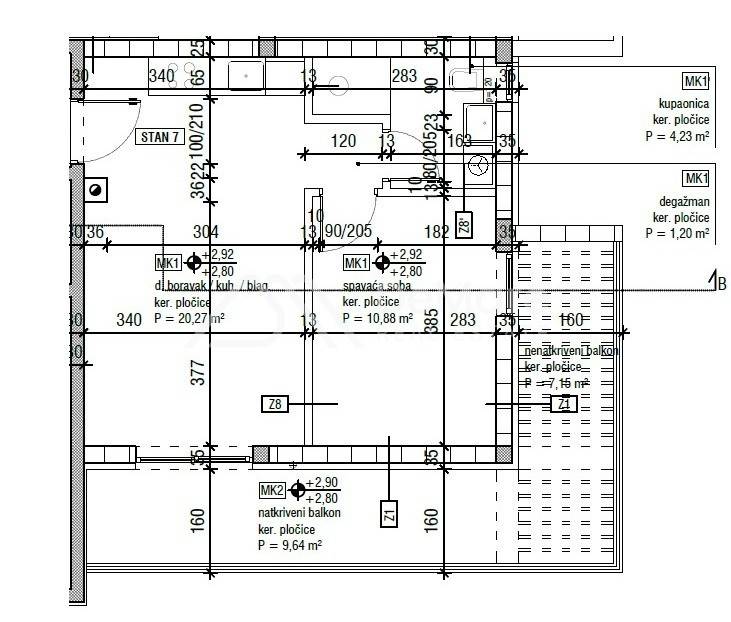
1.KAT S7 - Apartman s 1 spavaćom sobom i balkonom
APARTMAN se nalazi na prvom katu zgrade i sastoji se od:
- dnevnog boravka s kuhinjom i blagovaonicom / 20,27 m2
- spavaće sobe / 10,88 m2 
- kupaonice / 4,23 m2 
- degažmana / 1,20 m2
- natkrivenog balkona / 9,64 m2
- nenatkrivenog balkona / 7,15 m2
 
Stanu pripada jedno parkirno mjesto 12,50 m2 na okućnici zgrade.
 
Unutarnji stambeni prostor apartmana je 36,58 m2, dok ukupna obračunska korisna vrijednost površine apartmana iznosi 45,68 m2.
 
 
PREDNOST kod kupnje ove nekretnine je to, što je prodavatelj pravna osoba u sustavu pdv-a, pa stoga kupac NE PLAĆA porez na promet nekretnina!
 
LOKACIJA:
Nin je gradić smješten oko 15 km sjeverozapadno od Zadra. Centar drevnog grada je otočić, promjera 500 m, povezan s kopnom dvama mostovima, nastao na pješčanom sprudu nekadašnjeg ušća rječice Miljašić Jaruge u more. Sa sjeverne strane okružen je pješčanim sprudom i vikend naseljem Ždrijac, s istočne strane se nalazi solana a na južnoj i zapadnoj strani se nalazi noviji dio samog mjesta. Nin se prostire u nekoliko formiranih zona: povijesni otok, vikend naselje Ždrijac, novi dio Nina, Bilotinjak i Ninske Vodice.
 
Ako želite znati više, možete razgovarati s Ivo Strenja.
Značajke
Vrsta
Stan
Ugovor
Prodaja
Kat
1
Katovi zgrade
2
Dizalo
Da
Površina
45 m²
Prostorije
2
Spavaće sobe
1
Kupaonice
1
Garažno mjesto, parkirna mjesta
1 na zajedničkom parkingu
Grijanje
Samostalno, štednjak, pogon na drva
Klimatizacija
Samostalno, hlađenje/grijanje
Ostale karakteristike
  • Protuprovalna vrata
  • Vanjska stolarija od stakla / PVC-a
  • Video portafon
Detalji površine

Stambeni prostor

Kat
1
Površina
45,7 m²
Koeficijent
100%
Vrsta površine
Glavni
Komercijalna površina
45,7 m²
Informacije o cijeni
Cijena
€ 199.000
Cijena po m²
4.422 €/m²
Pojedinosti o troškovima
Troškovi etažiranja
Bez naknada za etažno vlasništvo
Energetska učinkovitost
  • Godina izgradnje

    2027
  • Stanje

    Novo / U izgradnji
  • Grijanje

    Samostalno, štednjak, pogon na drva
  • Klima uređaj

    Samostalno, hlađenje/grijanje
Otkrijte svaki kutak nekretnine
+8
Dodatne mogućnosti

Obratite se oglašivaču

Ili