Stan Trešnjevka, Trešnjevka - Sjever, Stara Trešnjevka, Zagreb

€ 1
5+
223 m²
3+
1
Da
Terasa

Bilješka

Oglas ažuriran 22. 01. 2026.
Opis

referenca: 677

Ekskluzivno, Cernička, Novogradnja! Šetalište Jurija Gagarina

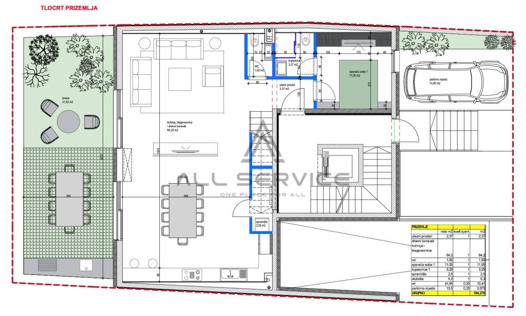
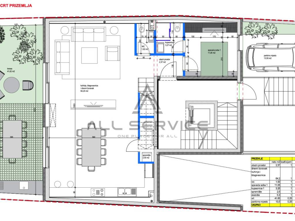
Prodaje se prostrani dvoetažni stan koji se prostire na 1./4 katu (i u visokom prizemlju) viskokvalitetne novogradnje, građene najsuvremenijim materijalima, na odličnoj lokaciji na Trešnjevci, Cernička ulica, u neposrednoj blizini Šetalište Jurija Gagarina!

Stan se sastoji od prostranog open-space dnevnog boravka s kuhinjom i blagovaonom povezanim s vlastitim privatnim zatvorenim vrtom (zajedno preko 100m2), pet prostranih spavaćih soba, svaka sa svojom vlastitom kupaonicom, gostinjskog wc-a, spremišta i garderobe.
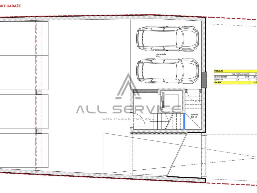
Uz stan dolaze 2 garažna parkirna mjesta, ostava i vanjsko parkirno mjesto.

Za pripremu tople vode predviđen je spremnik PTV-a s pratećom podkonstrukcijom, te hidraulička skretnica za potrebe podnog grijanja, a nalaze se u tehničkom prostoru u visokom prizemlju (ispod stepeništa za gornju etažu).

ZGRADA
Stambena zgrada sastoji se od 4 stambene jedinice, 3 jednoetažna stana (1 po katu), dvoetažni stan s vrtom i 1 podzemne etaže sa parkirnim mjestima i spremištem.

Zgrada ima glavni ulaz s istočne strane, kolni pristup u podzemnu garažu, kao i ulaz u stubište kojim se pristupa podzemnim i nadzemnim etažama. U zgradi se nalazi komunikacijska vertikala, sastavljena od stubišta i dizala koje povezuju sve podzemne i nadzemne etaže.

Kompletna konstrukcija je izgradena od armiranog betona, maksimalne protupotresne otpornosti po EC, armirano betonske međukatne ploče su debljine od 20-30 cm, pregradni zidovi unutar stanova su od gipskartonskih ploča, debljine 12,50 cm, ugrađen je viskokvalitetni ETICS fasadni sustav sa toplinskom izolacijom od EPS- a u debljini od 15 cm.

Ugrađen je ravni, neprohodni krov s debljinom toplinske izolacije od 20 cm, izvedena je hidroizolacija svih terasa i balkona najkvalitetnijom obradom - TPO folija.

Vanjska stolarija izvedena je u kombinaciji visokokvalitetnih materijala drvo i aluminij, stolarija je ostakljena troslojnim IZOstaklom (s dva low-E) premaza, a otklopno zaokretnim, odnosno klizno podiznim okovom sa 7 komora i koeficijentom prolaska topline Uw= 0,83.

U sve stanove su ugrađena visokokvalitetna, protuprovalna, protupožarna i protudimna ulazna vrata.

Svi stanovi su kompletno opremljeni sa visokokvalitetnim sanitarnim uređajima i opremom te je u svim stanovima ugrađena keramika velikih dimenzija i troslojni parket A klase.

Sustav grijanja je izveden dizalicama topline za grijanje i RTV, a sustav hladenja je osiguran putem klima jedinica (split sustav).
Detalji izvedbe između vanjskih površina i unutarnjih prostora riješeni su termičkim prekidima SCHOCK.

Video nadzor, regulacija topline svih prostorija, električno podizanje i spuštanje vanjskih roleta.
Orijentacija: istok-zapad

LOKACIJA

Neposredna blizina centra grada, te blizina tramvajskih i prometnih linija, diječji vrtić, dom zdravlja, osnovna škola, razni trgovački, prehrambeni, sportski i poslovni objekti na udaljenosti do 5 minuta hoda od stana zaista pružaju sigurnost, komfort i smirenost u svakodnevnim obiteljskim i poslovnim zadacima i obavezama.

Ostali stanovi i parkinzi su prodani.

Useljenje: 02/26

ID CODE: 677

Ivan Grbavac
Agent s licencom
Mob: +385 97 629 0934
Tel: +385 14002709
E-mail: ivangrbavac@allservice.hr
www.allservice.hr
Značajke
Vrsta
Stan
Ugovor
Prodaja
Kat
1 kat
Katovi zgrade
4
Dizalo
Da
Površina
223 m²
Prostorije
5+
Spavaće sobe
5
Kupaonice
3+
Balkon
Ne
Terasa
Da
Garažno mjesto, parkirna mjesta
1 u garaži, 3 na zajedničkom parkingu
Grijanje
Samostalno, zrak
Klimatizacija
Samostalno, hlađenje/grijanje
Informacije o cijeni
Cijena
€ 1
Cijena po m²
0 €/m²
Energetska učinkovitost
  • Godina izgradnje

    2025
  • Grijanje

    Samostalno, zrak
  • Klima uređaj

    Samostalno, hlađenje/grijanje
  • Energetski certifikat

    Neklasificirano
Tlocrt
Otkrijte svaki kutak nekretnine
+10
Dodatne mogućnosti

Obratite se oglašivaču

Ili