Četverosobni stan Sukošan, Sukošan

€ 549.000
4
132 m²
3+
2
Ne
Terasa

Bilješka

Oglas ažuriran 22. 01. 2026.
Opis

referenca: 128-37

Zadar, Sukošan stan, s krovnom terasom 1 red do mora


Smješten na elitnoj lokaciji uz samo more, u sklopu luksuznog kompleksa nalazi se ekskluzivan trosoban stan S03. Ova moderna novogradnja nudi samo tri stana, čime se osigurava intimnost, privatnost i vrhunska kvaliteta stanovanja.
Svojom suvremenom arhitekturom, luksuznim rasporedom i prvim redom do mora, ova rezidencija pruža jedinstvenu priliku za uživanje u mediteranskom načinu života, uz spektakularne panoramske poglede i mirnu, opuštajuću atmosferu.

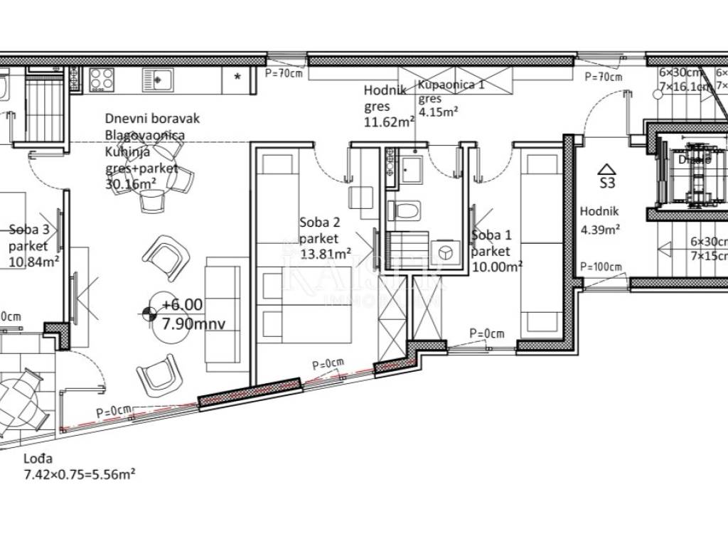
Trosoban stan S03 – prostranost i sofisticiranost
Smješten na najvišoj etaži zgrade, ovaj nenamješteni stan s neto površinom od 132,32 m2 nudi otvoren i fleksibilan prostor, savršen za personalizaciju prema željama budućih vlasnika.
Stambeni prostor iznosi 85,15 m2, što osigurava udoban i funkcionalan raspored prostorija, prilagođen modernom načinu života.
Već pri ulasku u stan osjeti se prostornost i protočnost, a velike staklene stijene omogućuju obilje prirodnog svjetla i nesmetan pogled na okolicu. Dnevni boravak, povezan s blagovaonicom i kuhinjom, čini središte doma, s otvorenim konceptom idealnim za suvremeni način života.
Stan ima tri prostrane spavaće sobe, među kojima se glavna spavaća soba izdvaja svojim luksuzom – vlastitom en-suite kupaonicom, pružajući dodatnu privatnost i udobnost. Druge dvije spavaće sobe fleksibilne su za uređenje, ovisno o potrebama – bilo kao gostinske sobe, dječje sobe ili radne prostorije.
Osim privatne kupaonice u glavnoj spavaćoj sobi, stan raspolaže i drugom moderno dizajniranom kupaonicom, koja se nalazi u središnjem dijelu stana, lako dostupna svim članovima kućanstva i gostima.
Dodatni vanjski prostor osigurava lođa od 7,42 m2, savršena za uživanje u jutarnjoj kavi ili večernjim trenucima opuštanja uz pogled na more.

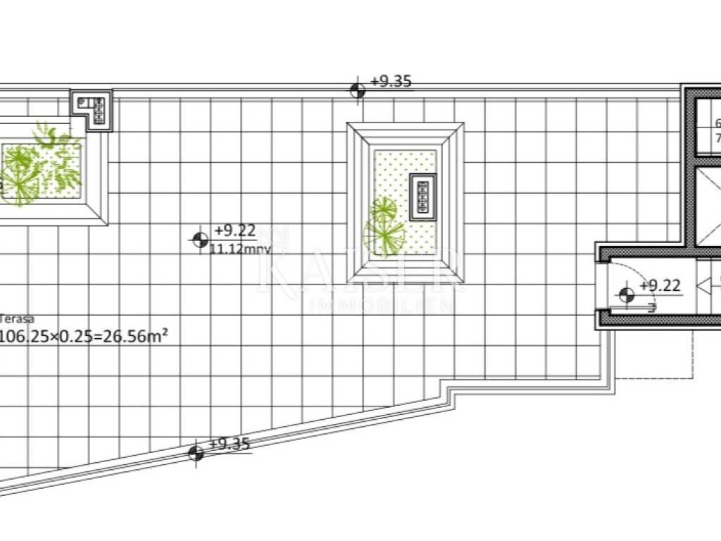
Krovna terasa – vaš privatni raj pod vedrim nebom
Ono što čini stan S03 posebno ekskluzivnim jest prostrana privatna krovna terasa površine 26,56 m2, koja budućim vlasnicima pruža potpunu slobodu uređenja i korištenja.
Ova terasa može se osmisliti kao:
Zeleni mediteranski vrt s biljkama i cvijećem,
Prostor za sunčanje i opuštanje,
Vanjska blagovaonica idealna za ljetna druženja,
Lounge kutak s modernim namještajem i ambijentalnim osvjetljenjem.
Zahvaljujući visokom položaju, terasa nudi intimnost i spektakularan pogled na more i okolni pejzaž. Savršeno mjesto za uživanje u ljetnim večerima, svježem morskom zraku i mirnoj atmosferi daleko od gradske gužve.

Vrhunska gradnja i moderna tehnička rješenja za udoban dom
Kvaliteta gradnje i odabir vrhunskih materijala ključni su za udobnost, sigurnost i energetsku učinkovitost stambenog prostora. Objekt je izoliran slojem stiropora od 10 cm, čime se osigurava optimalna toplinska zaštita. Grijanje je riješeno podnim sustavom u kupaonicama, dok je u ostalim prostorijama instaliran klima uređaj za grijanje i hlađenje.
Troslojna PVC stolarija pruža izvrsnu izolaciju, a svi prozori opremljeni su električnim roletama i komarnicima za dodatnu udobnost. Sigurnost objekta osigurana je protuprovalnim i protupožarnim vratima. Estetiku i dugotrajnost interijera upotpunjuje vrhunska keramika. Ova moderna tehnička rješenja osiguravaju visoku kvalitetu života i trajnu vrijednost objekta.

Arhitektura i dizajn zgrade
Zgrada je dizajnirana s naglaskom na eleganciju, privatnost i udobnost, a stanari imaju na raspolaganju niz premium sadržaja, uključujući privatne bazene u prizemnim stanovima i prostrane krovne terase s panoramskim pogledom. garažom, osiguravajući sigurnost i privatnost. U sklopu stambenog kompleksa, svaki stan dolazi s vlastitim parkirnim mjestom koje je uključeno u kupnju stana. Osim toga, postoji mogućnost dodatne kupnje mjesta u podzemnoj garaži, koja pruža dodatnu sigurnost i praktičnost vlasnicima stanova.

Sukošan – savršena mediteranska lokacija
Smješten uz obalu Jadranskog mora, Sukošan je poznat po svojim pješčanim plažama, kristalno čistom moru i vrhunskoj gastronomskoj ponudi. Ova destinacija privlači ljubitelje mira, prirode i luksuznog života, a istovremeno se nalazi u neposrednoj blizini Zadra, što omogućuje brz pristup svim urbanim sadržajima.
Savršena prilika za dom iz snova ili luksuznu investiciju.

Blizina sadržaja:
Sukošan-Zadar: 10 km
Sukošan-Zračna luka Zadar: 11 km
Udaljenost većih gradova:
Sukošan-Ljubljana: 345 km
Sukošan-Budapest: 625 km
Sukošan-München: 750 km
Sukošan-Wien: 640 km
Sukošan-Prag: 910 km
Provizija agencije za kupca iznosi 3 % + PDV i plaća se u slučaju kupovine nekretnine, kod zaključenja prvog pravnog akta.
ID KOD: 128-37
Za detaljnije informacije, molim Vas kontaktirajte:
Nina Fabijan

ID CODE: 128-37

Nina Fabijan
Agent posredovanja u prometu nekretnina
Mob: +385955046197, +385995677888
E-mail: nina@kaiser-immobilien.hr
www.kaiser-immobilien.hr
Značajke
Vrsta
Stan
Ugovor
Prodaja
Kat
2 kat
Dizalo
Ne
Površina
132 m²
Prostorije
4
Spavaće sobe
3
Kupaonice
3+
Balkon
Ne
Terasa
Da
Garažno mjesto, parkirna mjesta
1 na zajedničkom parkingu
Grijanje
Samostalno, zrak
Klimatizacija
Samostalno, hlađenje/grijanje
Informacije o cijeni
Cijena
€ 549.000
Cijena po m²
4.159 €/m²
Energetska učinkovitost
  • Godina izgradnje

    2024
  • Grijanje

    Samostalno, zrak
  • Klima uređaj

    Samostalno, hlađenje/grijanje
  • Energetski certifikat

    Neklasificirano
Otkrijte svaki kutak nekretnine
+13
Dodatne mogućnosti

Obratite se oglašivaču

Ili